Jerash/Gerasa (n.d.)

 

 

 

Localisation : partie ouest de l’actuelle ville de Jerash au nord de ‘Amman.

 

 

Réf :

Burckhardt (1825), p.252-265

Fisher (1930), p.131-149 ; 151-169

Fisher/McCown (1930), p.1-59

Kraeling (1938)

Libbey/Hoskins (1905)

Seigne (1985), p.287-295

Zayadine (1986)

Zayadine (1989)

 

 

 

Historique

 

L’antique cité de Jerash/Gerasa qui fait partie des Decapoles s’étend sur les deux rives du wadî Jerash/Chrysorrhoas. La cité a conservé les principaux monuments d’une ville Hellénistique et Romaine : un arc monumental (ill.3, 4), un hippodrôme (ill.7-10), deux théâtres au sud (ill.19, 20) et au nord (ill.38, 39), un sanctuaire dédié à Zeus (ill.13-18) et un autre à Artemis (ill.33-36) ; une Place Ovale d’où part un cardo avec ses portes et ses tétrapyles (ill.21-29), deux decumanus (ill.66, 67), un marché (macellum) avec latrines, un Nymphée, des thermes, une cathédrale et plusieurs églises paléochrétiennes, des quartiers d’habitations, le tout entouré d’un mur d’enceinte de 4,2km.[1]

 

L’occupation des ruines antiques durant la période Islamique[2] est éparse, on recense des vestiges médiévaux dans différentes zones :

L’hippodrôme (ill.7-10)[3] : des vestiges médiévaux sont signalés au nord et nord-est[4] peut-être liés aux activités agricoles. Des ateliers de teinturiers ont aussi été découverts.[5]

Le théâtre nord (ill.38, 39) : découverte de matériaux médiévaux mais pas de structures, peut-être une réoccupation ponctuelle.

La Place Ovale (ill.21-29) : vers le sud-ouest un petit hameau peut-être le noyau d’une réoccupation médiévale des lieux.[6]

Le sanctuaire de Zeus (ill.13-18) : découverte d’habitats ruraux au nord-ouest entre la façade ouest et le naos.[7]

La partie centrale au sud-ouest du decumanus : des fouilles jusqu’en 2007 ont exhumées une mosquée qui semble reconstruite en plus petit après le séisme de 749 (ill.30-32), un hammam, un alignement de boutiques à l’est. Un ensemble à l’ouest qui consiste en petits bâtiments à fonction hydraulique/ou en lien avec l’eau.[8]

Ces vestiges montrent une occupation durant la période Omeyyade/Abbasside puis un abandon aux 10/11e siècle. Ce secteur aurait été abandonné après le séisme de 749 et réoccupé sporadiquement à partir de la période Ayyûbide/Mamluk.

 

Le quartier nord-ouest de Jerash est fouillé par la mission Germano-Danoise (fouilles en 2012, 2013, 2014, 2015, 2016). Les tranchées effectuées lors de ces missions permettent de se faire une idée sur l’occupation de ce quartier à l’écart du reste de la ville.

Les différentes tranchées avec l’essentiel des découvertes (ill.40, 61-64) :

Tranchée A (ill.41)[9] : sur le point culminant du quartier nord-ouest, un site en forme de L désigné comme une salle rectangulaire dont l’occupation ne s’étend pas après la période Romaine.

Tranchée B (ill.42)[10] : sur la pente est de la colline, à l’est d’une probable habitation Mamluk de deux salles élevée sur une ancienne terrasse. Une presse à huile est installée à cet endroit nécessitant la construction d’une nouvelle salle puis un réaménagement des autres salles pour accueillir cette presse à huile identifiée du type levier et poids.[11] Finalement, la salle entière est remplie puis abandonnée au début de la période islamique. Une troisième phase de construction est attestée par l’élévation d’un mur qui donnerait une date entre l’ensevelissement de la presse et l’occupation de l’habitat Ayyûbide/Mamluk sur la terrasse.

Tranchée C (ill.43)[12] : à l’angle sud-ouest de l’édifice Ionique, une habitation avec grande cour intégrée à un système de terrasses plusieurs fois remaniées. On note la construction d’une citerne et de canaux après l’effondrement d’une salle au sud-ouest probablement lors du fort séisme de 749, cette citerne est ensuite remblayée et servira de fondation pour l’habitation autour de la grande cour.

Tranchée D (ill.44)[13] : à l’angle est de l’édifice Ionique. Une première phase non identifée, une deuxième phase d’habitat Omeyyade/Abbasside et une troisième phase avec réutilisation sous les Ayyûbides/Mamluk d’un habitat avec cour plus étendue.

Tranchée E (ill.45)[14] : à 30m au sud-est de la tranchée D, à l’ouest d’un édifice Mamluk, présente quatre phases d’occupation ; une non identifiée, une phase avec une conduite d’eau, un mur de la période Byzantine/début Islam et une structure appartenant à un complexe Ayyûbide/Mamluk.

Tranchée F (ill.46)[15] : une citerne (40x18m) sur la pente sud utilisée jusqu’au 5e/6e siècle, puis utilisation comme matériaux de construction pour un quartier résidentiel qui est remblayé au 6e/7e siècle, tout comme la citerne (ill.37, 58).

Tranchée G (ill.47)[16] : sur decumanus nord côté pente nord, trace d’une route en terre et de murs. Le decumanus ne semble pas atteindre ce secteur.

Tranchée H (ill.48)[17] : au sud de la tranchée G, des terrasses construites avec murs de soutennement et conduites hydrauliques.

Tranchée I (ill.49)[18] : au nord du quartier, elle confirme l’absence de prolongement du decumanus. Une phase romaine avec des structures non identifiées, deux phases Byzantine/Omeyyade avec deux salles rectangulaires en partie excavées et dont le plan d’origine a été altéré. Une phase Omeyyade/Abbasside suivie d’un abandon, puis un éboulement probablement suite au séisme de 749. Durant la période Ayyûbide/Mamluk, des traces de foyers sont signalées, peut-être une salle à occupation temporaire. Le secteur est ensuite recouvert par une route au 19e siècle.

Tranchée J (ill.50)[19] : au sud de la grande cour qui s’étend à l’est de l’édifice Ionique. Des structures avec escalier menant à une grotte obstruée par la suite et de possible aménagement en cuisine. Trois phases romaines sont relevées et une Byzantine/Omeyyade. Construction d’une route ‘la rue centrale’ sur la cage d’escalier et la grotte qui est remblayée au début du 4e siècle. Cette phase semble liée au hameau de la période Ayyûbide/Mamluk sur les côtés nord et ouest de la grande cour. Après l’abandon d’habitats et de la route, le secteur est nivelé et un chemin est-ouest est délimité par des murets.

Tranchée K (ill.51)[20] : sur la pente est de la colline. Des traces de destructions soudaines peut-être consécutives au séisme de 749, avec des vestiges appartenant à un édifice orienté parallèlement à la pente. Des habitats de la période Omeyyade avec deux salles et une conduite d’eau, puis une extension de l’édifice vers l’est et un réaménagement interne. Cet ensemble est en partie détruit par le séisme de 749 et ne sera pas réparé ou réoccupé jusqu’à l’époque contemporaine.

Tranchée L (ill.52)[21] : sur la pente sud, à la jonction de la ruelle sud et du côté ouest de la grande citerne. Pas de structure architecturale construite en même temps que la citerne. Une deuxième phase du 5e/6e siècle voit la construction de la ruelle sud et l’émergence du quartier résidentiel de part et d’autre de cet axe est-ouest. L’édification d’un mur de soutenement à l’extrémité est de la ruelle et à l’intérieur de la citerne. Pendant la période Byzantine la ruelle est renivellée et certains aménagements sont apportés à cet endroit. L’ensemble décline à la fin de la période Byzantine/début Islam puis est abandonné probablement suite au séisme de 749.

Tranchée M (ill.53)[22] : au nord du quartier, sur le probable tracé du décumanus nord. Des vestiges de colonnes et des traces d’occupation d’époque Romaine et/ou Byzantine, peut-être la préparation du site à une construction non définie. Une terrasse est construite à l’époque Byzantine tardive ou Omeyyade puis réaménagée.

Tranchée N (ill.54)[23] : à l’ouest de la synagogue, dans la continuité de la tranchée J sur le côté sud et avec un accès aux salles souterraines. Découverte d’une salle souterraine avec sol en mosaïque et inscriptions grecques datées 576 et 591 A.D peut-être en lien avec la synagogue convertie en église. Les salles sont divisées en plus petites avec l’érection de murs au début de la période Islamique.

Tranchée O (ill.55)[24] : à l’angle nord-ouest de la citerne. Découverte d’une allée nord/sud avec habitat à l’ouest et conduite d’eau parallèle à l’allée datant du début de la période Islamique.

Tranchée P (ill.56)[25] : sur la terrasse est au sud de la tranchée K, une partie d’un habitat du début de la période Islamique, peut-être en lien avec habitat de la tranchée K, détruit lui aussi en 749.

Tranchée Q (ill.57)[26] : à cheval sur le mur d’enceinte de la ville. Une conduite d’eau et un canal (peut-être un égout).

Tranchée R (ill.58)[27] : à l’est de la tranchée G, le secteur ne semble pas bâti et servirait vraisemblablement de jardins urbains ou d’espace agricole.

Tranchée S-X.[28]

Les premières traces d’activité humaine de ce quartier semblent se limiter à l’exploitation des carrières. Une grande citerne (ill.37, 58) est construite sur la pente sud, utilisée jusqu’au 5/6e siècle puis comme carrière et zone résidentielle. Les informations sur le système hydraulique associé à cette citerne sont très lacunaires. Après le séisme de 749, le quartier nord-ouest est abandonné ou bien laissé vierge de construction pour être utilisé comme jardins urbains ou espace agricole. Une réoccupation est attestée seulement à partir de la période Ayyûbide/Mamluk avec un petit hameau réduit au point culminant de la colline.[29] Ce hameau est élevé autour d’une grande terrasse (57x31m) et consiste en trois complexes, chacun indépendant mais en lien avec les autres :

L’édifice Ionique (23x19m) doit son nom aux matéraux réutilisés, il comprend plusieurs salles et un espace pavé au sud (une cour ou une salle d’audience ouverte), une salle supplémentaire est ajoutée, les fouilles montrent la réutilisation de murs Omeyyades, mais aussi des traces de nivellement et d’arasement des structures antérieures. Son plan régulier et sa position dominante donne une fonction peut-être officielle à cet édifice. A l’est s’étend la grande terrasse au fonctionnement non identifié.

Le complexe A est un groupe de plusieurs salles ou plusieurs habitations d’une seule salle.

Le complexe B montre des salles organisées autour d’une cour. Peut-être la réunion de deux structures en une.

Les constructions d’époque Omeyyades ont donc été rasées, remblayées puis nivellées afin de servir de fondations aux nouvelles constructions sous les Ayyûbides/Mamluk, certains murs antérieurs sont aussi conservés et réutilisés. Ces habitats agglomérés ressemblent à ceux découverts à l’angle sud-ouest de la cour du sanctuaire de Zeus, à ceux du Tell Hisban et en plus imposants à ceux de Nahal Haggit.[30]

Il n’y a de traces d’agriculture ou d’installation de presses, l’approvisionnement en eau semble problématique. Toutes les tranches décrites ci-dessus sont remblayées, ce qui rend la lecture du terrain difficile.

 

 

 

Epigraphie

 

Pas d’inscription.

 

 

 

Biblio complémentaire :

Tholbecq (1997), p.153-179

Barnes (2006), p.285-314

Blanke (2007), p.177-197

Kennedy (2007)

Walmsley (2008), p.109-138

Kalaitzoglou (2012), p.79-88

Lichtenberger/Raja (2012), p.231-239

Ovadiah/Mucznik (2012), p.515-534

Kalaitzoglou (2013), p.57-79

Lichtenberger/Raja (2015), p.112-130

Lichtenberger/Raja (2015a), p.483-500

Lichtenberger/Raja (2016), p.66-81

Lichtenberger/Raja (2016a), p.317-359

Kalaitzoglou (2017), p.11-37

Lichtenberger/Raja (2017), p.39-103

Lichtenberger/Raja (2017a)

Rattenberg (2017), p.312-332

Kalaitzoglou (2018), p.11-43

Lichtenberger/Raja (2018) 

Lichtenberger/Raja (2018a) 

Lichtenberger/Raja (2018c), p.29-30

Lichtenberger/Raja (2019), p.51-71

Lichtenberger/Raja (2019a), p.1-7

Peterson (2019), p.73-83

Lichtenberger/Raja (2020), p.1-47

Kalaitzoglou (2022), p.17-129

Kalaitzoglou (2022a), p.131-226

Lichtenberger/Raja (2020), p.731-744

Peterson (2023)

 

 

 

 

 

Une image contenant carte, texte, diagramme, atlas

Description générée automatiquement

 

 

Une image contenant carte, texte, diagramme, atlas

Description générée automatiquement

 

 

Une image contenant ciel, plein air, Ruines, bâtiment

Description générée automatiquement

 

 

 

Une image contenant plein air, bâtiment, ciel, Site historique

Description générée automatiquement

 

 

 

Une image contenant bâtiment, ciel, plein air, Ruines

Description générée automatiquement

 

 

1/ plan du site de Jerash

2/ Plan du site de Jerash avec localisation des monuments

3/ l’accès actuel au site par l’Arche d’Hadrien

4/ l’Arche d’Hadrien

5/ vue de l’hippodrome depuis le sud avec un cintre de voûte en bois

 

 

 

Une image contenant ciel, arche, plein air, bâtiment

Description générée automatiquement

 

 

Une image contenant croquis, diagramme, dessin, conception

Description générée automatiquement

 

 

Une image contenant ciel, plein air, bâtiment, sol

Description générée automatiquement

 

 

Une image contenant ciel, plein air, bâtiment, Ruines

Description générée automatiquement

 

 

 

6/ la façade de l’Arche d’Hadrien

7/ plan de l’hippodrome

8/ la piste de l’hippodrome depuis le nord

9/ les gradins de l’hippodrome depuis le nord-est

10/ les salles de l’hippodrome

 

 

 

Une image contenant Ruines, ciel, Histoire antique, Site archéologique

Description générée automatiquement

 

 

Une image contenant Ruines, plein air, Histoire antique, Site archéologique

Description générée automatiquement

 

 

Une image contenant croquis, diagramme, Dessin technique, Plan

Description générée automatiquement

 

 

Une image contenant croquis, diagramme, Plan, carte

Description générée automatiquement

 

 

 

11/ vue de la ruelle et du sanctuaire de Zeus depuis la Porte Sud

12/ vue des échoppes le long de la ruelle de la Porte Sud

13/ plan du sanctuaire de Zeus

14/ plan des aménagements médiévaux dans le sanctuaire de Zeuw

15/ vue du sanctuaire de Zeus depuis le sud

 

 

 

Une image contenant Ruines, ciel, plein air, Histoire antique

Description générée automatiquement

 

 

Une image contenant Ruines, ciel, plein air, Histoire antique

Description générée automatiquement

 

 

Une image contenant ciel, Ruines, Histoire antique, Site historique

Description générée automatiquement

 

 

Une image contenant bâtiment, Ruines, ciel, plein air

Description générée automatiquement

 

 

 

16/ vue du sanctuaire de Zeus et du théâtre sud depuis la Place Ovale

17/ / vue du sanctuaire de Zeus depuis la Place Ovale

18/ le sanctuaire de Zeus depuis le nord

19/ les gradins du théâtre sud

20/ les gradins du théâtre sud

 

 

 

Une image contenant plein air, ciel, Ruines, Histoire antique

Description générée automatiquement

 

 

Une image contenant Ruines, Histoire antique, plein air, bâtiment

Description générée automatiquement

 

 

Une image contenant plein air, ciel, sol, bâtiment

Description générée automatiquement

 

 

Une image contenant Ruines, Histoire antique, plein air, ciel

Description générée automatiquement

 

 

 

21/ vue de la Place Ovale vers le nord depuis le sanctuaire de Zeus

22/ vue de la Place Ovale depuis le sanctuaire de Zeus

23/ la Place Ovale vers le nord

24/ la Place Ovale vers le nord

25/ vue de la Place Ovale depuis l’ouest

 

 

 

Une image contenant plein air, ciel, sol, Ruines

Description générée automatiquement

 

 

Une image contenant plein air, ciel, Ruines, Histoire antique

Description générée automatiquement

 

 

Une image contenant scène, ciel, Ruines, plein air

Description générée automatiquement

 

 

Une image contenant ciel, place de marché, plein air, Ruines

Description générée automatiquement

 

 

Une image contenant diagramme, croquis, Plan, carte

Description générée automatiquement

 

26/ la Place Ovale depuis le sanctuaire de Zeus

27/ vue de la Place Ovale et du cardo

28/ vue du cardo vers le nord depuis la Place Ovale

29/ le cardo en direction du nord

30/ plan de la mosquée de Jerash (état en 2004 et 2006

 

 

 

Une image contenant carte, diagramme, Plan, croquis

Description générée automatiquement

 

 

Une image contenant ciel, plein air, Ruines, Site archéologique

Description générée automatiquement

 

 

 

 

Une image contenant croquis, diagramme, Dessin technique, Plan

Description générée automatiquement

 

 

 

Une image contenant Ruines, Histoire antique, ciel, Site historique

Description générée automatiquement

 

 

 

Une image contenant ciel, Ruines, Histoire antique, Site historique

Description générée automatiquement

 

 

31/ plan de la mosquée de Jerash (état en 2007)

32/ vue de la mosquée depuis le nord-est

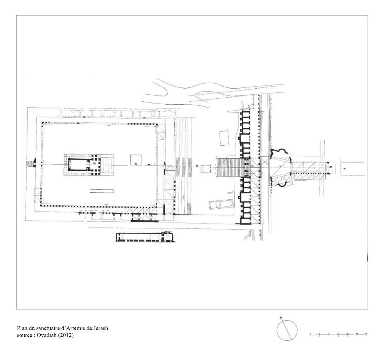
33/ plan du sanctuaire d’Artemis

34/ le grand escalier vers le sanctuaire d’Artemis

35/ le sanctuaire d’Artemis depuis le sud

 

 

 

Une image contenant Ruines, ciel, Histoire antique, plein air

Description générée automatiquement

 

 

Une image contenant plein air, ciel, Ruines, sol

Description générée automatiquement

 

 

Une image contenant Ruines, ciel, Histoire antique, Site archéologique

Description générée automatiquement

 

 

Une image contenant bâtiment, ciel, plein air, Ruines

Description générée automatiquement

 

 

Une image contenant carte, texte, diagramme, atlas

Description générée automatiquement

 

36/ vue du sanctuaire d’Artemis depuis l’ouest

37/ vue de la grande citerne du quartier nord-ouest depuis le nord

38/ l’escalier du théâtre nord

39/ les gradins du théâtre nord

40/ plan des fouilles du quartier nord-ouest de Jerash

 

 

 

Une image contenant texte, diagramme, croquis, dessin

Description générée automatiquement

 

 

Une image contenant texte, diagramme, Plan, schématique

Description générée automatiquement

 

 

Une image contenant texte, carte

Description générée automatiquement

 

 

Une image contenant texte, croquis, carte, diagramme

Description générée automatiquement

 

 

Une image contenant texte, transport, carte

Description générée automatiquement

 

41/ plan de la tranchée A du quartier nord-ouest

42/ plan de la tranchée B du quartier nord-ouest

43/ plan de la tranchée C du quartier nord-ouest

44/ plan de la tranchée D du quartier nord-ouest

45/ plan de la tranchée E du quartier nord-ouest

 

 

 

Une image contenant croquis, dessin, texte, illustration

Description générée automatiquement

 

 

Une image contenant texte, croquis, diagramme, dessin

Description générée automatiquement

 

 

Une image contenant texte, croquis, diagramme, Dessin technique

Description générée automatiquement

 

 

Une image contenant texte, croquis, diagramme

Description générée automatiquement

 

 

Une image contenant croquis, carte, diagramme

Description générée automatiquement 

 

 46/ plan de la tranchée F du quartier nord-ouest

47/ plan de la tranchée G du quartier nord-ouest

48/ plan de la tranchée H du quartier nord-ouest

49/ plan de la tranchée I du quartier nord-ouest

50/ plan de la tranchée J du quartier nord-ouest

 

 

 

Une image contenant carte, diagramme, croquis, Plan

Description générée automatiquement

 

 

Une image contenant croquis, carte, texte, dessin

Description générée automatiquement

 

 

Une image contenant croquis, carte, diagramme, noir et blanc

Description générée automatiquement

 

 

Une image contenant carte, croquis

Description générée automatiquement

 

 

Une image contenant texte, Plan, diagramme, carte

Description générée automatiquement

 

51/ plan de la tranchée K du quartier nord-ouest

52/ plan de la tranchée L du quartier nord-ouest

53/ plan de la tranchée M du quartier nord-ouest

54/ plan de la tranchée N du quartier nord-ouest

55/ plan de la tranchée O du quartier nord-ouest

 

 

 

Une image contenant carte, diagramme, Plan, Rectangle

Description générée automatiquement

 

 

Une image contenant capture d’écran, diagramme

Description générée automatiquement

 

 

Une image contenant texte, carte, diagramme, blanc

Description générée automatiquement

 

 

Une image contenant diagramme, croquis, Plan, origami

Description générée automatiquement

 

 

 

56/ plan de la tranchée P du quartier nord-ouest

57/ plan de la tranchée Q du quartier nord-ouest

58/ plan de la grande citerne du quartier nord-ouest

59/ plan des différentes phases du hameau Mamluk

60/ plan du hameau Mamluk du quartier nord-ouest

 

 

 

Une image contenant plein air, ciel, rocher, Badlands

Description générée automatiquement

 

 

Une image contenant plein air, ciel, rocher, paysage

Description générée automatiquement

 

 

Une image contenant plein air, ciel, sol, rocher

Description générée automatiquement

 

 

Une image contenant plein air, ciel, rocher, paysage

Description générée automatiquement

 

 

 

61/ vue du quartier nord-ouest depuis le sud

62/ vue du quartier nord-ouest depuis le sud-est

63/ vue du quartier nord-ouest depuis le sud-est

64/ vue du quartier nord-ouest depuis l’ouest

65/ la mosaïque de l’église Genesius

 

 

 

Une image contenant plein air, ciel, Ruines, sol

Description générée automatiquement

 

 

Une image contenant plein air, ciel, Ruines, Histoire antique

Description générée automatiquement

 

 

Une image contenant plein air, ciel, sol, place de marché

Description générée automatiquement

 

66/ vue du decumanus depuis le sud-ouest

67/ vue du sanctuaire d’Artemis et du decumanus depuis le sud

68/ la Place Ovale depuis le nord-ouest

 

 

 

Documents anciens

 

 

 

 

 

Plan du site vers 1812 d’après Burckhardt

Source : Burckhardt (1825)

 

 

 

Menu précédent

 

 

 

 

 



[1] Sur l’historique et la description de la cité antique et Byzantine, cf. Zayadine (1986), (1989) ; Lichtenberger/Raja (2018b) ; Lichtenberger/Raja, (2019c) ; Lichtenberger/Raja (2020b).

[2] Sur le début de la période Islamique, cf. Zayadine (1986) et (1989) ; Lichtenberger/Raja (2019c).

[3] Sur l’hippodrôme, cf. Ostrasz (1989), p.51-77 et Ostrasz (2020).

[4] Voir rapport, in Tholbecq (1997), p.153-179.

[5] Sur ces ateliers, cf. Bessard, F & Bonneric, J, « Jerash et l’essor de l’économie urbaine au début de l’Islam. Considérations à partie de l’exemple des ateliers de teinturiers Byzantino-Omeyyade de l’Hippodrome », in SHAJ 11, 2013, p.305-319.

[6] Voir rapport, in Tholbecq (1997), p.153-179.

[7] Voir rapport, in Tholbecq (1997), p.153-179.

[8] Sur cette partie du site, cf. Barnes (2006), p.285-314 ; Blanke (2007), p.177-197 ; Walmsley (2008), p.109-138.

[9] Voir rapport, in Kalaitzoglou (2013), p.57-79.

[10] Voir rapport, in Kalaitzoglou (2013), p.57-79.

[11] Sur la typologie des presses à huile, cf. Waliszewski (2009), p.709-721 ; Taxel (2013), p.361-394.

[12] Voir rapport, in Kalaitzoglou (2013), p.57-79.

[13] Voir rapport, in Kalaitzoglou (2017), p.11-37.

[14] Voir rapport, in Kalaitzoglou (2017), p.11-37 ; Kalaitzoglou (2018), p.11-43.

[15] Voir rapport, in Kalaitzoglou (2017), p.11-37.

[16] Voir rapport, in Kalaitzoglou (2017), p.11-37.

[17] Voir rapport, in Kalaitzoglou (2017), p.11-37 ; Kalaitzoglou (2018), p.11-43.

[18] Voir rapport, in Kalaitzoglou (2018), p.11-43.

[19] Voir rapport, in Kalaitzoglou (2018), p.11-43 ; Lichtenberger/Raja (2019), p.51-71.

[20] Voir rapport, in Kalaitzoglou (2018), p.11-43 ; Lichtenberger/Raja (2019), p.51-71.

[21] Voir rapport, in Kalaitzoglou (2018), p.11-43.

[22] Voir rapport, in Kalaitzoglou (2018), p.11-43.

[23] Voir rapport, in Lichtenberger/Raja (2019), p.51-71.

[24] Voir rapport, in Lichtenberger/Raja (2019), p.51-71.

[25] Voir rapport, in Lichtenberger/Raja (2019), p.51-71.

[26] Voir rapport, in Lichtenberger/Raja (2019), p.51-71.

[27] Voir rapport, in Lichtenberger/Raja (2019), p.51-71.

[28] Fouilles en 2016, en cours de publications. Voir un résumé in, Lichtenberger/Raja, « Jerash Nordwest Quarter project », in Achaeology in Jordan newsletter : 2016-1017 seasons, Amman, 2018, p.29-30.

[29] Voir rapport, in Lichtenberger/Raja (2016), p.66-81 ; Peterson (2019), p.73-83.

[30] Sur ce site, cf. Seligman (2010).