Tell Hisban (n.d.)

 

 

 

Localisation : à Hisban au nord de Madaba sur la route de ‘Amman.

 

 

 

Réf : 

Beegle (1969), p.118-126

Bird (1969), p.165-217

Blaine (1978), p.183-188

Boraas/Horn (1969), p.97-117

Boraas/Horn (1973), p.1-17

Boraas/Horn (1975), p.101-117

Boraas/Geraty (1976), p.1-17

Boraas/Geraty (1978), p.1-17

Brown (1978), p.167-182

Conder (1889), p.104-109

Ferch (1989)

Geraty (1973), p.89-112

Geraty (1975), p.183-202

Geraty (1976), p.41-53

Harvey (1973), p.17-34

Herr (1976), p.79-100

Herr (1976a), p.107-109

Herr (1978), p.109-128

Ibach (1976), p.119-126

Ibach (1987)

Lawlor (1978), p.189-199

Lawlor (1980), p.65-76

Mare (1976), p.62-78

Mare (1976a), p.109-112

Mare (1978), p.51-70

Meistermann (1909), p.279-280

Parker (1978), p.71-107

Sauer (1973), p.35-71

Sauer (1975), p.133-169

Sauer (1976), p.29-62

Sauer (1978), p.31-49

Thompson (1969), p.127-142

Thompson (1973), p.72-88

Thompson (1975), p.169-183

Van Elderen (1969), p.142-165

Van Elderen (1974), p.118-132

Van Elderen (1975), p.117-132

Van Elderen (1976), p.17-28

Van Elderen (1978), p.19-30

Vries (1986), p.223-235

Wimmer (1978), p.149-166

 

 

 

Historique

 

Situé sur la Route du Roi à 25km au sud de ‘Amman, le site est perché sur un tell à 800m d’altitude.

Devant les premières découvertes sur le peuplement et l’occupation du site en 1969, il est décidé d’en faire un champs d’étude pluridisciplinaire.

Le site a connu deux grandes campagnes de fouilles :

Heshbon Expedition 1968-1976 : principalement axée sur la connection du site avec la Bible[1], les fouilles se concentrent sur le sommet (zone A) et sur les pentes sud (zone B, D) et ouest (zone C). Les principaux édifices découverts sont : la Basilique byzantine, deux autres églises, un édifice monumental romain peut-être un Temple, les vestiges d’un complexe Mamluk, des tombes romaines (zone G), un réservoir de l’Age du Fer et des fortifications hellénistiques.

Hisban Cultural Heritage Project 1996- aujourd’hui : une partie du projet vise à nettoyer et à ouvrir le site au public en impliquant la population locale dans sa restauration et à continuer les fouilles avec une approche pluridisciplinaire. La première phase de cinq missions (1998, 2001, 2004, 2007, 2010) se concentrent sur les sites d’époque islamique dont le complexe Mamluk (zone L, N, Q), les vestiges médiévaux sur les pentes ouest et sud-ouest (zone C), le village médiéval (zone O) et une zone au nord-est du sommet du tell (zone M) qui s’avère être une extension du site Mamluk peut-être une citadelle.

A partir de 2013, le projet s’étend sur les pentes et les contrebas du tell. Les fouilles de la pente est et des contrebas sud ont révélées différentes phases d’occupations dont une Mamluk.

 

Les différentes zones de fouilles.

Zone A[2] : le hammam (zone A7 A8) et la Basilique au sommet du tell, largement fouillés durant la phase Heshbon Expedition.

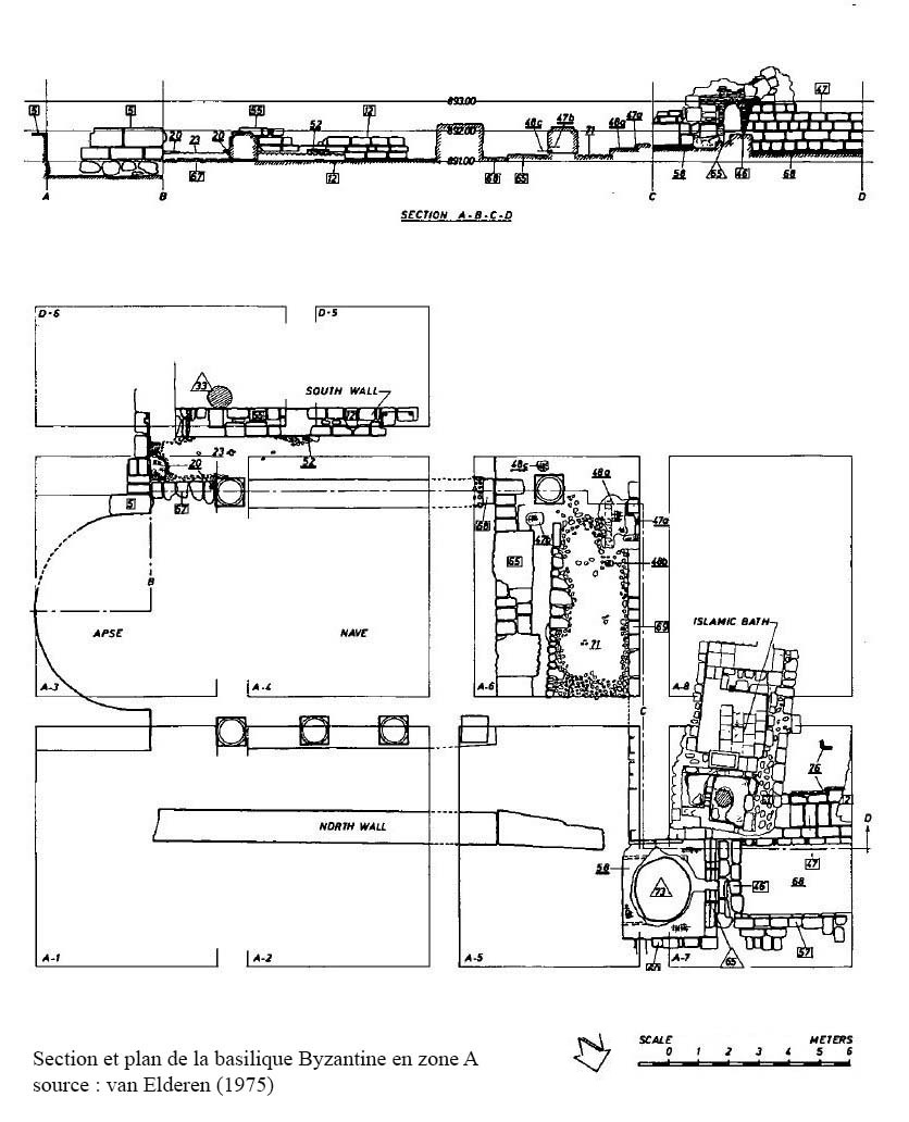
Le hammam a une taille relativement modeste (environ 14,5x5,5m), il présente toutes les salles d’un bain traditionnel et semble couvert par une voûte en berceau, les sols ainsi que le système de chauffe par hypocauste et les deux citernes (chaude et froide) sont conservés. Il n’y a pas de traces d’un circuit d’eau permettant de remplir les deux citernes du hammam se situant sur le point culminant du site. Ce hammam qui ne communique pas avec la résidence adjacente présente toutes les caractéristiques des bains Omeyyades qui équipent les dénommés ‘Châteaux du désert’, et de part ses modestes dimensions il semblerait être plutôt lié à la résidence du gouverneur que d’être dévolu au public (ill.1, 13-37, 42-44).

L’église byzantine a semble t-il servie de fondation aux habitats médiévaux construits dessus (ill.12, 15, 16, 19, 22, 31).[3]

Zone B[4] : sur la pente sud vers le grand réservoir, activement fouillé dans les années 1970. Cette session révèle des sols Mamluk en B4 et une habitation byzantine réutilisée comme dépotoir sous le Mamluk. Cette partie du tell apparaît peu occupée par les Mamluk et semble plutôt faire le lien entre la citadelle au sommet et la route d’accès dans la zone D (le grand escalier et l’accès sud sont recouverts durant la période médiévale), cet espace sert de terres agricoles suite à l’abandon de la citadelle (ill.48).

Le grand réservoir (zone G), utilisé à l’origne comme citerne ou carrière, devient un dépotoir sous les Mamluk. Il est associé à un important système hydraulique incluant citernes, canaux, salles… servant à récolter les eaux de pluie et celles provenant des quelques sources environnantes, ce système est réutilisé et perfectionné par les Mamluk.[5]

Zone C[6] : sur la pente ouest face au wadî Majar, c’est l’emplacement d’un village Mamluk en partie fouillé dans les années 1970. Il semble contenir un complexe s’étendant sur toute la pente à partir du mur ouest de la citadelle. Ces salles présentent la même architecture que les salles découvertes dans la zone M, elles reprennent aussi des éléments de remplois dont un système hydraulique et sont occupées jusqu’à la fin du 14e siècle, mais elles sont dévolues à un usage domestique. Deux structures en C4-C6 et C9-C10 sont bien préservées. Au nord, une ferme Mamluk reprend une construction byzantine et semble suivre la même architecture que les salles découvertes en zone M, elles s’ouvrent aussi sur une cour avec citerne, elles sont reconstruites au 14e siècle et seront réutilisées par les Ottomans. Des édifices de stockage sont aussi localisés à l’extrémité nord de la pente ouest (ill.49-51, 53-61).

Zone D[7] : fouillée dans les années 1970, une nouvelle session a exhumé des murs datés de la période Mamluk (ill.52).

Zone G[8] : plusieurs zones éparpillées sur le tell dont le grand réservoir et quelques grottes autour servant de citernes et réutilisées par les Mamluk pour stocker l’eau. Cette zone G inclue aussi les environs du tell dont le village au sud avec les bâtiments Ottomans[9] (ill.3).

Zone L[10] : directement au sud de la zone A, un édifice identifié comme la résidence du gouverneur local comprenant une cour pavée, deux salles au nord, une salle à iwan à l’ouest, une salle au sol réhaussé de 50cm au sud ainsi qu’un accès vers un escalier. Le tout semblait couvert par des voûtes en berceau. Le côté est de la cour est occupé par le hammam qui fait face à la salle à iwan (la salle d’audience). On retrouve ce type de résidence palatiale dans les châteaux de Kerak et Shawbak notamment.[11]

La technique de construction de cette résidence semble assez pauvre et remploi de nombreux matériaux antérieurs. Se pose alors la question de sa résistance face aux séismes qui secouent régulièrement la région dont celui de 757/1356[12] qui entraine le déplacement de la capitale régional à ‘Amman.

Au sud de la résidence, une salle à voûte basse devait servir de site de stockage, d’autres salles non fouillées au sud-ouest du hammam et un corridor montrent des traces d’éboulement et d’incendie consécutives au séisme de 757/1356 (ill.13, 20, 21, 23, 24, 26-30, 32).

Zone M[13] : localisée sur la pente nord du tell près de la tour nord-est de la citadelle, on note une occupation non définie de la pente adjacente. Plus bas cette occupation apparaît plus dense avec des rangées de salles étroites couvertes d’une voûte en berceau aveugle avec un accès au nord, orientées perpendiculairement par rapport à la pente et sans communication entre elles, ces salles semblent reposer sur d’anciennes terrasses avec réutilisation d’un système hydraulique antérieur. Cet ensemble de salles, daté de la période Mamluk (dernière phase d’occupation avec interruptions), fonctionne comme élément de stockage, comme étables en relation avec la citadelle (M4, M5, M8) voire comme unités domestiques.

A côté, la tour nord-est construite en plusieurs phases avec des remplois antérieurs (M1-M3). Immédiatement après la tour, une série de grottes avec corridors interconnectés, de facture byzantine, servant à capter l’eau est réutilisée par les Mamluk comme lieu de stockage (M1, M6, M7), (ill.75).

Zone N[14] : située à l’angle nord-ouest, directement au nord de la résidence palatiale, les fouilles ont exhumés un édifice Omeyyade sur la face intérieure du mur Hellénistique composé de deux salles (4x4m) communiquantes et d’un corridor, elles sont occupées et abandonnées sous les Abbassides puis réoccupées par les Mamluk qui réparent les murs et le toit, percent un nouvel accès par le sud et y installent un four (tabûn). Ces salles semblent fonctionner comme cuisines, peut-être, collectives. Elles sont de nouveau réoccupées après une période d’abandon par les Ottomans qui les équipent d’un bac à grains dans le mur (qiwarah) (ill.13, 38-41).

Zone O[15] : sur la pente sud-ouest et en contrebas, les fouilles ont révélées les mêmes constructions que précédemment dont une salle avec four (tannur), on note des modifications pendant la dernière phase d’occupation, notamment la séparation par un mur avec bac pour stocker le grain (qiwarah) à l’époque Ottomane. Un autre ensemble de constructions identiques, daté de la période Mamluk, est découvert en O9-O10 avec cours et citernes, cet ensemble est identifié comme une habitation construite sur des vestiges byzantins prouvant aussi une occupation de longue date du site (tout comme les habitats de la zone M). Les fouilles en 2014 ont exhumées une annexe à l’habitat.

Les fouilles menées sur cette zone permettent de se faire une idée du plan général de ces structures : deux fermes composées d’une salle construites l’une contre l’autre avec un étroit espace de stockage voûté entre elles, elles partagent une cour, deux citernes et un espace cuisine. La fonction de l’annexe au nord n’est pas connue. Ces deux fermes fonctionnent comme deux unitées indépendantes et ne communiquent pas entre elles (ill.62-66).

Zone P[16] : sur la pente sud-ouest et en contrebas, découverte d’une grande salle voûtée (9,6x6,2m) avec cour ceinte d’un mur, elle est datée de la période Mamluk avec extension et rénovation sous les Ottomans et au 19e siècle. Elle repose sur une structure Byzantine et Omeyyade (ill.67-72).

Zone R[17] : sur la pente est, endroit peu exploré. Les récentes fouilles ont révélées des sections de murs partant directement de la façade est de la citadelle et datant peut-être de la période Mamluk. La fonction de ces murs n’est pas connue.

 

Périodes antéreures.

Le site présente deux phases d’intense développement au 7e/6e siècle BC et au 2e/1e siècle BC à l’époque Hellenistique tardive avec la construction d’une acropole au sommet du tell et la présence de garnisons grecques.

Les Romains reprennent le site, qui se situe à l’époque sur la route nord-sud (via Nova Troiana) et la route est-ouest depuis la Trasjordanie jusqu’à la Palestine, ils en font un site à vocation commerciale plus que militaire. L’urbanisation du site s’accélère aux 3e/4e siècles avec l’élévation d’édifices domestiques et l’occupation d’espaces souterrains, les constructions deviennent monumentales comme en témoignent les vestiges du Temple découverts sous la basilique et le grand escalier sud menant à l’acropôle depuis la plaza qui datent de cette période, Esbus[18] acquiert ainsi le status de municipium. Ce status semble perdurer sous les premiers Byzantins à la première moitié du 4e siècle. Un séisme en 363/365 détruit une partie de ces édifices mais cela ne semble pas freiner la construction de bâtiments plus modestes.

Le Temple, détruit pendant le séisme, n’est pas reconstruit, il est réutilisé et remplacé par une Basilique byzantine. Peu à peu le tell se repeuple et le sommet est de nouveau construit avec des édifices et deux autres églises. La fin de la période Byzantine voit le site prendre le status d’évêché.

La période du début de l’Islam ne semble pas bouleverser le peuplement local, la fonction du site reste floue (peut-être administrative). Le site apparaît comme une ville avec la fonction administrative d’une capitale locale, le sommet est réinvesti, les pentes sont repeuplées par une série de fermes et les structures souterraines sont réutilisées comme parc à bestiaux, citernes ou espaces de stockage.

 

Périodes médiévales.

Le site semble avoir été réoccupé sous les derniers Ayyûbides qui y construisent une madrasa.

Sous le sultanat d’al-Nâsir Muhammad (3e règne 30 ramadan 709/3.III.1310 – 21 dhu’l-hijja 741/7.VI.1341), le site à une fonction militaire et résidentielle pour le gouverneur local et sa garnison car Hisban est passée au rang de capitale régionale du district de Balqa’, les édifices au sommet appartiennent au complexe édifié à cette période (hammam, structures domestiques) et réutilisent de nombreux matériaux antérieurs. Les pentes surtout au nord et à l’ouest sont densément occupées ainsi que les contrebas du tell. De nombreuses habitations sont regroupées sur des terrasses et incorporent un système hydraulique. Mais un séisme en 757/1356 endommage ces installations et faute de reconstruire, la capitale est transférée à ‘Amman et le site est peu à peu abandonné. Des sources mentionnent la visite du sultan al-Zâhir Barqûq en 791/1389 reçu par la tribu locale des Banû Mahdî qui devaient donc occuper les lieux confirmant ainsi un départ de l’administration Mamluk.

Sous les Ottomans, c’est un village et une halte saisonnière pour les tribus Adwan et Ajarma.

 

 

 

Epigraphie

 

Pas d’inscription.

 

 

 

Biblio complémentaire

Pringle (1997), p.50-51

Labianca (1998), p.245-257

Labianca/Ray (1999), p.115-125

Labianca/Ray (2000), p.9-21

Walker (2001), p.29-33

Jones (2003)

Walker (2003), p.241-261

Walker (2004), p.119-147

Walker (2008), p.509-528

Walker/Labianca (2003), p.443-471

Walmsley (2008), p.495-537

Labianca (2012), p.317-320

Sauer/Herr (2012)

Bates (2014), p.287-319

Jones (2016)

Bates/Hudon/Labianca (2017), p.657-675

Seiseh (2017)

Walker/Bates (2017), p.217-248

Walker/Hudon/Bates (2017), p.483-523

Walker/Laparidou (2017), p.167-245

Walker/Labianca (2018), p.47-48

Walker/Shqour (2018), p.557-595

Pini (2019)

Pini (2021), p.213-257

Walker (2021)

Walker (2021a), p.103-122

Pini (2022), p.681-700

Walker/Farahani (2025), p.33-76

 

 

 

 

Une image contenant diagramme, Plan, carte, schématique

Description générée automatiquement

 

 

 

Une image contenant texte, carte, diagramme, Plan

Description générée automatiquement

 

Une image contenant diagramme, croquis, dessin, Dessin au trait

Description générée automatiquement

 

 

Une image contenant croquis, dessin, diagramme, squelette

Description générée automatiquement

 

 

1/ plan du site avec localisation des édifices et des zones de fouilles

2/ plan du site avec le trajet de visite

Tell Hisban plan légende

3/ plan du site et des alentours avec les zones de fouilles des années 1970

4/ plan des zones de fouilles en 1969, 2003, 2014

 

 

 

Une image contenant texte, carte, diagramme, atlas

Description générée automatiquement

 

 

 

Une image contenant diagramme, Plan, blanc, carte

Description générée automatiquement

 

Une image contenant plein air, ciel, sol, géologie

Description générée automatiquement

 

 

Une image contenant plein air, ciel, Ruines, sol

Description générée automatiquement

 

 

Une image contenant plein air, sol, ciel, Éboulis

Description générée automatiquement

 

 

5/ plan des zones de fouilles en 2013

6/ plan des zones de fouilles en 2017

7/ vue de la partie sud-ouest du tell depuis la plateforme

8/ vue de la partie ouest du tell depuis la plateforme

9/ vue de la partie nord-ouest du tell depuis la plateforme

 

 

 

Une image contenant ciel, plein air, scène, Ruines

Description générée automatiquement

 

 

Une image contenant plein air, ciel, Ruines, sol

Description générée automatiquement

 

 

Une image contenant plein air, ciel, sol, Ruines

Description générée automatiquement

 

 

 

Une image contenant croquis, diagramme, Plan, dessin

Description générée automatiquement

 

 

 

10/ vue de la partie nord du tell depuis la plateforme

11/ vue de la partie nord-est du tell depuis la plateforme

12/ vue de la partie est du tell depuis la plateforme

13/ plan de la zone A avec la résidence Mamluk et N avec les salles Mamluk

14/ plan et relevés de la cour de la résidence Mamluk en zone A

 

 

 

Une image contenant diagramme, croquis, Dessin technique, Plan

Description générée automatiquement

 

Une image contenant croquis, texte, diagramme, dessin

Description générée automatiquement

 

 

Une image contenant croquis, dessin, Plan, Dessin technique

Description générée automatiquement

 

 

Une image contenant croquis, dessin, diagramme, Plan

Description générée automatiquement

 

 

 

 

15/ plan de la Basilique en zone A en 1975

16/ plan reconstitué de la Basilique en zone A en 1980

17/ plan et relevés du hammam en zone A

18/ vue axionométrique du hammam

19/ vue de la Basilique et de la résidence Mamluk depuis la plateforme

 

 

 

Une image contenant ciel, plein air, Ruines, désert

Description générée automatiquement

 

Une image contenant plein air, ciel, Ruines, bâtiment

Description générée automatiquement

 

Une image contenant ciel, Ruines, plein air, Histoire antique

Description générée automatiquement

 

Une image contenant ciel, Ruines, Histoire antique, Site archéologique

Description générée automatiquement

 

Une image contenant ciel, plein air, Ruines, Histoire antique

Description générée automatiquement

 

20/ vue de la résidence Mamluk depuis le nord

21/ vue de la cour pavée de la résidence Mamluk depuis le nord

22/ vue de la Basilique et de la résidence Mamluk depuis le nord-est

23/ vue de la résidence Mamluk depuis le nord-est

24/ vue de la résidence Mamluk depuis l’est

 

 

 

Une image contenant plein air, ciel, Éboulis, Ruines

Description générée automatiquement

 

Une image contenant Ruines, ciel, plein air, Site archéologique

Description générée automatiquement

 

Une image contenant ciel, Ruines, plein air, Site archéologique

Description générée automatiquement

 

Une image contenant ciel, bâtiment, Ruines, plein air

Description générée automatiquement

 

Une image contenant arche, bâtiment, plein air, ciel

Description générée automatiquement

 

25/ vue du sommet du tell depuis l’est

26/ vue de la résidence Mamluk depuis l’est

27/ vue du sommet du tell depuis l’est

28/ vue de la zone L depuis l’est

29/ vue des salles de la zone L depuis le nord-est

 

 

 

Une image contenant ciel, plein air, Ruines, bâtiment

Description générée automatiquement

 

Une image contenant Ruines, ciel, Site archéologique, Histoire antique

Description générée automatiquement

 

Une image contenant arche, bâtiment, plein air, ciel

Description générée automatiquement

 

Une image contenant plein air, ciel, désert, rocher

Description générée automatiquement

 

Une image contenant plein air, bâtiment, ciel, rocher

Description générée automatiquement

 

30/ une salle de la zone L depuis l’est

31/ vue de la basilique depuis l’est

32/ l’arche d’une salle de la zone L depuis le nord

33/ vue de la résidence Mamluk et du hammam depuis le sud

34/ vue du hammam depuis le sud

 

 

 

 

 

 

 

Une image contenant plein air, Ruines, ciel, rocher

Description générée automatiquement

 

35/ vue de la cour pavée et du hammam depuis le sud-est

36/ vue de la cour pavée depuis le nord

37/ vue de la cour pavée depuis le nord-ouest

38/ vue des salles Mamluk de la zone N depuis le sud-ouest

39/ les salles Mamluk de la zone N depuis le sud

 

 

 

Une image contenant plein air, Ruines, bâtiment, ciel

Description générée automatiquement

 

Une image contenant Ruines, plein air, ciel, Site archéologique

Description générée automatiquement

 

Une image contenant Ruines, plein air, Site archéologique, Histoire antique

Description générée automatiquement

 

Une image contenant Ruines, ciel, plein air, bâtiment

Description générée automatiquement

 

Une image contenant ciel, Ruines, plein air, bâtiment

Description générée automatiquement

 

40/ les salles Mamluk de la zone N depuis l’est

41/ les salles Mamluk de la zone N depuis l’ouest

42/ vue du hammam depuis le nord-ouest

43/ le hammam depuis le nord

44/ le hammam depuis le nord-est

 

 

 

 

Une image contenant bâtiment, ciel, plein air, Ruines

Description générée automatiquement

 

Une image contenant plein air, ciel, rocher, Éboulis

Description générée automatiquement

 

Une image contenant croquis, dessin, Dessin au trait, diagramme

Description générée automatiquement

 

 

Une image contenant croquis, Dessin au trait, diagramme, dessin

Description générée automatiquement

 

45/ vue du mur hellénistique depuis l’ouest

46/ vue du mur hellénistique depuis le nord

47/ vue du sommet du tell depuis le sud-est

48/ plan de la zone B1, B2, B3, B4

49/ plan de la zone C

 

 

 

Une image contenant croquis, diagramme, carte, Plan

Description générée automatiquement

 

 

 

Une image contenant croquis, diagramme, Dessin technique, carte

Description générée automatiquement

 

Une image contenant diagramme, Plan, motif

Description générée automatiquement

 

 

Une image contenant plein air, sol, Éboulis, rocher

Description générée automatiquement

 

 

Une image contenant plein air, sol, Éboulis, géologie

Description générée automatiquement

 

 

50/ plan de la zone C6, C8

51/ plan de la zone C9, C10

52/ plan de la zone D1, D2

53/ vue de la partie médiévale à l’ouest du tell

54/ une partie du village médiéval à l’ouest

 

 

 

 

Une image contenant plein air, ciel, montagne, Éboulis

Description générée automatiquement

 

Une image contenant plein air, ciel, sol, Éboulis

Description générée automatiquement

 

 

Une image contenant plein air, Ruines, bâtiment, sol

Description générée automatiquement

 

55/ vue du sommet du tell avec l’escalier depuis le village médiéval

56/ vue du sommet du tell depuis le village médiéval à l’ouest

57/ vue du village médiéval depuis le sud-est

58/ un édifice du village médiéval (madrasa Ayyûbide ?)

59/ l’édifice depuis le nord

 

 

 

Une image contenant plein air, nature, géologie, grotte

Description générée automatiquement

 

 

Une image contenant plein air, ciel, géologie, montagne

Description générée automatiquement

 

 

 

Une image contenant croquis, Dessin au trait, dessin, diagramme

Description générée automatiquement

 

Une image contenant texte, diagramme, carte

Description générée automatiquement

 

 

Une image contenant texte, croquis, diagramme, dessin

Description générée automatiquement

 

 

60/ l’édifice depuis le nord-ouest

61/ vue du village et du sommet du tell depuis l’ouest

62/ plan du groupe de fermes de la zone O

63/ modélisation du groupe de fermes de la zone O

64/ plan et vue aérienne de la zone O9, O10

 

 

 

Une image contenant Minéral, rocher, pierre

Description générée automatiquement

 

Une image contenant casque

Description générée automatiquement

 

 

 

 

Une image contenant plein air, sol, Éboulis, paysage

Description générée automatiquement

 

 

65/ vue aérienne de la zone O10

66/ photogrammétrie du groupe de fermes de la zone O

67/ le groupe des fermes de la zone P depuis le tell

68/ le groupe de fermes en zone P depuis l’est

 

 

Une image contenant Ruines, ciel, plein air, Site archéologique

Description générée automatiquement

 

 

Une image contenant Ruines, plein air, ciel, bâtiment

Description générée automatiquement

 

 

 

 

 

Une image contenant texte, croquis, diagramme, Plan

Description générée automatiquement

 

69/ vue du groupe de fermes en zone P depuis le nord

70/ une partie des fermes en zone P depuis le nord-est

71/ une partie des fermes du groupe P depuis le nord-est

72/ modélisation d’une habitation en zone P

 

 

 

 

 

 

73/ vue du grand escalier et de la plaza depuis l’est

74/ vue du sommet du tell depuis le sud

75/ plan des habitations de la zone M

 

 

 

 

Documents anciens

 

Meistermann (1909), p.279-280. Visite en 1907.

Les ruines d'Hesbân, à gauche, s'étendent à une distance de 800 mètres sur la crête d'une longue colline (alt. 874 m.), qui se dirige du sud-sud-ouest au nord-nord-est. C'est l'antique Hésebon.

Ruines. L'ancienne Hésebon s'élevait au centre, sur une éminence séparée artificiellement de la crête au nord et au sud. Elle servit d'acropole à la ville gréco-romaine qui s'étendit spécialement vers le midi. A l'angle sud-ouest de la ville, on voit les ruines d'un château-fort d'origine romaine, el Qalaah, qu'un négociant utilise aujourd'hui comme magasin de grains. Plus au nord, gisent des décombres d'un palais marqués par une colonne encore debout

et qui provient probablement d'un ancien temple. Partout l'on remarque des débris de colonnes, de moulures, de sculptures, ainsi que des voûtes, des citernes et surtout de beaux réservoirs. Au sud-est, un de ces bassins a 58 mètres de longueur sur 42 de largeur avec 3 à 4 mètres de profondeur. Mais les décombres se sont trop accumulés sur la crête, pour qu'il soit permis, sans entreprendre des fouilles, de distinguer les anciens monuments.

Une des constructions les mieux conservées est un bâtiment divisé en huit compartiments au sud-sud-ouest de la ville. Dans la masse rocheuse de cette colline, au sud et à l'ouest de cet édifice, on a creusé un grand nombre de sépulcres.

Dans l'enceinte centrale de la ville s'élevait une construction de 50 mètres sur 48, dont le mur est solidement bâti on blocs non taillés. Les murs de l'acropole ont également leurs premières assises bâties en gros blocs à peine équarris. Tout autour de nombreuses colonnes, qui auront appartenu à un temple, sont couchées à terre 3.

Au nord-ouest de la ville, on rencontre les restes d'un petit temple ionique et les arasements d'une église bien orientée d'environ 22 mètres de long sur 17 de large.

 

 

 

Menu précédent

 

 

 



[1] Le site Heshbon/Hisban est mentionné 35 fois dans l’Ancien Testament.

[2] Voir rapport, in Harvey (1973), p.17-34 ; Lawlor (1980), p.65-76 ; Van Elderen (1969), p.142-165

Van Elderen (1974), p.118-132 ; Van Elderen (1975), p.117-132 ; Van Elderen (1976), p.17-28 ; Van Elderen (1978), p.19-30 ; Vries (1986), p.223-235.

[3] Sur l’étude de la basilique, cf. biblio in note 2.

[4] Voir rapport, in Walker (2013) ; Bates (2014), p.287-319 ; Walker (2017), p.492-502 ; Walker/Labianca (2018), p.47-48 ; Walker/Labianca (2020), p.57-58 et Beegle (1969), p.118-126 ; Sauer (1973), p.35-71 ; Sauer (1975), p.133-169 ; Sauer (1976), p.29-62 ; Sauer (1978), p.31-49.

[5] Sur le sysytème hydraulique, cf. Walker (2017), p.501-508.

[6] Voir rapport, in Walker (2013) ; Labianca/Ray (1999), p.115-125 et Mare (1976), p.62-78 ; Mare (1978), p.51-70 ; Parker (1978), p.71-107 ; Thompson (1969), p.127-142 ; Thompson (1973), p.72-88 ; Thompson (1975), p.169-183.

[7] Voir rapport, in Labianca/Ray (1999), p.115-125 et Bird (1969), p.165-217 ; Geraty (1973), p.89-112 ; Geraty (1975), p.183-202 ; Herr (1976), p.79-100 ; Herr (1978), p.109-128.

[8] Voir rapport, in Labianca/Ray (1999), p.115-125 et Blaine (1978), p.183-188 ; Brown (1978), p.167-182 ; Herr (1976a), p.107-109 ; Lawlor (1978), p.189-199 ; Mare (1976), p.62-78 ; Wimmer (1978), p.149-166.

[9] Sur cet ensemble, cf. Walker/Labianca (2003), p.443-471; Carroll (2006), p.138-145 et Wimmer (1978), p.149-166.

[10] Voir rapport, in Walker/Labianca (2003), p.443-471; Walker/Bates/Hudon (2017), p.483-523.

[11] Sur les palais au sein des forteresses, cf. Brown (1988), p.225-245 ; Brown (1989), p.287-304 ; Brown (2013b), p.309-335 ; Brown (2016), p.541-560 ; Fragai (2019), p.187-208.

[12] D’autres séismes ont lieu en 741/1341, 743/1343, 768/1366, 807/1403-1404 et 862/1458. Sur les séismes, cf. Sbeinati (2005), p.347-435 et Hinzen (2016), p.751-764 qui démontre les effets d’un séisme sur les arches de la forteresse de Subayba/Nimrod.

[13] Voir rapport, in Walker (2013) ; Walker (2017), p.489-492 ; Walker/Labianca (2018), p.47-48 ; Walker/Shqour (2018), p.557-595 ; Walker/Labianca (2020), p.57-58.

[14] Voir rapport, in Walker/Labianca (2003), p.443-471; Walker/Bates/Hudon (2017), p.483-523.

[15] Voir rapport, in Walker (2013) ; Walker (2017), p.484-489 ; Walker/Labianca (2018), p.47-48 ; Walker/Shqour (2018), p.557-595 ; Walker/Labianca (2020), p.57-58 ; Walker (2022a), p.35-37.

[16] Voir rapport, in Walker/Labianca (2018), p.47-48 ; Walker/Shqour (2018), p.557-595.

[17] Voir rapport, in Walker (2013) ; Bates (2014), p.287-319 : Walker (2017), p.492 ; Walker/Shqour (2018), p.557-595.

[18] Nom Romain de Tell Hisban.