Mosquée al-Huzayfa (n.d.)

 

 

 

Localisation : Shaqif Addas Street (plan n°2).

 

 

 

Réf :

 

 

 

Historique

 

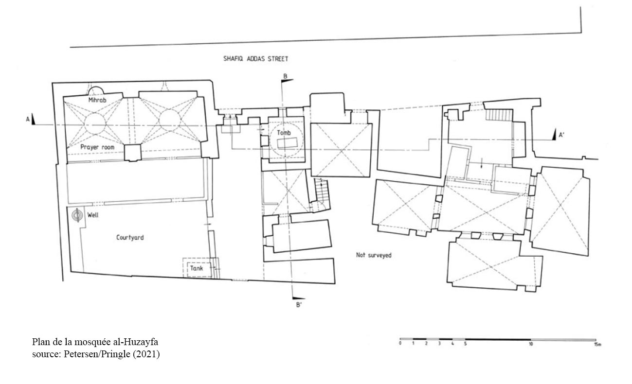
Un complexe comprennant une mosquée avec cour et salles, une citerne et un minaret projeté sur la chaussée (ill.1). Le site est daté par comparaison stylistique avec la mosquée Abû’l-Fadl située dans la même ville.[1]

 

 

 

Epigraphie

 

Pas d’inscriptions.

 

 

 

Biblio complémentaire :

Petersen/Pringle (2021), p.95-97, n°2

 

 

 

 

 

 

 

Une image contenant texte, dessin au trait

Description générée automatiquement

 

 

 

 

Une image contenant texte, ciel, extérieur, bâtiment

Description générée automatiquement

 

Une image contenant ciel, extérieur

Description générée automatiquement

 

 

1/ plan de la mosquée

2/ sections de la mosquée

3/ élévation et plan du minaret

4/ vue de la ruelle Shaqif Addas avec le minaret

5/ vue de la ruelle Shaqif Addas avec une partie de la mosquée depuis l’ouest

 

 

 

Une image contenant texte, extérieur, ciel, route

Description générée automatiquement

 

 

 

Une image contenant bâtiment, ciel, extérieur, vieux

Description générée automatiquement

 

 

 

Une image contenant bâtiment, ciel, extérieur, rue

Description générée automatiquement

 

 

Une image contenant ciel, extérieur, bâtiment, tour

Description générée automatiquement

 

6/ vue de la partie centrale

7/ partie centrale de la mosquée

8/ le minaret depuis l’ouest

9/ le minaret depuis l’est

 

 

 

 

Documents anciens

 

 

 

Menu précédent

 

 

 

 

 



[1] Cf. Petersen/Pringle (2021), n°1