Grande Mosquée de Hama (n.d.)

 

 

 

Localisation : au sud-ouest de la citadelle, actuelle rue Jami’ al-Kabir.

Visite en 2006, 2010.

 

 

 

Réf :

Creswell (1932)

Creswell (1957), p.48-53

Meinecke (1992), 7/26, 9B/23, 25B/59, 30/2, 42/206

 

Oppenheim/Berchem (1909), n°27, 28, 29

Hussiny (2025), p.20-65

Mayer (1933), p.89-90

RCEA 4778, 4839, 5136

Sauvaget (1933), n°17, 18, 19, 20, 21, 22, 23, 24, 25, 26, 27, p.3 u, n

TEI, n°2424, 3536, 3855, 7756, 7768, 9291, 9294, 9402, 9796, 9879, 10634, 11479, 11488, 11489, 11544, 11933, 12065, 12066, 12067, 12088, 12089, 58551

 

 

 

Historique

 

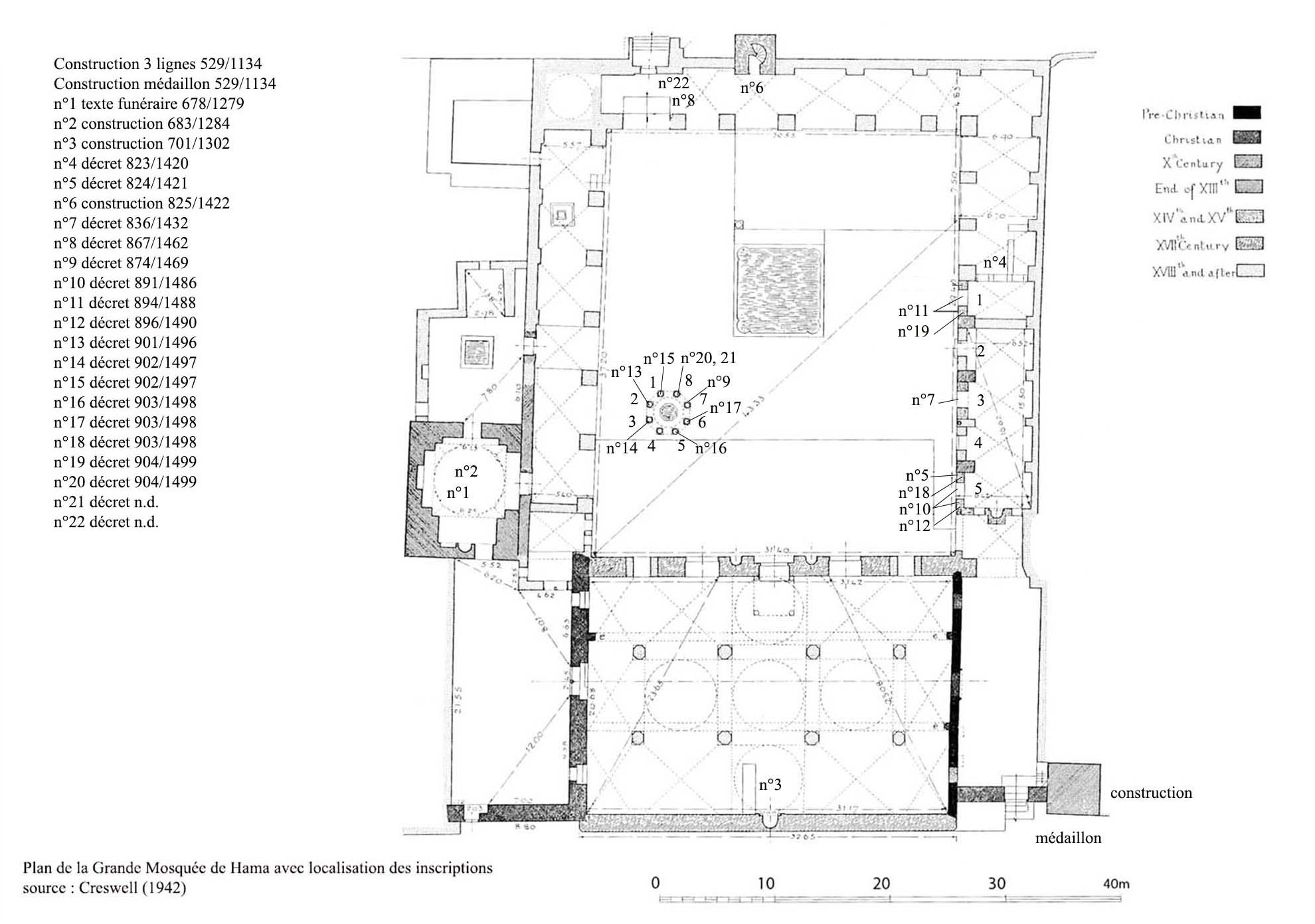
La Grande Mosquée de Hama est une construction d’origine Omeyyade, élévée sur l’emplacement de l’ancienne basilique de la ville. La salle de prière conserve encore quelques vestiges de l’ancien temple antérieur à la basilique.[1] Au sud-est, le minaret à base quadrangulaire, orné d’une alternance de blocs calcaires et basaltiques, porte une inscription de construction datée 529/1134 (ill.4)[2] et un médaillon inscrit mentionnant des travaux sur le minaret (ill.5).[3] Il y peu d’informations sur la période Ayyûbide, la plupart des travaux d’agrandissements ou de restaurations de l’édifice datent de la période Mamluk.

 

Période Ayyûbide

Un tombeau, au nom des Ayyûbides al-Malik al-Mansûr (r.642/1244-683/1284) et al-Malik al-Muzaffar Mahmûd (r.683/284-698/1299)[4], est construit sur le côté ouest de la mosquée, il consiste en une salle avec mihrâb recouverte d’une coupole, une petite cour avec bassin au nord complète le tombeau. Il abrite un cénotaphe qui porte un texte funéraire daté 678/1281 (inscription n°1 sur plan) et une inscription de construction datée 683/1284 (inscription n°2 sur plan). Ces inscriptions donnant une date pour l’achèvement des travaux du tombeau.[5]

 

Période Mamluk

Le minbar de la salle de prière porte une inscription de construction datée 701/1302 (inscription n°3 sur plan, ill.1)[6] qui mentionne le commanditaire Zain al-Dîn Kitbughâ, alors gouverneur de la ville jusqu’à sa mort le 10 dhu’l-hijja 702/26.VII.1303. Ce Kitbughâ est l’ancien sultan qui a régné sous le nom d’al-Adîl Kitbughâ (r.11 muharram 694/1.XII.1294 - 27 muharram 696/25.XI.1296) ; il est inhumé dans le tombeau Kitbughâ construit sur le mont Qasyûn à Damas.[7]

D’autres travaux dans la salle de prière sont documentés : un blason sur un pilier atteste qu’à la fin du 9e/14e siècle (probablement sous le sultan al-Zâhir Barqûq ou al-Nâsir Faraj), le mur de qibla a subit des trasformations, il semble aussi que plusieurs parties de la salle de prière aient connues diverses modifications.

Le portique orientale a été rallongé vers le sud avec trois nouvelles arcades et transformé en masjîd avec l’ajout d’un mihrâb (ill.1). Cette modification peut-être datée d’après les nombreux décrets gravés sur cette partie de la mosquée, le plus ancien étant daté 836/1433 (inscription n°7 sur plan, ill.1, 14), les travaux sont donc antérieurs à cette date.

Le minaret nord, de forme octogonale, peut-être daté des années 1470-1480. Cette datation repose sur la comparaison de sa forme et de son décor avec le minaret sud-ouest de la Grande Mosquée de Damas qui est commandé par le sultan Qaitbay en 887/1482. D’autres éléments (chevrons, colonnes torsadées) se rapprochent beaucoup du répertoire ornemental des minarets érigés à Alep dans les années 1470 (ill.2, 6, 7).

On trouve sur le portique est de la cour et sur les colonnes du khazne (petit édifice porté par des colonnes), une douzaine de décrets s’étalant de 874/1470 à 904/1499 (ill.10-32), ils concernent l’abolition des taxes perçues et la suppression de mesures injustes prises sur la population. On trouve aussi une série de décrets traitant des mêmes préoccupations à la Grande Mosquée de Damas et d’Alep.

 

En 1982, la Grande Mosquée de Hama a été largement détruite puis reconstruite à l’identique.[8]

 

 

 

Epigraphie

 

Tableau de concordances des inscriptions de la GM de Hama.

 

678/1280. Texte funéraire 1 ligne sur le cénotaphe d’al-Muzaffar (inscription n°1 sur plan, ill.1).[9]

« Ce tombeau béni est le tombeau du sultan al-Malik al-Muzaffar Takîy al-Dîn Mahmûd, que Dieu abreuve celui qui y repose de la pluie de Sa miséricorde, lui donne en compensation de ce dont il a été frustré Ses faveurs, Sa satisfaction et Son pardon et fasse de la brièveté du délai qu’il a passé en ce bas-monde une cause de sa vie éternelle dans Son paradis, par Mahomet, sa famille et sa descendance ! Il est décédé à la générosité et à la satisfaction de Dieu le 12 dhu’l-qa’da béni de l’année 678 (16.III.1280). »

 

 

683/1284. Texte de construction 1 ligne sur le cénotaphe d’al-Muzaffar (inscription n°2 sur plan, ill.1).[10]

« Ce tombeau béni a été fait par ordre de notre maître le sultan al-Malik al-Muzaffar, le savant, le juste, le champion de la foi, le combattant, le défenseur des frontières, l’assisté de Dieu, le victorieux, le vainqueur, Takîy al-dunyâ wal-Dîn Abul-Fath Mahmûd, fils du sultan al-Malik al-Mansûr Nasir al-dunyâ wal-Dîn Abul-Ma’âlî Muhammad, fils du sultan al-Malik al-Mansûr Takîy al-dunyâ wal-Dîn Abul-Fath Mahmûd, fils du sultan al-Malik al-Mansûr Nasir al-dunyâ wal-Dîn Abul-Ma’âlî Muhammad, fils du sultan al-Malik al-Muzaffar Takîy al-dunya wal-Dîn Abul-Fath ‘Umar, fils de Shâbân-Shâh, fils d’Aiyûb, que Dieu glorifie ses victoires, double sa puisssance et élève son phare ! Cela (a été achevé) dans la première décade du mois de shawwal de l’année 683 (11-20.XII.1284). »

 

 

701/1302. Texte de construction et signature 4 ligne sur le minbar (inscription n°3 sur plan, ill.1).[11]

« La fondation de cette chaire bénie a été ordonnée par Sa noble Majesté, élevée, notre maître le seigneur, appartenant au souverain, victorieux vainqueur, bien servi, savant, juste, Zain al-Dîn Katbughâ, - que Dieu glorifie ses victoires ! – sur l’injonction de l’avide de Dieu, qui espère l’indulgence de son Maître, Ahmad, fils d’Ahmad, xxx (?). Oeuvre des deux esclaves avides de Dieu ‘Alî xxxx et ‘Abd-Allâh Ahmad, que Dieu ait pitié de lui ! xxx L’achèvement en coïncida avec la mi-sha’bân bénie des mois de l’année 701 (15.IV.1302). »

 

 

823/1420. Décret sur la porte nord-est du portique est (inscription n°4 sur plan, ill.1).[12]

Texte non disponible.

 

 

ca.824/1421. Décret 9 lignes sur le montant gauche de l’ouverture 5 à l’est de la cour (inscription n°5, ill.1, 15, 19, 20).[13]

« A la date du lundi 24e jour du mois de Muharram 8xx, notre maître le roi des émirs, gouverneur général de la province de Hama, Tanibak al-Bajâsî al-Zâhirî – puisse Dieu glorifier ses victoires ! – a décrété l’abolition de la taxe illégale que l’on percevait des commerçants, ainsi que des tribulations (???) infligées aux souks à cause d’elle, au début de chaque année. »

 

 

825/1422. Inscription de construction 2 lignes (100x40) sur la porte du minaret (inscription n°6 sur plan, ill.1).[14]

Texte non disponible.

 

 

836/1433. Décret 2 lignes sur le linteau de l’ouverture 3 à l’est de la cour (inscription n°7 sur plan, ill.1, 14).[15]

« Louanges à Dieu ! – A la date de la seconde décade du mois de ramadan, dont la valeur est respectée, en l’année 836 (30.IV-10.V.1433), parvinrent d’Alep (puisse Dieu la garder !) à Hama (puisse Dieu la garder !) les décrets royaux d’al-Malik al-Ashraf (puisse Dieu les rendre encore plus nobles et respectés !) abolissant les mesures abusives récemment instituées, savoir : les rimâya ; - la taxe sur les aires, la cotonnade écrue, l’huile, le riz et le savon, - ainsi que les taxes illégales récemment créées sur les aires à battre, et les contributions imposées arbitrairement aux vergers, ordonnant (en même temps) de traiter les musulmans avec justice et équité, et de graver ce décret à la porte des grandes mosquées (puissent-elles demeurer pures !) et des palais de justice, afin que les prières des musulmans s’élèvent en faveur de la durée de notre règne auguste – Louanges à Dieu ! »

 

 

867/1462. Décret 3 lignes (35x35) sur un pilier vers l’entrée nord (inscription n°8 sur plan, ill.1).[16]

« Au mois de rabi'I de l'année 867 (novembre-décembre 1462) apparaît (la haute instruction…) du gouverneur de la province royale de Hama, qui peut-être préservé … »

 

 

874/1470. Décret 14 lignes (122x162) sur la colonne 7 du khazne (inscription n°9 sur plan, ill.1, 23, 30).[17]

« Au 15 du mois de shawwal de l'année 874 (17.IV.1470) arrivaient les ordres de sa très haute Majesté notre seigneur le sultan, le souverain, al-Malik al-Ashraf Abu'l-Nasr Qaitbay, Allâh rend ses victoires puissantes, aux mains de notre seigneur le sharîf Alâ al-Dîn respecté, de haute naissance, l’Egyptien, Shafi'ite, le confident de sa Majesté royale, l'inspecteur des seigneurs sharîf, le dirigeant du cloître d’al-Nâsirîya à Sirjaqus et shaykh de la haute école d’al-Taibarsîya, Allâh renouvèle sur nous ses bénédictions, (dirigé) à chacun des gouverneurs des provinces impériales et de ses grands juges des quatre sectes (sunnites), cela dit que serait abolis les directeurs de chancellerie en Egypte retirés au fonctionnaire de l'administration civile et de la justice, et que serait déposé celui qui est trop corrompu d'une manière quelconque à un jugement légal, et qu'aucun de ceux-ci ne peuvent se faire accorder un cadeau pour de tels jugements, de ses suppléants dans les districts, aussi aucun cadeau ne peut être accepter par ordre d'un autre, et aucun traitement mensuel ou autre (?), aussi aucun honoraire pour des jugements, et que n’en exige pas non plus l'un de ceux-ci d'une quelconque manière. Et celui qui le fait intentionellement, serait déposé de ses fonctions de juge et il lui sera désormais pas permis à l'avenir de se mêler des sentences légales, non plus des contrats juridiques. Maintenant, nous l'avons prescrit et leur avons imposé et avons mis toutes ces conditions, à savoir par l’entremise de son excellence Zain al-Dîn ibn Muzhir, le Shafi'ite, le directeur de la chancellerie royale en Egypte, Allâh fait respecter sa position ! Et il a laissé afficher, ce décret dans cette mosquée bénie ….  Son abolition que nous avons stipulé et avons imposé. Et la gloire à Allâh à l'unique! »

 

 

891/1486. Décret 2+2 lignes (320x30 et 82x30) sur le linteau et le montant droit de l’ouverture 5 à l’est de la cour (inscription n°10, ill.1, 15-17).[18]

« A la date du jeudi, 2e jour de Sha’bân le Vénéré, en l’année 891 (3.VIII.1486), furent promulgués les décrets princiers, augustes, de notre maître, le seigneur, le chef, Sayf al-Dîn Barsbay al-Zâhirî, al-Ashrafî, notre maître le roi des émirs, gouverneur général de la province royale de Hama (puisse le Très Haut glorifier ses victoires et augmenter sa puissance, en considération de ses bonnes actions !), … abolissant la (taxe de) tournée récemment imposée au pays d’al-Ma’arra et à ses paysans, au profit des gouverneurs généraux de Hama. Que ce bienfait princier soit inscrit au nombre des bonnes œuvres royales, princières ! Il a pris cette décision par bienveillance pour ses sujets et par souci de la prospérité du pays, dans l’espoir de l’agrément du Très Haut et par désir de Sa récompense. – Maudit soit quiconque renouvellera cette injustice, ou s’efforcera de la rétablir, et puisse Dieu pardonner à celui qui provoqua cette mesure ! »

 

 

894/1489. Décret 2+3 lignes (190x39 et 82x39) sur le linteau et le montant droit de l’ouverture 1 à l’est de la cour (inscription n°11, ill.1, 10, 11).[19]

« A la date du 24 Sha’bân 894 (23.VII.1489), notre maître, Son Altesse très noble, princière, auguste, notre maître, le seigneur, le chef, le gouverneur général, Sayf al-Dîn Aynâl al-Ashrafî, gouverneur général de la province de Hama – que Dieu garde ! – (puisse Dieu glorifier ses victoires !), a interdit de faire payer, à cause du coton, aux marchands de coton à Hama la taxe prélevée sur les métiers des cardeurs. (Elle a agi ainsi) pour obtenir la récompense de Dieu et profiter de Sa rémunération. – Maudit en même temps que son père, dans ce monde et dans l’autre, quiconque renouvellera cette injustice ! »

 

 

896/1490. Décret 5 lignes (60x85) sur le montant droit de l’ouverture 5 à l’est de la cour (inscription n°12 sur plan, ill.1, 15, 17, 18).[20]

« On the 20th of the bessed month of shawwal in the year 896AH (1490), our lord, king of the amîr Yashbak min Haidar, the guardian of the Hama province – may Allâh glorify his victory – upon the request of the esteemed amîr Janibak al-Sayfî, dawadar, has ordered that within the juridiction of his guardianship, the jailer shall not take from the prisoner more than four dirhams, two dirhams for cooking oil and two for oil fuel, nothing more. No new injustice shall be imposed thereafter, and cursed is he who takes more or invents a new charge ».

 

 

901/1496. Décret 5 lignes (90x68) sur la colonne 2 du khazne (inscription n°13 sur plan, ill.1, 24, 26).[21]

« A la date du 15 Jumada I 901 (2.III.1496) fut promulgué le décret princier, auguste, de notre maître le grand émir, le seigneur, le chef, le gouverneur général, Sayf al-Dîn al-Ashrafî Qânsûh al-Sharifî al-Shamî, gouverneur général de la province de Hama (puisse Dieu glorifier sa victoire !), ordonnant d’abolir ce que l’on prélevait, au profit de la Chancellerie (puisse-t-elle demeurer prospère !) et autres, sur (les fonds destinés à) l’aqueduc de Salamîya, et de ne plus prendre sur ces fonds autre chose que le salaire des ouvriers travaillant à cet aqueduc. Quiconque renouvellera ces exactions, qu’il soit maudit en même temps que son père et que son Prophète soit son adversaire (au jour du Jugement) ! »

 

 

902/1497. Décret 6 lignes (95x68) sur la colonne 3 du khazne (inscription n°14 sur plan, ill.1, 24, 27).[22]

« A la date du 13 Sha’bân 902 (16.IV.1497) parvinrent les décrets princiers de sa très noble Altesse Sayf al-Dîn Arkmâs fils de ‘Abd Allâh, al-Nâsirî (puisse Dieu glorifier ses victoires !), ordonnant de ne plus soumettre à certaines obligations les gens de Barîn émigrant de cette ville à Hama et (ordonnant) qu’ils pourraient habiter, si telle est leur volonté, Hama ou toute autre ville. Si quelqu’un leur crée des difficultés, en violation de cette ordonnance, qu’il soit maudit en même temps que son père jusqu’au Jour de la Résurrection ! Quant à celui qui les aidera à s’installer, s’ils le désirent, puisse le Très Haut l’assister dans ce monde et dans l’autre – Louanges à Dieu seul ! »

 

 

ca.902/1497. Décret inachevé 5 lignes dont 3 visibles (85x75) sur la colonne 1 du khazne (inscription n°15 sur plan, ill.1, 23, 31, 32).[23]

« [ A la date du xx] Muharram [90x] (149x), [fut promulgué le décret princier, auguste, de notre maître le grand émir], le seigneur, le maître, le chef, le gouverneur général, Sayf al-Dîn Qansûh al-Sharîfî al-Shamî, gouverneur général de la province royale de Hama (puisse Dieu glorifier ses victoires !), abolissant la corvée à laquelle était assujetti le pays d’al-Hûla, (c'est-à-dire) la corvée imposée au village de Jarnîya (?). »

 

 

903/1498. Décret 7 lignes (110x60, 125, 30) sur la colonne 5 du khazne (inscription n°16 sur plan, ill.1, 22, 25, 28).[24]

« A la date du 15 du mois de Rajab en l’année 903 (9.III.1498) furent promulgués les décrets princiers de l’émir Sayf al-Dîn Dawlât Bây al-Nâsirî, notre maître le roi des émirs, gouverneur général de la province royale de Hama, que Dieu puisse garder ! (puisse le Très Haut glorifier ses victoires !), ordonnant d’abolir la mesure illégale instituée au détriment des wakfs de Hama au profit de la Chancellerie de Hama, (savoir) : l’imposition d’une certaine somme d’argent aux immeubles constitués wakf. Maudits soient en même temps que son père les gouverneurs généraux qui ordonneraient à l’avenir de percevoir cette ordonnance des wakfs, si ce n’est en vertu des décrets royaux. »

 

 

903/1498. Décret 6 lignes (75x67) sur la colonne 6 du khazne (inscription n°17 sur plan, ill.1, 25, 29).[25]

« A la date du 20 Rajab 903 (14.III.1498), notre maître le roi des émirs, gouverneur général de la province de Hama, Dawlât Bây, a décrété que l’on ne prendrait plus du quartier d’al-Ja’âbira autre chose que neuf mulets (?). Maudit en même temps que son père quiconque renouvellera cette injustice et que la malédiction de Dieu, des anges et de tous les hommes pèse sur lui jusqu’au Jour de la Résurrection ! »

 

 

903/1498. Décret 6 lignes (90x55) sur le montant gauche de l’ouverture 5 à l’est de la cour (inscription n°18 sur plan, ill.1, 15, 19, 21). [26]

« A la date du 21 Ramadan, en l’année 903 (23.VII.1534), le grand émir, le hâjj Yakhshî-bak, gouverneur général de la province de Hama – puisse Dieu le glorifier ! – a décrété l’abolition de la coutume illégale instaurée par les soufis pour tracasser les cheykhs des quartiers. Maudit quiconque le fera, en se revêtant d’une robe d’honneur pour extorquer, au moyen d’elle, aux habitants des quartiers un seul dirhem ! Celui-là, qu’il soit maudit de Dieu, des anges, et de tous les hommes ! Ainsi soit-il. Cette décision a été provoquée par le page Yûsuf. »

 

 

904/1499. Décret 7 lignes (30x18, 82x82) sur le montant droit de l’ouverture 1 à l’est de la cour (inscription n°19 sur plan, ill.1, 10, 12, 13).[27]

« A la date du 13 Rajab, en l’année 904 (24.II.1499) il est revenu aux oreilles princières de Dawlât Bây al-Ashrafî, gouverneur général de la province de Hama – puisse Dieu le glorifier ! – que des gents dénués de scrupules rédigeaient des papiers pour exposer des choses qu’il n’est point licite d’entendre : des mensonges et des calomnies, cherchant par là à …. les cadis, et qu’il résultait de ce fait un préjudice pour les musulmans et les autres. Lorsque notre maître le roi des émirs en fut informé, il ordonna par décret qu’on lui (leur) coupât la main et la langue, et décréta que l’on graverait une pierre dans (la) grande mosquée. – Maudits en même temps que leur père les cadis et les mubâshir de Hama qui …… - Maudit en même temps que son père quiconque commettra encore ce crime ! »

 

 

904/1498. Décret 6 lignes (62x82) sur la colonne 8 du khazne (inscription n°20 sur plan, ill.1, 23, 30).[28]

« A la date du 4 mois Rabi'I de l'année 904 (20.X.1498) paraît la haute instruction que l'impôt de protection payé au grand maître des écuries par le village de Kazu soit attribué au diwan prospère. Un impôt annuel de quarante Makkûk d’orge est imposé au village cité et un impôt de protection annuel de dix Makkûk d’orge pèse sur le même village pour le grand maître des écuries. La haute instruction va (donc), pour cela prendre en provision pour le grand maître des écuries dix Makkûk d’orge en dédommagement de cela. Maudit, fils de maudit jusqu'au Jugement dernier celui qui le renouvelera ! » 

 

 

n.d. Décret illisible sur la colonne 8 du khazne (inscription n°21 sur plan, ill.1, 23, 30).[29]

Texte non disponible.

 

 

n.d. Décret illisible vers l’accès nord (inscription n°22 sur plan, ill.1).[30]

Texte non disponible.

 

 

 

Biblio complémentaire :

O’Kane (2009a), p.219-247

Montalbano (2012)

Kühn (2019), catalogue, p.1040-1048

 

 

 

 

 

Une image contenant diagramme, Plan, Dessin technique, carte

Le contenu généré par l’IA peut être incorrect.

 

 

Une image contenant bâtiment, plein air, ciel, tour

Le contenu généré par l’IA peut être incorrect.

 

 

Une image contenant plein air, ciel, bâtiment, arbre

Le contenu généré par l’IA peut être incorrect.

 

Une image contenant Mur de pierre, texte, pierre, calcaire

Le contenu généré par l’IA peut être incorrect.

 

 

 

 

1/ plan de la GM avec localisation des inscriptions

2/ vue de la GM depuis le nord

3/ le minaret sud-est

4/ l’inscription de construction datée 529/1134 sur la face est du minaret sud-est

5/ le médaillon inscrit daté 529/1134 sur la face sud du minaret sud-est

 

 

 

Une image contenant bâtiment, plein air, ciel, tour

Le contenu généré par l’IA peut être incorrect.

 

 

Une image contenant bâtiment, ciel, plein air, tour

Le contenu généré par l’IA peut être incorrect.

 

Une image contenant bâtiment, ciel, plein air, sol

Le contenu généré par l’IA peut être incorrect.

 

 

 

Une image contenant plein air, bâtiment, ciel, sol

Le contenu généré par l’IA peut être incorrect.

 

 

6/ le minaret et le portique nord depuis la cour

7/ vue du minaret nord depuis la cour

8/ la cour de la GM depuis l’accès du nord-ouest

9/ vue de la partie est de la cour avec les ouvertures 1, 3, 5

 

 

 

Une image contenant bâtiment, plein air, Mur de pierre, pierre

Le contenu généré par l’IA peut être incorrect.

 

 

Une image contenant bâtiment, mur, fenêtre, pierre

Le contenu généré par l’IA peut être incorrect.

 

 

 

 

Une image contenant bâtiment, art, Mur de pierre, mur

Le contenu généré par l’IA peut être incorrect.

 

 

Une image contenant texte, écriture manuscrite, art

Le contenu généré par l’IA peut être incorrect.

 

10/ l’ouverture 1 à l’est de la cour avec ses inscriptions

11/ le décret n°11 daté 894/1488 sur le linteau et le montant droit de l’ouverture 1

12/ les décrets n°11 et n°19 sur la montant droit de l’ouverture 1

13/ le décret n°19 daté 904/1499 sur le montant droit de l’ouverture 1

 

 

 

 

 

 

 

 

Une image contenant mur, Mur de pierre, Matériau composite, fer

Le contenu généré par l’IA peut être incorrect.

 

 

Une image contenant bâtiment, mur, Mur de pierre, propriété

Le contenu généré par l’IA peut être incorrect.

 

 

 

 

Une image contenant bâtiment, mur, plein air, Matériau composite

Le contenu généré par l’IA peut être incorrect.

 

14/ l’ouverture 3 à l’est de la cour avec le décret n°7 daté 836/1432

15/ l’ouverture 5 à l’est de la cour avec ses inscriptions

16/ le décret n°10 daté 891/1486 sur le linteau et le montant droit de l’ouverture 5

17/ les inscriptions n°10 et N°12 sur le montant droit de l’ouverture 5

 

 

 

Une image contenant Histoire antique, Histoire, Ruines, calcaire

Le contenu généré par l’IA peut être incorrect.

 

 

Une image contenant Mur de pierre, bâtiment, briquetage, matériau de construction

Le contenu généré par l’IA peut être incorrect.

 

 

Une image contenant Histoire antique, calcaire, pierre, art

Le contenu généré par l’IA peut être incorrect.

 

 

 

18/ le décret n°12 daté 896/1490 sur le montant droit de l’ouverture 5

19/ les inscriptions n°5 et n°18 sur le montant gauche de l’ouverture 5

20/ le décret n°5 daté 824/1421 sur le montant gauche de l’ouverture 5

21/ le décret n°18 daté 903/1498 sur le montant gauche de l’ouverture 5

 

 

 

Une image contenant colonne, bâtiment, plein air, Architecture de la Rome antique

Le contenu généré par l’IA peut être incorrect.

 

 

Une image contenant colonne, bâtiment, plein air, Histoire antique

Le contenu généré par l’IA peut être incorrect.

 

 

Une image contenant colonne, ciel, plein air, Histoire antique

Le contenu généré par l’IA peut être incorrect.

 

 

 

22/ vue du khazne avec ses inscriptions depuis le sud-est

23/ vue du khazne avec ses inscriptions depuis le nord-est

24/ vue du khazne avec ses inscriptions depuis l’ouest

25/ vue du khazne avec ses inscriptions depuis le sud

 

 

 

Une image contenant bâtiment, colonne, texte, plein air

Le contenu généré par l’IA peut être incorrect.

 

 

Une image contenant bâtiment, Histoire antique, Ruines, Histoire

Le contenu généré par l’IA peut être incorrect.

 

 

Une image contenant bâtiment, colonne, Histoire antique, plein air

Le contenu généré par l’IA peut être incorrect.

 

 

 

26/ le décret n°13 daté 901/1496 sur la colonne 2

27/ le décret n°14 daté 902/1497 sur la colonne 3

28/ le décret n°16 daté 903/1498 sur la colonne 5

29/ le décret n°17 daté 903/1498 sur la colonne 6

 

 

 

Une image contenant Histoire antique, plein air, Site historique, Ruines

Le contenu généré par l’IA peut être incorrect.

 

 

Une image contenant colonne, plein air, bâtiment, Histoire antique

Le contenu généré par l’IA peut être incorrect.

 

 

30/ les colonnes 8 et 7 avec l’emplacement des décrets n°20, n°21 et n°9

31/ les colonnes 1 et 2 depuis le nord avec l’emplacement des décrets n°15 et n°13

32/ le décret n°15 daté 902/1497 sur la colonne 1

 

 

 

Documents anciens

 

 

 

Menu précédent

 

 

 

 

 



[1] Cf. Creswell (1932) ; O’Kane (2009a), p.219-247.

[2] Texte, in RCEA 3073, cf. TEI, n°7768.

[3] Texte, in RCEA 3074, cf. TEI, n°7756.

[4] La branche Ayyûbide de Hama survivra à la conquête Mamluk jusqu’en 732/1332, cf. Bosworth (2004), p.71-72.

[5] Cf. O’Kane (2009a), p.228-231.

[6] Sur le minbar, cf. O’Kane (2009a), p.232-239 ; Kühn (2019), catalogue, p.1040-1048.

[7] Sur Zain al-Dîn Kitbugha, cf. Mayer (1933), p.143-144.

[8] On trouve les photos de K.A.C. Creswell sur le site : collection.vam.ac.uk et d’E. Herzfeld sur le site du Smithsonian Institute : si.edu montrant la mosquée au début du 20e siècle. Voir aussi une photo du site en 1988, in O’Kane (2009a), fig.9.1.

[9] Texte d’après RCEA 4778.

[10] Texte d’après RCEA 4839.

[11] Texte d’après RCEA 5136.

[12] D’après TEI, n°9291.

[13] Texte d’après Sauvaget (1933), n°20.

[14] D’après TEI, n°9293.

[15] Texte d’après Sauvaget (1933), n°17.

[16] Traduction d’après le texte de Berchem/Oppenheim (1913), n°29.

[17] Traduction d’après le texte de Berchem/Oppenheim (1913), n°27, cf. photos du décret, in TEI, n°10634.

[18] Texte d’après Sauvaget (1933), n°18.

[19] Texte d’après Sauvaget (1933), n°19.

[20] Texte d’après Hussiny (2025), p.20-65, n°4.

[21] Texte d’après Sauvaget (1933), n°21.

[22] Texte d’après Sauvaget (1933), n°22.

[23] Texte d’après Sauvaget (1933), n°23.

[24] Texte d’après Sauvaget (1933), n°25.

[25] Texte d’après Sauvaget (1933), n°24.

[26] Texte d’après Sauvaget (1933), n°27.

[27] Texte d’après Sauvaget (1933), n°26.

[28] Traduction d’après le texte de Berchem/Oppenheim (1913), n°28, cf. photos du décret, in TEI, n°12088.

[29] D’après Sauvaget (1933), p.3 en u sur plan.

[30] D’après Sauvaget (1933), p.3 en n sur plan.