Mosquée Sanjâr al-Jawlî (720/1320)

 

 

 

Localisation : accolée au côté nord-est du Tombeau des Patriarches.

 

 

 

Réf :

Meinecke (1992), 9C/80, 39/11

 

Jaussen (1925), n°1, 5, 6, 7

RCEA 5428, 5430, 5619

Mayer (1933), p.197 

Sharon (2007), p.106-107

Sharon (2013), n°6, 23, 24, 25, 26, 27, 28, 29, 30, 31, 33, 34, 57

TEI, n°3316, 3317, 3318, 4139, 33347, 43086, 43102, 43104, 43106, 43108, 43110, 43114, 43146

Tütünçü (2008), n°153, 163, 164, 165

 

 

 

Historique

 

L’espace restreint de la salle de prière du Haram autour des tombeaux d’Issac et Rebecca conduit à la construction d’une nouvelle mosquée sur la partie nord-est du Haram à l’emplacement d’un cimetière juif. Cette nouvelle mosquée est l’œuvre de Sajar al-Jawlî[1], le gouverneur de Gaza. Sanjar est aussi à l’origine de nombreux édifices à Gaza[2], des khân de Qaqûn[3], de Qaryat Kathîb/Khân al-Hathrura[4], du khân al-Ahmar à Bet She’an et d’un pont à arche (qanatîr) dans la forêt d’Arsûf.[5]

A l’origine un portique (P sur plan, ill.1) était déjà construit contre le mur sud-est du Haram, ce portique (riwaq) est une structure couverte entre cette partie sud-est du Haram et les installations de cuisines et boulangeries (simât)[6] servant à nourrir la population et les pélerins (21 sur plan, ill.1). Une porte (2 sur plan, ill.1) communiquait avec la salle de prière du Haram. Une inscription datée 621-624/1224-1227 (inscription n°6) confirme la construction de ce portique par le sultan Ayyûbide al-Mu’azzam ‘Isa (r.615/1218-624/1227).

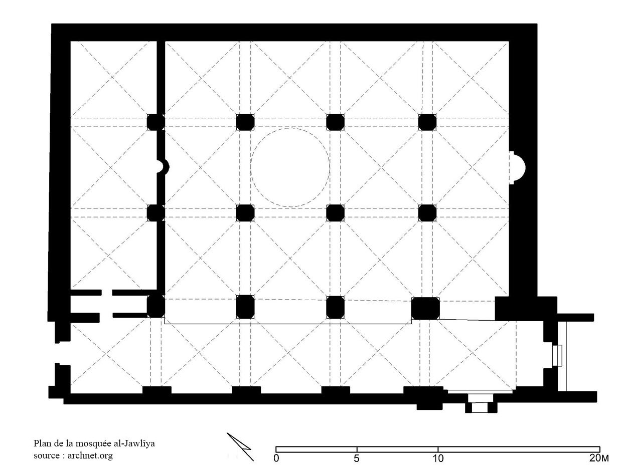
D’après un bandeau inscrit replacé sur les ouvertures du mur ouest de la mosquée (inscription n°25, ill.15-20), les travaux de construction de la mosquée débutent en rabi’II 718/juin 1318 et s’achèvent fin rabi’I 720/juin 1320 soit quatre mois avant l’arrestation de Sanjar en sha’ban 720/septembre 1320. On apprend que la mosquée est construite suite au creusement de la salle de prière dans la montagne, la rendant non visible de l’extérieur. Cette salle de prière comprend trois nefs couvertes de voûtes croisées reposant sur des piliers.

Une série d’inscriptions datées 720/1320 conservées sur les murs de la mosquée ou entreposées dans une salle du Haram, permet d’établir la chronologie de cette construction qui s’étale sur 2 ans :

La longue inscription courant sous le toit du corridor (inscription n°23, ill.9-14) cite Sanjar comme commanditaire des travaux sur ses fonds propres.

L’inscription sur la porte séparant le portique (riwaq) P du corridor (dihliz) Q (inscription n°24) mentionne la construction du portique P qui relie les cuisines et boulangeries au Haram et servait à la distribution de nourriture. Cette inscription était à l’origine placée avec l’inscription datée 621-624/1224-1227 (inscription n°6) qui célèbre la construction de ce portique, l’activité de Sanjar sur ce secteur ne peut donc être qu’une rénovation.

L’inscription en plusieurs parties, exposée sur l’estrade au nord de la salle de prière (inscription n°26, ill.21-27), concerne l’achèvement des ouvertures grillagées (shababîk) et des portes de la façade ouest de la mosquée.

D’autres inscriptions mentionnent des projets de constructions (inscription n°27), des invocations (inscription n°28), des textes du Coran (inscriptions n°29, 30, ill.4-8, 31)[7], du Hadîth (inscription n°33) ou des professions de foi (inscription n°34, ill.11).

Une dernière inscription datée 867/1462 (inscription n°57) mentionne la restauration du revêtement de marbre de la mosquée sous le sultan al-Zâhir Khushqadam (r.19 ramadan 865/28.VI.1461 – 10 rabi’I 872/9.X.1467) supervisée par l’intendant des deux Haram (nâzir al-haramayn al-sharifayn) Nâsir al-Dîn Muhammad.

 

 

 

Epigraphie

 

­621-624/1224-1227. Texte de construction 7 lignes (50x32) anciennement sur la porte, avec inscription n°24, séparant le portique P (riwaq) du corridor Q (dihliz), disparue (inscription n°6).[8]

« Basmallâh. This portico is what has been constructed in the days of our lord the sultan al-Malik al-Mu’azzam Sharaf al-Dîn ‘Isa, the son of our lord the sultan al-Malik al-‘Adîl Sayf al-Dîn Abû Bakr ibn Ayyûb may Allâh sanctify his soul, under the supervision of the poor servant (of Allâh) Sa’d al-Dîn Mas’ûd ibn ‘Umar ibn As’ad Bak in the month muharram (in the year) 621 (janvier-février 1224) ».

 

 

720/1320. Texte de construction, plusieurs parties formant un bandeau incomplet (510x32) courant sous le plafond du corridor séparant le mur est du Haram du mur ouest de la mosquée (inscription n°23, n°9-15).[9]

« Established in the days of our lord the sultan al-Malîk al-Nâsir, the defender of the world and the religion Muhammad – may Allâh perpetuate his rule – the son of our lord the martyr sultan al-Malîk al-Mansûr Qalawûn, the mamluk of al-Sâlih (Ayyûb), may Allâh shelter him with His grace. (The work was) supervised by the slave who is in the need of Allâh, the Exalted, Sanjâr ibn ‘Abdallâh the mamluk of al-Nâsir Muhammad. (He paid for it) from his own funds, may Allâh pardon him. He spent on it nothing from the funds of the Haram. It was written on rabi’II, the year 720 of the prophetic hijrah (11.V.1320) ».

 

 

720/1320. Texte de construction 4 lignes (50x40) anciennement sur la porte, avec l’inscription n°6, séparant la portique P du corridor Q (inscription n°24).[10]

« Basmallâh. Has built this blessed portico for the purpose of the distribution of food in it, the needy of Allâh, the Exalted, Sanjar ibn ‘Abdallâh the mamluk of al-Nâsir (Muhammad) using his own funds, spending on it nothing from the funds of the sanctuary (endowments) wishing (to attain) the satisfaction of Allâh, the Exalted. It was written in jumada I, the year 720 (début juin 1320) ».

 

 

720/1320. Texte de construction incomplet reconstitué d’après 6 fragments (146x33, 143x33, 89x33, 81x31, 148x33, 131x33), anciennement entreposé au Haram, replacé sur la porte et les fenêtres du mur ouest face au corridor qui sépare la mosquée du sanctuaire (inscription n°25, ill.15-20).[11]

« Basmallâh. Coran XXXIII, 56. Has established this (blessed mosque in the days of our lord the sultan al-Malîk al-Nâsir, the defender of the world and the religion) the suppressor of the innovators, the reviver of justice with justice in the world, the pilgrim to the two Noble Sanctuaries, (Muhammad, may Allâh perpetuate his rule, the son of our lord the) martyred (sultan) al-Malîk al-Mansûr the sword of the world and the religion Abû Fath (Qalawûn the mamluk of al-Malîk al-Sâlih, may Allâh shelter him with His mercy and forgiveness (Sanjâr ibn ‘Abdallâh the mamluk of al-Malîk al-Nâsir. The beginning of its building was on) rabi’II 718 (début juin 1318) and it was finished at the end of rabi’II, 720 (8.VI.1320). The whole (building) was cut into a mountain from the windows to its hind part and up to its ceiling ».

 

 

720/1320. Texte de construction, reconstitués d’après 4 fragments (136x33, 113x33, 140x33, 66x33), anciennement sur la porte et les ouvertures du mur ouest face au corridor qui sépare la mosquée du sanctuaire, actuellement exposé sur l’estrade au nord de la salle de prière (inscription n°26, ill.21-27).[12]

« The door and the windows were made in the days of our lord the sultan al-Malîk al-Nâsir, the defender of the world and religion, Muhammad, may Allâh perpetuate his rule, the son of our lord, the martyred sultan al-Malîk al-Mansûr Qalawûn the mamluk of al-Malîk al-Sâlih, may Allâh shelter him with His grace, under the supervision of the slave who is in the need of Allâh, the Exalted, Sanjâr ibn ‘Abdallâh the mamluk of al-Malîk al-Nâsir, using his own funds , may Allâh have mercy on him. Nothing was spent on them from the funds of the Haram. It was written in rabi’II, 720 (début mai 1320) afterthe prophetic hijrah ».

 

 

720/1320. Texte fragmentaire, 2 blocs (38x34 et 53x34) conservé dans une salle au Haram (inscription n°27).[13]

« Our lord the sultan al-Malîk al-Nâsir the righteous, the warrior in the Holy War, (the defender of the border posts, the protector of the frontiers, the vested with authority, the triumphant, the victorious, the supporter of the world and the religion, Abû al-Fath Muhammad the son of the martyr sultan al-Malîk al-Mansûr Sayf al-Dîn Qalawûn al-Sâlihî ».

 

 

720/1320. Texte fragmentaire, 2 blocs (105x34 et 120x34) conservé au Haram (inscription n°28).[14]

« May Allâh cover him with His grace and let him taste the sweetness of his fogiveness ».

« Coran II, 20. And He is able to respond (to invocations). Wishing to please Allâh, the Exalted, and asking for his forgiveness and his reward ».

 

 

mi 8e/14e. Divers fragments de textes du Coran (hauteur standard 33cm), conservés au Haram, (inscription n°29).[15]

« Coran I, 1-5 ; II, 124-126, 132, 286 ; XXIX, 45 ; XXXIII, 22, 24, 44, 48 ; XLIX, 21 ; XVII, 78, 80 ; XVI, 120-121 ; IX, 18 ; XXIV, 36-38 ; XXXVII, 93-94, 95-96 ; XXVI, 74-76, 73-74 ; IX, 18 ; XXIV, 36 ; III, 174 ; IX, 21 ; XXXV, 29, 31, 34 ; XXXVI, 8, 83 ; X, 10 ; III, 68, 171-174 ; IX, 21 ; III, 194-195 ».

 

 

720/1320. Bandeau (hauteur standard 40cm) vers le plafond du mur est du corridor (dihliz) séparant la mosquée du Haram, replacés dans le désordre (inscription n°30, ill.4-8).[16]

« Coran III, 195 ; II, 126-128 ; II, 133 ; XXXIII, 38 ; II, 128-131 ; XXIV, 36-37 ; II, 132 ; III, 195 ; IV, 125 ; II, 132-133 ; III, 65-66 ; X, 9 ; III, 66 ; X, 9-10 ; III, 66-68 ; XXXIII 23-24 ; IV, 125 ; IX, 114 ; XIV, 35-37 ; XXXIII, 38-39 ; XLVIII, 4 ».

 

 

720/1320. Fragments de textes du Coran (445x33) à l’extrémité sud de la salle de prière montés sur des colonnes (inscription n°31).[17]

« Coran XLIX, 21-24 ; II, 255 ; XIV, 38-41 ; XVI, 123-124 ; XXVI, 69-71, 76-77, 78-81, 85-87 ; XXVI, 87-89 ; XXXVII, 83-84, 91-93, 96-98 ; III, 195 ; II, 285-286 ; XXV, 10 ».

 

 

720/1320. Fragments de textes du hadîth (27x33 et 35x33), conservés au Haram (inscription n°33).[18]

« Whoever builds for Allâh a mosque even the size of a hollow dug by a sand gouse, Allâh will build for him a house in paradise ».

 

 

720/1320. Shahada dans le corridor (dihliz) sous l’arche menant au Haram (inscription n°34, ill.11).[19]

« Shahada ».

 

 

867/1462. Texte de construction en 4 parties, 5 lignes (71x53) conservé au Haram (inscription n°57).[20]

« A secret was revealed superior to the watchers and manifested  itself. I praise Him for erecting houses where His Name is mentionned continuuosly and I thank Him for setting the tables of the simât of His Friend forever. This blessed mosque has been restored in the days of our lord, the sultan al-Malîk al-Zâhir Abû Sa’îd Khushqadam, may his victory be glorified, under the supervision of His High Excellency Nâsir al-Dîn Muhammad, son of the magnanimous al-Zâhirî (Mamlûk of al-Malik al-Zâhir Khushqadam) al-Shafi’î, the inspector of the twon Noble Sanctuary, amy Allâh spread His shadows (on him), at the opening of the year 867 (26.IX.1462). The work of Muhammad ibn al-‘Izz ».

 

 

 

Biblio complémentaire

Busse (1998), p.71-93

MWNF (2004), p.204-205

Sharon (2013), p.105-135

 

 

 

 

 

Une image contenant texte, diagramme, croquis, motif

Description générée automatiquement

 

Une image contenant croquis, motif

Le contenu généré par l’IA peut être incorrect.

 

 

 

1/ plan du site avec sa nomenclature

2/ plan et localisation des inscriptions

3/ plan de la mosquée

 

 

 

Une image contenant bâtiment, porte, plafond, sol

Description générée automatiquement

 

Une image contenant mur, porte, plafond, intérieur

Description générée automatiquement

 

Une image contenant texte, chambre funéraire, bâtiment, architecture

Description générée automatiquement

 

Une image contenant Moulures, intérieur, mur, porte

Description générée automatiquement

 

Une image contenant cheminée, Moulures, mur, architecture

Description générée automatiquement

 

4/ vue du corridor (dihliz) depuis le nord avec l’inscription n°30 datée 720/1320

5/ vue du début de l’inscription n°30 datée 720/1320

6/ la partie centrale de l’inscription n°30

7/ la partie centrale de l’inscription n°30

8/ la derniere partie de l’inscription n°30

 

 

 

Une image contenant bâtiment, art, mur, église

Description générée automatiquement

 

Une image contenant bâtiment, porte, architecture, plein air

Description générée automatiquement

 

Une image contenant texte, bâtiment, art, ciment

Description générée automatiquement

 

Une image contenant bâtiment, fenêtre, homme, habits

Description générée automatiquement

 

 

9/ vue de l’accès du corridor (dihliz) au Haram

10/ linscription n°23 datée 720/1320

11/ l’inscription n°24 non datée (en noir)

12/ l’accès séparant le corridor (dihliz) du portique (riwaq) avec son inscription

13/ la partie droite de l’inscription n°23 datée 720/1320

 

 

 

Une image contenant bâtiment, roue, mur, pierre

Description générée automatiquement

 

Une image contenant fenêtre, architecture, bâtiment, Éclairage naturel

Description générée automatiquement

 

Une image contenant mur, Plafonnier, décoration d’intérieur, Éclairage naturel

Description générée automatiquement

 

Une image contenant bâtiment, propriété, architecture, plein air

Description générée automatiquement

 

 

14/ la partie gauche de l’inscription N°23

15/ le début de l’inscription n°25 datée 720/1320 sur les ouvertures de la mosquée

16/ l’extrémité de l’inscription n°25

17/ détail du bloc 1 de l’inscription n°25

18/ détail du bloc 2 de l’inscription n°25

 

 

 

Une image contenant mur, intérieur, art

Description générée automatiquement

 

Une image contenant cheminée, mur, bâtiment, Matériau composite

Description générée automatiquement

 

Une image contenant pierre, intérieur, miroir, mur

Description générée automatiquement

 

Une image contenant mur, funérailles, Sculpture sur pierre, calcaire

Description générée automatiquement

 

 

19/ détail du bloc 3 de l’inscription n°25

20/ détail du bloc 4 de l’inscription n°25

21/ l’inscription n°26 datée 720/1320 déposée au sud de la salle de prière

22/ détail du bloc 1 de l’inscription n°26

23/ détail du bloc 2 de l’inscription n°26

 

 

 

Une image contenant mur, funérailles, statue, Sculpture

Description générée automatiquement

 

Une image contenant église, mur, bougie, intérieur

Description générée automatiquement

 

Une image contenant mur, église, intérieur, pierre

Description générée automatiquement

 

Une image contenant mur, église, intérieur, pierre

Description générée automatiquement

 

24/ détail du bloc 3 de l’inscription n°26

25/ le verso de l’inscription n°26

26/ détail du verso du bloc 1 de l’inscription n°26

27/ détail du verso du bloc 2 de l’inscription n°26

 

 

 

Documents anciens

 

 

 

 

 

Une image contenant croquis, diagramme, dessin, ligne

Description générée automatiquement

 

Plan de la mosquée d’après Vincent et Mackay

Source : Vincent/Mackay/Abel (1923)

 

 

 

 

Menu précédent

 

 

 



[1] Sanjar ibn ‘Abdallâh ‘Alam al-Dîn Abû Sa’îd al-Jawlî (653/1255-745/1345), il est nommé gouverneur de la province (niyaba) de Gaza en jumada I 711/septembre 1311 par le sultan al-Nâsir Muhammad, qui lui rajoute la plaine côtière incluant Qaqûn, Lod, et Ramla et les régions montagneuses qui inclues Jérusalem, Hébron et Naplouse, d’où son titre de ‘gouverneur des districts côtiers et montagneux et de Gaza’ dans les inscriptions à Gaza. Il est arrêté en sha’ban 720/septembre 1320 et emprisonné jusqu’en 728/1328. Son arrestation intervient suite à un conflit avec le na’îb al-sultana Sayf al-Dîn Tankiz au sujet d’un bien immobilier à Damas. A sa libération il continue de servir le sultan qui l’a envoyé en prison. A la mort d’al-Nâsir en 741/1340 il servira le nouveau sultan al-Sâlih Isma’îl jusqu’à sa mort au Caire.

Sur Sanjâr al-Jawlî, cf. Mayer (1933), p.197-199, Sharon (2013), p.105-107.

[2] Sur le patronage de Sanjar al-Jawlî à Gaza, cf. Sadeq (1991), Meinekce (1992), Sharon (2009).

[3] Cf. Meinecke (1992), 9C/114 ; Petersen (2001), n°113 ; Cytryn-Silvermann (2010), p.135-136.

[4] Cf. Sharon (2004), p.102-103 ; Cytryn-Silvermann (2010), 88-95 ; Corpus Christian I (2012), p.311-312.

[5] Cf. Meinecke (1992), 9C/108.

[6][6] Sur ces installations, cf. Sharon (2013), p.189-190. Voir aussi, Eroglu-Memis (2022), p.68-108 qui étudie le fonctionnement du simât sous les Ottomans.

[7] Certaines de ces inscriptions semblaient être destinées à une madrasa qui se situeait sur le coté ouest du Haram à l’emplacement de l’ancienne citadelle, cf. Sharon (2013), p.117-121

[8] Texte d’après Sharon (2013), n°6.

[9] Texte d’après Sharon (2013), n°23.

[10] Texte d’après Sharon (2013), n°24.

[11] Texte d’après Sharon (2013), n°25.

[12] Texte d’après Sharon (2013), n°26.

[13] Texte d’après Sharon (2013), n°27.

[14] Texte d’après Sharon (2013), n°28.

[15] Texte d’après Sharon (2013), n°29.

[16] Texte d’après Sharon (2013), n°30.

[17] Texte d’après Sharon (2013), n°31.

[18] Texte d’après Sharon (2013), n°33.

[19] Texte d’après Sharon (2013), n°34.

[20] Texte d’après Sharon (2013), n°57.