Ribat Qarâsunqûr/Mosquée al-Maqamât (709/1309)

 

 

 

Localisation : au sud de Bâb al-Maqâm, dans le cimetière al-Maqamât (H12.658).

Visite en : 2009, 2010.

 

 

 

Réf :

Gaube (1984), n°658

Herzfeld (1955), p.321-324

Meinecke (1992) 9B/42

 

Herzfeld (1955), n°170, 171

Mayer (1933), p.184

RCEA 5171, 5251, 770025

 

 

 

Historique

 

Construit à l’origine comme le tombeau du gouverneur Muhammad ibn Qarâsunqûr, mort le 29 jumada II 709/4.XII.1309.[1] Celui-ci a servi sous plusieurs sultans dont al-Mansûr Qalâ’ûn (r.27 rajab 678/3.XII.1279 – 6 dhu’l-qa’da 689/10.XI.1290) et al-Nâsir Muhammad (2e règne du 6 jumada I 698/9.II.1299 – 22 shawwal 708/4.IV.1309).

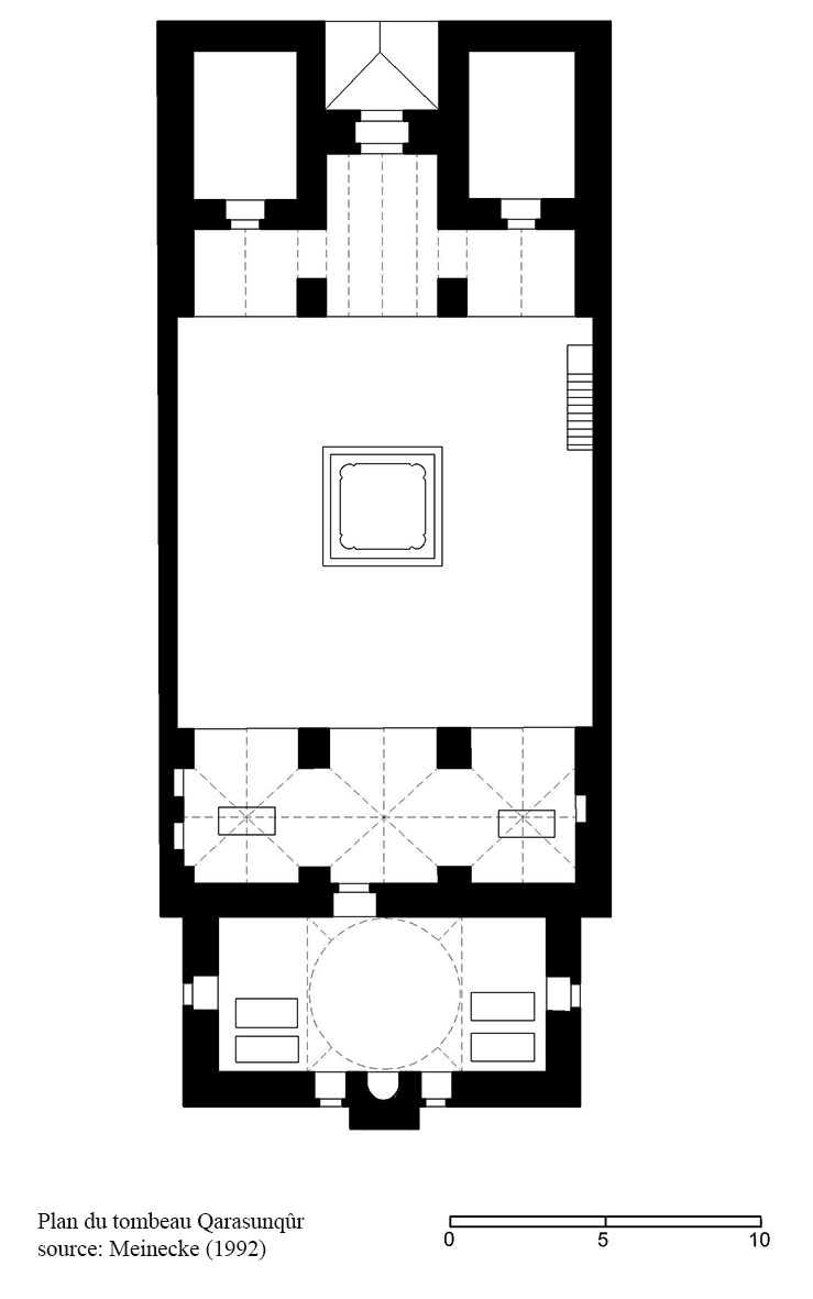
D’après une inscription sur la fontaine voisine l’édifice est achevé depuis muharram 703/15.VIII-13.IX.1303 (ill.10), il consiste en deux blocs : une salle de prière au sud avec coupole et un porche flanqué de salles avec un portique au nord, le tout séparé par une cour à bassin (ill.1).

Une tombe à l’intérieur de la mosquée porte une épitaphe datée 770/1369.

 

 

 

Epigraphie

 

703/1303. Dalle de marbre sur le qastal 3 lignes entre deux blasons (ill.10).[2]

 « xxxx La fondation de cette fontaine bénie a été ordonnée par le maître, le grand émir, le champion de la foi, le combattant, humble devant son Maître dispensateur de grâces, très avide de l’indulgence et de la satisfaction de Dieu, Shams al-dunya wa’l-dîn Qarâsunqûr le porte raquettes d’(al-Malik) al-Mansûr et d’(al-Malik) al-Nâsir, lieutenant général du noble sultanat à Alep la bien gardée, que Dieu le récompense, double pour lui Ses bienfaits et fasse une réserve de ses pieuses œuvres permanentes ! écrit en al-muharram de l’année 703 de l’hégire du Prophète (août-septembre 1303) »

 

 

709/1309. Texte funéraire à l’intérieur du ribat 3 lignes.[3]

 « Ceci est le mausolée de l’esclave avide de la miséricorde et de la satisfaction de son Seigneur, l’émir Nâsir al-Dîn Muhammad, fils de l’émir Shams al-Dîn Qarâsunqûr, le porte raquettes d’(al-Malik) al-Mansûr, décédé à l’aurore de la nuit du (mercredi au) jeudi 29 jumada II de l’année 709 (7.XII.1309), que Dieu lui pardonne ainsi qu’à ses père et mère ! »

 

 

770/1369. Epitaphe 4 lignes sur un tombeau.[4]

 « Ceci est la tombe de Sa Grandeur défunte Sayf al-Dîn Qushtamur al-Mansûrî, notre maître roi des émirs à Alep la bien gardée, décédé à la miséricorde de Dieu le Très-Haut le vendredi 17 dhu’l-hijja sacré de l’année 770 (23.VII.1369) – que Dieu ait pitié de lui ! »

 

 

 

Biblio complémentaire

 

 

 

 

 

 

Une image contenant bâtiment, extérieur, pierre, vieux

Description générée automatiquement

 

Une image contenant bâtiment, extérieur, brique, pierre

Description générée automatiquement

 

Une image contenant bâtiment, étape, escalier, pierre

Description générée automatiquement

 

 

 

 

1/ plan du ribat

2/ vue du ribat depuis l’est

3/ portail d’accès nord

4/ partie haute du portail

5/ plan de la voûte du portail

 

 

 

Une image contenant bâtiment, extérieur, terrain, pierre

Description générée automatiquement

 

 

Une image contenant bâtiment, extérieur, voûte, pierre

Description générée automatiquement

 

 

 

Une image contenant extérieur, bâtiment, ciel, pierre

Description générée automatiquement

 

Une image contenant bâtiment, pierre, matériau de construction, brique

Description générée automatiquement

 

 

Une image contenant pierre

Description générée automatiquement

 

 

6/ vue de la salle de prière

7/ vue du portique nord

8/ vue du minaret sur le portique nord

9/ l’inscription déposée dans la cour

10/ l’inscription datée 703/1303 sur le mur de la façade nord

 

 

 

 

Documents anciens

 

 

 

 

 

Vue de l’édifice d’après K.A.C Creswell

Source : collections.vam.ac.uk

 

 

 

 

Menu précédent

 

 

 



[1] Sur Qarâsunqûr, cf. Mayer (1933), p.183-184.

[2] Texte d’après RCEA 5171.

[3] Texte d’après RCEA 5251.

[4] Texte d’après RCEA 770025.