Madrasa al-Sharafîya (631-640/1233-1242)

 

 

 

Localisation : à l’angle nord-est de la Grande Mosquée donnant sur la place (H8.138).

Visite en : 2006.

 

 

 

Réf :

Allen (2003), chap.8

Eddé (1999), n°58

Gaube (1984), n°138

Herzfeld (1995), p.312-315

Korn (2004), n°29, 95

Sauvaget (1931), n°33

 

Herzfeld (1955), n°166

RCEA 4209

 

 

 

Historique

 

D’après ibn al-‘Ajamî, la salle de prière de la madrasa al-Sharafîya représente les vestiges d’une mosquée (fondée avant 601/1205), qui a ensuite été agrandie en madrasa dans une deuxième phase. Le mihrâb appartient probablement à la même phase de construction.

Le shaykh et imam Sharaf al-Dîn ‘Abd al-Rahman ibn ‘Abd al-Rahîm ibn al-‘Ajamî a fondé la madrasa shafi’ite et a entamé les travaux, ceux-ci sont inachevés à la mort du commanditaire en 658/1260. Seules certaines parties du mobilier manquaient, car une inscription, située sur une arcade au-dessus de la fontaine de la cour et datée 640/1242, indique l’achèvement des travaux du bâtiment. Une information que Sharaf al-Dîn ‘Abd al-Rahman ibn al-‘Ajami a hérité de son frère Abû Bakr Ahmad (m.631/1233) permet de réduire la période de construction à environ 631-640/1233-1242. Les vestiges conservés et ceux enregistrés par K.A.C. Creswell peuvent être complétés par la description détaillée du bâtiment faite par Sibt ibn al-Ajamî.

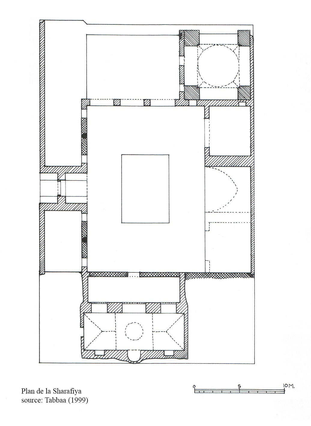
La salle de prière existante a été incluse dans l’aile sud du complexe. Dans l’aile est, un iwan, aéré par des puits de ventilation (bâdhanj), plusieurs salles et probablement aussi la bibliothèque richement meublée, la "grotte" (al-maghara) et une salle des professeurs à l’étage. Le turba, surmonté d’une coupole, occupait l’angle nord-est du bâtiment. De l’aile nord attenante, seule une triple arcade est documentée. Un grand bassin était aménagé dans la cour, un système hydraulique approvisionnait la madrasa en eau et un vaste réseau d’égouts (probablement plus ancien) drainait les latrines qui se trouvaient au nord du complexe. Du côté ouest de la cour, il y avait aussi des arcades qui couvraient les trois étages. Le centre de l’aile ouest était occupé par le portail. Ce portail côté rue a été défiguré par les modifications ultérieures. Un médaillon dans la partie supérieure de la façade porte la signature du constructeur Abû’l-Thana ibn Yâqut. Apparemment, il y avait une plate-forme au-dessus de la porte d'où les gens étaient appelés à prier.

Reconstruite dans les années 1920, il ne reste aujourd’hui que le portail sur rue, la salle de prière et une partie de l’aile ouest (voir plus bas, les photos de Creswell).

 

 

 

Epigraphie

 

640/1242. Acte de fondation sur un arc en fer.[1]

« Cette arche a été constituée waqf par ‘Abd al-Rahman, fils de ‘Abd al-Rahîm, fils d’al-‘Ajamî, en faveur des intérêts du puits, dans le mois de rabi’I de l’année 640 (septembre 1242) ».

 

 

 

Biblio complémentaire :

 

 

 

 

 

 

 

Une image contenant bâtiment, extérieur, voûte, pierre

Description générée automatiquement

 

 

 

 

1/ plan de la madrasa

2/ vue de la façade sur rue

3/ décor du portail

 

 

 

 

 

Documents anciens

 

 

 

 

Une image contenant texte, tube, vieux, voûte

Description générée automatiquement

 

Une image contenant texte, intérieur, blanc, vieux

Description générée automatiquement

 

Une image contenant texte, vieux

Description générée automatiquement

 

 

 

Portail d’accès côté intérieur

Source : collections.vam.ac.uk

Portail d’accès côté rue

Source : collections.vam.ac.uk

Vue de la cour côté est

Source : collections.vam.ac.uk

Vue de la façade de la salle de prière

Source : collections.vam.ac.uk

 

 

 

Menu précédent

 

 

 

 

 



[1] Texte d’après RCEA 4209.