Citadelle d’Alep/Qal’at Halab (n.d.)

 

 

 

Localisation : un tell au centre de la vieille ville (I8.343-350).

Visite en : 2002, 2006, 2008, 2009, 2010.

 

 

 

Réf :

Gaube (1984), n°343-350, p.168-171

Herzfeld (1955), p.77-110, 119-132, 134-139

Korn (2004), n°1, 6, 7, 11, 17, 19, 19A, 46, 47, 52, 53, 54, 75, 81, 84, 93, 122, 125,

Meinecke (1992), 8/14, 8/15, 19B/51, 22/9, 22/33, 22/53, 25A/14, 26A/15, 26B/5, 26B/6, 26B/32, 29/26, 33/38, 35/79, 42/38, 42/39, 47/28, 47/70

 

Gaube (1978), n°105, 106, 107, 108, 110

Gonnella/Korn (2004), p.269-283

Gonnella/Kohlmeyer (2005), p.44, 54

Herzfeld (1955), n°40, 41, 42, 43, 44, 45, 46, 47, 48, 49, 50, 51, 52, 53, 54, 55, 66, 69, 72, 74, 233, 238, 264, 265

RCEA 4957, 4958, 765028, 769005, 786006, 771009

Sauvaget (1933), n°31

Sobernheim (1926), p.161-210

 

 

 

Historique

 

Périodes antérieures.

Des fouilles en 1996 ont permis la redécouverte du temple du dieu araméen de l’orage, Hadad (ill.99). Ce temple contenait des orthostates et des inscriptions datées entre 1100-900 BC.[1]

Durant la période hellénistique (301-281 BC) la ville d’Alep/Béroia se dote d’une acropole fortifiée peut-être le point de départ de la future citadelle. On retrouve des vestiges de cette période dans l’actuelle citadelle.

En 64 BC, Pompée dépose le dernier souverain Séleucide et créé la province romaine de Syrie. La citadelle n’a livré que très peu de vestiges de la période romaine. Après la séparation de l’Empire romain en 395, la Syrie passe sous domination Byzantine. La citadelle semble bien fortifiée, contrairement à la ville. Les seuls vestiges byzantins attestés à la citadelle sont deux églises fondées durant cette période. Elles sont recouvertes par l’actuelle Grande Mosquée au nord et par le Maqâm Inférieur (Ibrahîm).

La conquête arabe de 636 fait d’Alep une cité à la frontière nord du nouvel empire (thughûr/awasîm).[2] En 944 la ville devient capitale de la dynastie des Hamdanides (333/945-394/1004) et entame une renaissance politique et culturelle. Mais en 962 l’empereur byzantin Nicéphore Phocas attaque la ville, le Hamdanide Sa’d al-Dawla se refugie alors à la citadelle. Par la suite, la ville connaît une période de troubles après cette attaque et les différents raids Bédouins. Après les Hamdanides, les Fatimides (394/1004-414/1023), les Mirdassides (414/1023-472/1079) puis les ‘Uqailides (468/1079-479/1086) se succèdent à la tête de la ville.[3] La plus ancienne inscription arabe retrouvée à la citadelle date de 465/1073[4], sous les Mirdassides qui avaient construits des palais et convertis les deux églises de la citadelle en mosquées (la Grande Mosquée et le Mâqam Inférieur ou Mâqam Ibrahîm). Une autre inscription datée 480/1087[5] mentionne une phase de travaux.

En 1100 et 1103 les Croisés mènent des attaques sur la ville. Sous les sultans Zangides ‘Imâd al-Dîn Zangî (r.521/1127-541/1146) et Nûr al-Dîn (r.541/1146-569/1173) les Croisés sont contenus et la ville n’est pas prise. Durant cette période, de nombreux Croisés seront faits prisonniers et enfermés à la citadelle (dont Jocelyn II, Renaud de Châtillon, Beaudoin II).

Après avoir réunis Alep et Damas au sein d’un même empire, Nûr al-Dîn fait faire d’importants travaux à la citadelle : il fait refortifier l’enceinte (ill.31-34)[6], fait construire une rampe d’accès, un « Palais Doré », un hippodrôme et fait restaurer la Grande Mosquée[7] et le Maqâm Inférieur (Maqâm Ibrahîm), ce dernier est équipé d’un mihrâb en bois et plusieurs inscriptions documentent ses travaux (ill.152).[8]

A la mort de Salâh al-Dîn en 589/1193, Alep revient à son fils al-Malik al-Zâhir Ghazî qui va repenser entièrement la citadelle et lui donner toute sa grandeur.

 

Période Ayyûbide.

Travaux du sultan al-Zâhir Ghazî (r.579/1183-613/1216).

Des travaux sur le bloc d’accès de la citadelle sont attestés pour la première fois en 588/1192, attribués à al-Zâhir Ghazî, pas encore sultan. Ces travaux d’agrandissement se poursuivent à partir de 597/1200. Une inscription datée 595/1193 (inscription n°2) mentionne le sultan comme commanditaire d’un projet non précisé ; peut-être un entrepôt (makhazîn) et une citerne. Une inscription sur un linteau situé à l’ouest de la Citadelle dans la zone de fouilles mentionne Salâh al-Dîn comme dirigeant ainsi qu’al-Zâhir Ghazî. Cette inscription n’est pas datée et ne mentionne pas le projet de construction (inscription n°1, ill.98).

En 600/1203, l’architecte Thabît ibn Shaqwaiq est tué dans un accident sur le chantier. Le bastion (bashura) devant le fossé est démoli, ce fossé est élargi, approfondi, muré et rempli d’eau. Le sultan al-‘Adîl (règne quelques temps avant al-Zâhir Ghazî entre 579/1183-582/1186) avait déjà prévu une chaussée en pente sur le côté sud-est de la citadelle mais son exécution n’a lieu qu’au cours des travaux de construction entamés par al-Zâhir Ghazî. Les flancs de la citadelle sont travaillés afin d’obtenir une pente plus raide et le tout est pavé de pierres de couleur claire (ill.39-41). Deux petites portes (Bâb al-Sirr et Bâb al-Jabal) sont aménagées dans le mur d’enceinte de la citadelle, un corridor descendait au pied de la citadelle du côté nord (ill.24) et du côté sud (ill.12) ; ces couloirs ou poternes ont été préservés. L’élément le plus important dans le renforcement de la citadelle est le bloc d’accès qui est construit à l’ouest de l’ancienne porte sur le flanc de la colline face à la ville (ill.6-8, 41-43) : une rampe reposant sur huit arches (ill.47) mène d’une tour porte ou tête de pont (plus tardive) jusqu’à la porte principale qui a conservée sa forme d’origine malgré des ajouts ultérieurs (ill.52-58). La rampe se termine entre deux massives tours rectangulaires (la grande salle reposant sur ces tours est plus tardive). Le portail d’entrée est situé sur le flanc ouest de la tour orientale. L’arc au dessus de cet accès est orné d’un relief montrant deux dragons bicéphales avec des corps de serpent noués ensemble identifiant cette porte comme la Porte des Serpents (ill.64).

À l’intérieur du bloc d’accès, le corridor (dargah) en chicane, réhaussé comme une rampe (ill.68, 69), passe deux autres portes de fer : au-dessus de la première, on trouve un relief avec deux lions opposés dans le mur (ill.70). La deuxième porte est flanquée de deux protomes de lion, au-dessus de cette dernière, il y a une inscription de construction qui nomme al-Zâhir Ghazî en tant que commanditaire et l’émir Badr al-Dîn Aidamur al-Zahirî en tant que surveillant des travaux, avec la date 606/1209 (inscription n°3, ill.71). Des fragments d’inscriptions sont conservés sur le tympan de la porte extérieure aux côtés de l’inscription plus tardive de l’émir mamluk Qarasunqur (fin 7e/13e siècle). D’autres courtes inscriptions portant le nom d’al-Ghazî sont attachées aux vantaux de porte cloutés de fer, elles contiennent la date de 606/1209 (inscription n°4). Les vantaux de la tête de pont contiennent la date de 608/1211 (inscription n°7, plus en place). Pour Bâb al-Jabal plus à l’est sur la tour T04, les sources écrites indiquent 611/1214 comme année d’achèvement.

A la place du « Palais Doré » de Nûr al-Dîn, al-Zâhir Ghazî fait construire un nouveau palais portant le nom de Dâr al-‘Izz (Palais d’Honneur). Des salles de séjour, des bains, des jardins et des annexes sont construits. La description du palais d’al-Zâhir correspondrait aux édifices au nord-est du bloc d’accès découvert lors des fouilles. Sur le côté est de l’allée principale on trouve un portail en ablaq avec une façade ornée de motifs géométriques ; celui du Palais dit Ayyûbide (ill.155-159). Un corridor mène depuis le vestibule à la cour centrale du palais (qa’a ‘uzma), au centre de laquelle se trouve un bassin (anciennement avec une fontaine). Un grand iwan s’ouvre sur le côté sud (ill.161), les trois autres côtés présentent des façades à trois arches avec des iwans plus petits et des portes latérales. Une niche murale ornée de muqarnas au nord de la cour laisse apparaître les traces d’un puits mural (maqlab) d’où l’eau s’écoulait (ill.160). A l’ouest, ce « grand qa’a » est suivi d’un autre, plus petit (qa'a latifa), autour duquel se déroule le corridor d’accès (ill.162). La cour est pavée d’un motif en étoile composé de bandes de marbre colorées. A l’est du « grand qa’a » il y a aussi une petite cour avec trois iwans. Au sud on trouve le bain (ill.163, 164). Le style du portail, proche de celui du mashhad al-Husain, permet de l’attribuer à l’architecte Thabît ibn Shaqwaiq, mort en 600/1203 sur ce chantier.

Les travaux d’al-Zâhir Ghazî se poursuivent avec l’expansion du puits dans la partie nord du plateau : un palan (daulâb) est construit au-dessus de la fontaine (sâtûra). Le puits carré, probablement daté de l’époque préislamique, a été agrandi et vraisemblablement approfondi. Des escaliers permettent de descendre à peu près au niveau de la nappe à une profondeur de 40m. Plusieurs tunnels bifurquent à ce niveau, dont l’un se connecte à une poterne sur le versant nord de la citadelle.

Un grand incendie ravage la Citadelle le 11 jumada I 609/9.X.1212 : al-Zâhir Ghazî fait reconstruire le palais « Dâr al-‘Izz » (Palais d’Honneur) sous le nom de « Dâr al-Shukhus » (Palais des Figures), ce nom proviendrait des nombreuses représentations figuratives sur les murs, mais aucuns vestiges de cet édifice n’a été retrouvé. Des traces de l’incendie sont encore visibles dans l’actuel palais Ayyûbide ; il est donc probable qu’une grande partie des fondations actuelles appartiennent au bâtiment d’origine. Le décor intérieur a été très probablement renouvelée après l’incendie.

Cet incendie a aussi endommagé la Grande Mosquée de la Citadelle (ill.143) sise sur le point le plus élevé du tell et le Maqâm Inférieur (ill.149). La Grande Mosquée est entièrement reconstruire ; une inscription datée 610/1213 (inscription n°8, ill.145) avec le nom du sultan témoigne de cette reconstruction. Le Maqâm est aussi équipé sous la direction du commandant de la Citadelle Badr al-Dîn Aidamur comme en témoigne une inscription sur le cadre d’une ouverture au-dessus du mihrâb (inscription n°6).

A la même période, probablement, une inscription disparue (inscription n°10) et des fragments d’inscriptions (inscription n°9) mentionnent le sultan comme commanditaire de projets de construction non précisés.

 

Travaux du sultan al-‘Azîz Muhammad (r.613/1216-634/1237).

Après de fortes gelées en hiver 621-622/1224-1225, une longue section du mur de la citadelle s’est effondré à l’est du bloc d’entrée. L’atabeg Tughrîl, alors régent du futur sultan, a dirigé une reconstruction succinte, qui a été achevée en 622/1225 (l’exécution de ces réparations avec des poutres en bois conduira en 658/1260 à un sérieux affaiblissement du mur). Un fragment d’inscription en basalte placé sur le glacis à l’est du bloc d’entrée (inscription n°14, ill.57), dans laquelle le sultan al-‘Azîz Muhammad est mentionné, correspond à cette période de réparations.

En 625/1227-1228, cet atabeg fait aussi reconstruire l’arsenal de la citadelle, détruit lors de l’incendie du 11 jumada I 609/9.X.1212, cette phase de travaux est documentée par une inscription altérée sur le linteau d’une entrée au sud du portail d’accès du palais Ayyûbide (inscription n°12). Une partie du palais est peut-être également concernée par ces travaux.

En 628/1230, le sultan al-‘Azîz Muhammad fait contruire un autre palais à côté de l’arsenal, il s’agit peut-être de l’édifice parfois cité « Qasr al-Tawashî ». Cet édifice consiste en une cour entourée d’un petit iwan sur les côtés ouest, nord et est et d’un grand iwan au sud.

Enfin une dernière inscription, datée 631/1234 et conservée au Musée de la Citadelle (inscription n°13), mentionne une phase de travaux dirigée par l’émir Saif al-Dîn Baktash al-‘Azizî avec le sultan comme commanditaire de projets de construction non précisés.  

 

Travaux du sultan al-Nâsir Yûsuf II (r.634/1237-658/1260).

Ces travaux sont attestés suite à la découverte de deux inscriptions au nom du sultan al-Nâsir Yûsuf II.[9] Le premier fragment est retrouvé dans les ruines à l’est du Maqâm Inférieur et mentionne une partie du nom du sultan (inscription n°15) et l’année 642/1244 sans préciser la nature des travaux ni l’édifice concerné.

La deuxième inscription, complète, est datée 643/1246 (inscription n°16, ill.131), elle nomme le sultan et l’émir Fakhr al-Dîn Ayaz al-Nâsirî al-Atabakî comme dirigeant ces travaux, cette inscription est située sur le linteau d’un édifice semi-enterré au sud-est du théâtre moderne « la salle Ayyûbide » (ill.130). Toutefois l’édifice concerné par ces travaux n’est pas identifié.

 

En dhu’l-hijja 658/nov-déc.1259, les troupes Mongoles dirigées par Hülagü s’installent aux portes d’Alep et le 2 safar 658/18.I.1260 le siège de la ville commence. Le 9 safar 658/25.I.1260, les assaillants réussissent une incursion par le front sud vers Bâb Qinnasrîn et pillent la ville jusqu’au 14 safar 658/30.I.1260.

Le siège de la Citadelle peut alors commencer, mais le 11 rabi’ I 658/25.II.1260, Turanshâh, alors en charge de la défense du site en l’absence du sultan al-Nâsir Yûsuf II en fuite, offre sa soumission aux assaillants. Les troupes Mongoles investissent la Citadelle détruisant les murs, la Grande Mosquée et les arsenaux. Le 17 rabi’ I 658/2.III.1260 Hülagü doit quitter Alep pour Damas.

Entretemps le dernier sultan Ayyûbide al-Nâsir Yûsuf II est déposé et un nouveau pouvoir se met progressivement en place.[10]

 

Période Mamluk.

Après les destructions causées par les Mongoles en 658/1260 et 679/1280, la restauration de la citadelle, entamée sous le sultan al-Mansûr Qalâ’ûn (r.27 rajab 678/3.XII.1279 – 6 dhu’l-qa’da 689/10.XI.1290) par le gouverneur Qarâsunqur (en fonction à partir de ramadan 681/3.XII.1282-1.I.1283), est achevée en 691/1292 sous le successeur de Qalâ’ûn, le sultan al-Ashraf Khalîl (r.7 dhu’l-qa’da 689/11.XI.1290 – 12 muharram 693/13.XII.1293). Ces travaux sont documentés par le long bandeau courant le long des saillants du bloc d’accès (inscription n°17, ill. 56, 58, 60-64) et par l’inscription sur le linteau de l’entrée (inscription n°18, ill.64, 65).

Le Maqâm Inférieur, ravagé, est aussi restauré et équipé d’un décor d’incrustations de marbre et de boiseries aujourd’hui disparu.

Un édifice anonyme documenté par une inscription fragmentaire de muharam 765/10.X-8.XI.1363 (inscription n°19) a probablement été construit par le gouverneur Ishiqtamûr al-Mâridanî (en poste vers le 25 ramadan 764/8.VII.1363) sans plus de détail.

Sous le sultan al-Ashraf Sha’bân (r.15 sha’ban 764/30.V.1363 – 5 dhu’l-qa’da 778/16.III.1377), le système hydraulique de la qa’a du palais Ayyûbide est entamé ou rénové en muharram 769/28.VIII-26.IX.1367 sur ordre du gouverneur Mankalîbugha al-Shamsî et sous la surveillance de Muhammad ibn al-Salâr. Une inscription datée 769/1367 vers l’arsenal atteste cette phase de travaux (inscription n°20). Lors de son second mandat en tant que gouverneur Ishiqtamûr al-Mâridanî (15 dhu’l-hijja 770/21.VII.1369 à 773/1371-1372) poursuit et achève ces travaux sur le système hydraulique du palais, comme l’atteste une autre inscription gravée sur le linteau d’un accès souterrain vers la tour T12 (inscription n°21, ill.110, 111).

Le bloc d’accès construit en 606/1209-1210 est restauré en 786/1384-1385 d’après l’inscription de construction (inscription n°22, ill.64, 65)), par le gouverneur de la citadelle Muhammad ibn Yûsuf ibn Salâr, sous le premier règne d’al-Zâhir Barqûq (r.19 ramadan 784/26.XI.1382 – 6 jumada II 791/2.VI.1389).

En 796/1393 une nouvelle menace apparaît Timur, chef d’une armée mongole, pénètre pour la première fois en territoire Mamluk, il est toutefois vite repoussé après l’intervention d’al-Zâhir Barqûq, revenu sur le trône pour la seconde fois (r.14 muharram 792/2.I.1390 – 15 shawwal 801/20.VI.1399). A la mort du sultan, les troupes de Timur commencent à s’emparer de plusieurs villes au nord d’Alep dont Bahasna/Besni et ‘Ayntab/Gaziantep et en safar 803/octobre 1400, celui-ci fonce droit sur Alep qu’il atteint le 9 rabi’I 803/28.X.1400 et poste ses troupes au nord-ouest de la ville. De son côté le gouverneur de la ville Damurdâsh al-Zâhirî prépare la ville aux attaques des mongoles.[11] Toutefois la bataille tourne court et les troupes mongoles entrent par les portes nord et commencent le pillage de la ville, Timur s’installe à la madrasa al-Sultanîya au sud de la Citadelle et entame les préparatifs du siège, mais après trois jours, le 14 rabi’I 803/2.XI.1400, les émirs et notables regroupés dans la Citadelle se rendent et le site est livré aux troupes mongoles. Timur se retrouve maître de la ville cinq jours après son arrivée.[12]

Les Mongoles quittent la ville le 1er rabi’II 803/19.XI.1400 poursuivant son avancée vers le sud pour Hama et Damas.

Décidé a quitter la Syrie, Timur repasse par Alep le 17 sha’ban 804/2.IV.1401, apprennant que ses représentants laissés sur place ont été exécutés, il ordonne d’incendier la ville. Si les sources restent lacunaires sur l’état des édifices et de la Citadelle après le départ de Timur, le nombres des inscriptions de construction et de restauration recensées durant cette première partie du siècle attestent de l’état de délabrement de la ville.

La construction d’une tour avec des portes de fer est mentionnée, sans plus de détail par le gouverneur Damurdâsh al-Muhammadî (plusieurs fois en fonction entre le 2 sha’ban 802/27.V.1400 et après dhu’l-hijja 815/4.III-2.IV.1413).

Le gouverneur Jakam min ‘Iwâd qui s’est proclamé contre-sultan en shawwal 809/11.III-8.IV.1407 en opposition au sultan al-Nâsir Faraj (2e règne du 5 jumada II 808/28.XI.1405 au 25 muharram 815/7.V.1412) entame une série de restauration durant sa courte période de règne (il tombe en dhu’l-qa’da 809/9.IV-8.V.1407) : le fossé est approfondi, le bloc d’accès est réparé et les deux tours avancées nord (ill.165-169) et sud (ill.169-175) sont construites. Il fait aussi construire une grande salle assise sur le bloc d’accès (ill.52-54, 72, 73). Son toit reste inachevé avec le décès du maître d’œuvre (en dhu’l-qa’da 809/9.IV-8.V.1402). Jakam a laissé plusieurs traces épigraphiques de ses travaux sur la tour avancée sud (inscription n°23, ill.175) et sur les ouvertures de la grande salle (inscription n°24, 25, ill.52, 53).

Des fragments d’un grillage de métal (au Musée de la Citadelle) mentionnent une activité architecturale au début de l’année 812/1409 (inscription n°27) sans plus de précision.

Lors de la visite du sultan al-Mu’ayyad Shaykh (r.1 sha’ban 815/6.XI.1412 – 9 muharram 824/14.1.1421) à la citadelle le 13 rajab 820/26.VIII.1417, les travaux de la grande salle sont toujours inachevés. Ces travaux, limités à la pose du toit en bois, sont finalement achevés durant la dernière décade de rajab 820/3-12.IX.1417. Une inscription déposée dans la cour du palais (inscription n°28, ill.79) mentionne cette phase de travaux.

La tour octogonale T02 à l’est du bloc d’entrée (ill.11)) avec ses armatures en bronze, est probablement l’œuvre du gouverneur Bâk al-Ashrafî, le chef de chantier qui a entamé la restauration du mur d’enceinte de la ville en sha’ban 830/28.V-25.VI.1427 ordonnée par le sultan al-Ashraf Barsbay (r.8 rabi’ II 825/1.IV.1422 – 13 dhu’l-hijja 841/7.VI.1438).

Les parties ruinées du front ouest et le glacis vers le bloc d’accès ont été réparés sous le sultan al-Zâhir Jaqmaq (en poste du 19 rabi’ I 842/9.XI.1438 jusqu’à sa démission le 21 muharram 857/1.II.1453). Cette réparation n’est documentée par aucune inscription.

Un décret daté du 17 rabi’I 859/28.III.1453 (règne du sultan al-Ashraf Inâl du 8 rabi’ I 857/19.III.1453 au 14 jumada I 865/25.II.1461) a été gravé sur le bloc d’entrée (inscription n°29, ill.69).

En 865-866/1461-1462, sous le règne du sultan al-Zâhir Khushqadam (r.19 ramadan 865/28.VI.1461 – 10 rabi’I 872/9.X.1467), la Grande Mosquée reçoit un décret (inscription n°30, ill.144) relatif à son organisation interne.

 

Le long règne du sultan al-Ashraf Qaitbay (6 rajab 872/31.I.1468 – 27 dhu’l-qa’da 901/7.VIII.1496) est ponctué par des modifications mineures sur la Citadelle : renforcement de la tour du front nord (tour T29) en 877/1472-1473, documentée par le long bandeau de basalte sur fond blanc (inscription n°33, ill.25), et restaurations ou rajouts indéterminés allant de 877/1472-1473 à rabi’ II 880/4.VIII-1.IX.1475, sous la conduite de ‘Alay al-Dîn sans plus de détail. Malgré ces modifications mineures, le nom du sultan apparaît dans plusieurs inscriptions : un décret daté 874/1469 sur le saillant oriental du bloc d’accès (inscription n°31, ill.67), un long bandeau daté 877/1472 sous les fenêtres de la grande salle (inscription n°32, ill.54) et une inscription datée 880/1475 sur la fenêtre centrale de la grande salle (inscription n°34).

 

C’est sous le règne du sultan al-Ashraf Qânsûh al-Ghaurî (r.1 shawwal 906/20.IV.1501 – 25 rajab 922/24.VIII.1516) que la Citadelle va connaître de grosses restaurations de 911/1505-1506 à 915/1509-1510 dirigées par le gouverneur de la citadelle Abrak al-Ashrafî : le fossé est réparé, la tête de pont est remplacée en rabi’ I 913/11.VII-9.VIII.1517 (inscription n°40, ill.49), la tour avancée sud est réorganisée en rabi’ I 914/30.VI-29.VII.1508 (inscription n°42, ill.175), tout comme la tour avancée nord en rabi’ II 915/19.VII-16.VIII.1509 (inscription n°44, ill.167) et le toit en bois de la grande salle remplacé par neuf coupoles en pierre (voir gravure de Drummond plus bas) est achevé en muharram 916/10.IV-9.V.1510 (inscription n°45).

A cela il convient de rajouter une inscription isolée datée 912/1506-1507 au Musée de la Citadelle (inscription n°38) et un fragment d’inscription (inscription n°39) faisant état de reconstruction après destruction sans plus de précision sur les parties concernées. On doit aussi au sultan deux décrets datés 914/1509 (inscription n°41, ill.51) et 911-915/1505-1509 (inscription n°43, ill.50) tout deux gravés à l’intérieur de la tête de pont nouvellement remplacée.

 

Tous ces travaux ont été entreprit suite à la menace imminente d’une attaque des Ottomans, mais ils ne serviront à rien puisque la Citadelle sera livrée par trahison (par le gouverneur Kha’îrbak min Malbây, en fonction de rabi’ II 910/11.IX-9.X.1504 jusqu’au 23 rajab 922/22.VIII.1516)[13] à l’envahisseur Ottoman. La Citadelle servira de poste de garnison et le sultan Sulaiman fera faire des travaux documentés par le grand bandeau daté 928/1521[14] courant sur la tour T43 (ill.2, 36-38). Les Ottomans équiperont la Citadelle avec le moulin sur la tour T24 (ill.22, 23), la grande caserne au nord (dit baraquement d’Ibrahîm Pasha) et les implantations de la partie ouest de la Citadelle mises à jour lors de fouilles entre 2000 et 2005 (ill.82-94).

Le séisme du 6 février 2023 a occasionné des dégâts sur le moulin Ottoman, la partie nord-est du mur d’enceinte, la Grande Mosquée et le bloc d’accès.

 

 

 

Epigraphie (ill.2)

 

Tableau de concordances des inscriptions de la Citadelle.

 

n.d. Inscription 3 lignes dans un cadre rectangulaire vers l’édifice dit hammam Nûr al-Dîn (inscription n°1, ill.98).[15]

« In namen Gottesunser Herr al-Malîk al-Nâsir Sâlah al-Dîn, der Sultan des Islam [und der Muslime] Yûsuf, Sohn des Aiyub, der wiederheleber des Reiches und Befehlshaber der Gäubigen. Sein Sohn ist al-Malîk al-Zâhir Ghiyat [al-Dîn] al-Malîk al Islam Abû Mansûr al-Ghazî ».

 

 

595/1193. Maqâm Ibrahîm, texte de construction (109x50) 4 lignes (inscription n°2).[16]

« Ceci a été ordonné par notre maître al-Malik al-Zâhir …. Ghiyâth al-dunya wa’l-dîn Abû’l-Muzaffar al-Ghazî ibn al-Malik al-Nasir Yûsuf ibn Aiyub en l’année 595 (1193) ».

 

 

606/1209. Texte de construction 6+1 lignes (300x180) sur le tympan de la 3e porte de fer (inscription n°3, ill.71).[17]

« xxx Ceci a été fait par ordre de notre maître le sultan, al-Malîk al-Zâhir, le savant, le juste, le champion de la foi, le combattant, l’assisté de Dieu, le victorieux, le vainqueur, Ghiyath al-dunya [wa’l-dîn], le roi de l’Islam et des Musulmans, le seigneur des rois et des sultans, le subjugueur des infidèles et des polythéistes, le dompteur des révoltés et des rebelles, Abul-Muzaffar al-Ghazî, fils d’al-Malîk al-Nâsir Sâlah al-Dîn Yûsuf, fils d’Aiyûb, le défenseur de l’émir des croyants, - que Dieu glorifie ses victoires – sous l’administration de Badr al-Dîn Aidamur, serviteur d’al-Malîk al-Zâhir. Cela (fut achevé) en l’année 606 (1209) ».

 

 

606/1209. Texte de construction sur les battants de la 3e porte de fer (inscription n°4).[18]

« Ceci a été fait par ordre de notre maître al-Malîk al-Zâhir Ghazî, fils de Yûsuf. Cela (a été achevé) en l’année 606 (1209) ».

 

 

n.d. Texte de construction (inscription n°5).[19]

« Sa construction a été ordonnée par notre maître le sultan al-Malîk al-Zâhir, le savant, le juste, le champion de la foi, le combattant, le vainqueur, le victorieux, al-Ghazî, Ghiyath al-dunya wa’l-dîn, Abûl-Muzaffar, fils de Yûsuf, fils d’Aiyûb, le défenseur de l’émir des croyants ».

 

 

n.d. Maqâm Ibrahîm, texte de construction sur les 4 bordures d’une fenêtre (inscription n°6).[20]

« xxx Fait durant les jours de notre maître le sultan, al-Malîk al-Zâhir, le savant, le juste, le champion de la foi, Ghiyath al-dunya wa’l-dîn Abul-Muzaffar Ghazî, fils d’al-Malîk al-Nâsir, sous la direction du pauvre esclave Badr al-Dîn Aidamur, que Dieu ait pitié de lui ! »

 

 

608/1211. Texte de construction 1 lignes sur les vantaux de la porte de la tête de pont (inscription n°7).[21]

« Ceci a été fait par ordre de notre maître al-Malî[k] al-Zâhir Ghazî, fils deYûsuf, en l’année 608 (1211) ».

 

 

610/1213. Grande Mosquée, texte de construction 3 lignes (265x45) sur la porte d’entrée (inscription n°8, ill.145).[22]

« xxx Ceci a été fait par ordre de notre maître al-Malîk al-Zâhir, le savant, le juste, le champion de la foi, l’assisté de Dieu, le victorieux, le vainqueur, Ghiyath al-dunya wa’l-dîn Abul-Muzaffar al-Ghazî, fils d’al-Malîk al-Nâsir Salah al-Dîn Yûsuf, fils d’Aiyûb, - que Dieu éternise son règne ! – en l’année 610 (1213) ».

 

 

av.613/1216. Fragments d’un texte de construction 3 lignes (43x17) déposé au Maqâm Ibrahîm (inscription n°9).[23]

« xxxx al-Mansûr xxxx al-Dîn Abu’l-Muzaffar xxxx émir xxxx son règne demeure ! ».

 

 

n.d. Texte de construction sur le linteau d’une porte murée d’une cave (inscription n°10).[24]

Texte non disponible.

 

 

616/1219. Maqâm Ibrahîm, texte de construction 4 lignes (40x70) sur une dalle (inscription n°11).[25]

« xxx Cette mosquée a été construite, durant les jours du sultan al-Malîk al-‘Azîz, fils d’al-Malîk al-Zâhir, - que Dieu éternise son règne ! – sur l’injonction de l’atabeg Tugrîl, fils de ‘Abd-Allâh, serviteur d’(al-Malîk) al-Zâhir, par Mahmûd al-Khutlukî, que Dieu ait pitié de lui ! – en l’année 616 (1219) ».

 

 

625/1228. Texte de construction 3 lignes (165x46) au-dessus d’une porte sur la façade nord de l’arsenal (inscription n°12).[26]

« xxx Au nom d’Allâh a ordonné de [construire] cet arsenal béni notre maître le sultan al-Malîk al-‘Azîz [ ] Muhammad – qu’Allâh glorifie ces victoires ! - [ ] Toghrûl en l’année 625 (1228) ».

 

 

631/1234. Texte de construction (120x42) 6+1 lignes (inscription n°13).[27]

« xxx Voici ce qui a été fait par ordre de notre maître le sultan al-Malîk al-‘Azîz Muhammad Ghiyath al-dunya wa’l-dîn, le pilier de l’Islam et des Musulmans, le seigneur des rois et des sultans, - que Dieu éternise sa royauté ! – sous l’administration de l’esclave avide de la miséricorde de Dieu, Saif al-Dîn Baktash, fonctionnaire d’al-Malîk al-‘Azîz, en l’année 631 (1234) ».

 

 

n.d. Texte de construction bandeau en basalte (56x27) sur le glacis à l’est du bloc d’accès (inscription n°14, ill.57).[28]

« xxx [le sulta]n al-Malîk al-‘Azîz Mu[hammad] xxx ».

 

 

av.642/1244. Inscription 2 lignes (26x47) à l’est du Maqâm inférieur (inscription n°15).[29]

« xxx unser Herr, der Sultan al-Malîk al-Nâsi[r] xxx 6[4]2 (1244-1245) ».

 

 

643/1246. Inscription 3 lignes (175x44) sur le linteau de la salle Ayyûbide vers le théâtre moderne (inscription n°16, ill.131).[30]

« Im Namen Gottes … Es hat befohlen seine Ausführung unser Herr, der Sultan al-Malîk al-Nâsir Sâlah al-dunya wa’l-dîn Yûsuf, der Gelehrte, der Gerechte, der Glaubensstreiter, der zum Kampf Gerüstete, der von Gott Unterstützte, der Siegreiche, der Sieger, des Sultan des Islam und der Muslime, Abû’l-Muzaffar Yûsuf, Sohn des al-Malîk al-‘Azîz Muhammad, Sohn des al-Malîk al-Zâhir Ghazî, Sohn des Yûsuf, Sohn des Ayyûb [Verteidiger der Herrschers der Glaübigen], unter der Aufsicht des der Gnade seines Herrn bedürftigen Sklaven Ayaz al-Malikî al-Nâsirî al-‘Atabakî im dhu’l-hijja 643 (19.IV-17.V.1246) ».

 

 

691/1292. Texte de construction bandeau (7000x50) sur les 2 saillants de l’entrée, et 3 lignes dans le fond de la baie (inscription n°17, ill.56, 58, 60-64).[31]

« Coran LVII, 16 xxxx Sa construction, après sa situation négligée, a été ordonnée par notre maître, le sultan auguste al-Malik al-Ashraf, le savant, le juste, le guerrier, le champion de la foi, le combattant, le défenseur des frontières, l’assisté de Dieu, le victorieux, le vainqueur, Sâlah al-dunya wa’l-dîn, l’incomparable parmi les rois, le défenseur de l’Islam et des musulmans, l’appui de l’empire, le pilier de la communauté, celui qui tient la nation sous son patronage, l’auxiliaire du califat, l’assistant de l’imamat, le seigneur des rois et des sultans, le sultan des armées des unitaires, le défenseur de la vérité par les preuves, le vivificateur de la justice dans les mondes, [l’exterminateur] des révoltés et des rebelles, le tueur des infidèles et des hérétiques, le dompteur des révolutionnaires et des schismatiques, le subjugueur des adorateurs de la croix, l’Alexandre du temps, le conquérants des grandes villes, celui qui met en fuite les armées des Francs, des Arméniens et des Tatars, le destructeur de Saint Jean d’Acre et des pays du littoral, le vivificateur du noble empire Abbasside, le défenseur de la communauté mahométane, Khalîl, fils du sultan al-Malik al-Mansûr Qalâ’ûn, que Dieu glorifie ses victoires ! cela (a été achevé) en l’année 6[9]1 (1292), sur la haute injonction de notre maître le grand émir Shams al-Dîn Qarâsunqûr, le porte raquettes d’(al-Malik) al-Ashraf et d’(al-Malik) al-Mansûr, gouverneur général de la province d’Alep, que Dieu glorifie ses victoires ! »

 

 

n.d. Texte de restauration 2 lignes (200x50) sur l’arc de décharge de la Porte aux Serpents (inscription n°18, ill.64, 65).[32]

« Sa construction, après sa ruine, a été ordonnée par le sultan auguste al-Malik al-Ashraf Salâh al-dunya wa’l-dîn Khalîl, vivificateur du noble empire Abbasside, le défenseur de la communauté mahométane, que sa victoire soit glorieuse ! »

 

 

765/1363. Texte 2 lignes (140x23) déposé au maqâm supérieur (inscription n°19).[33]

«  ….. des provinces royales de Halab la bien gardée, au mois de Dieu muharram de l’année 765 (octobre-novembre 1363) »

 

 

769/1367. Texte de construction 7 lignes (110x80) au-dessus du linteau de la porte d’un bâtiment en ruine contigü à la façade nord du zardkhâna (inscription n°20).[34]

« Basmala. Annonce-leur que l’eau est divisée entre eux : chaque ration doit venir (Coran LIV, 28). L’eau a été amenée à cette salle bénie du temps de notre maître le sultan al-Malik al-Ashraf Nâsir al-dunya wa’l-dîn Sha’ban – que Dieu fortifie ses victoires ! – sur la haute initiative de notre maître appartenant au souverain, fidèlement servi, Sayf al-Dîn Mankalâ Bughâ al-Shamsî, gouverneur général de la province royale d’Alep – que Dieu fortifie ses victoires ! – sous la direction du serviteur qui a besoin de Dieu Muhammad ibn al-Salâr – que sa victoire soit fortifiée ! – dans le mois de muharram de l’année 769 (septembre 1367) »

 

 

771/1369. Texte de construction 3 lignes (130x30) sur un bloc remployé la tête en bas comme linteau d’une porte moderne ouvrant sur un souterain vers la tour T12 (inscription n°21, ill.110, 111).[35]

« Basmalla. La fondation de cette fontaine bénie a été ordonnée par notre maître le sultan al-Malik al-Ashraf Nâsir al-dunya wa’l-dîn Sha’ban – que Dieu prolonge son règne !- sur l’initiative de Sa très noble Grandeur Sayf al-Dîn Ishiqtamur al-Ashrafî, gouverneur général des provinces royales d’Alep – que sa victoire soit fortifiée ! – sous la surveillance du serviteur qui a besoin de l’indulgence de son Seigneur, Muhammad ibn Salâr al-Ashrafî, serviteur d’al-Malik al-Mansûr (?)….. en safar 7xx »

 

 

786/1384. Texte de restauration 2 lignes (300x60) sur le linteau de la Porte aux Serpents (inscription n°22, ill.64, 65).[36]

« Cette [citadelle] a été refaite de neuf, après que sa construction eut été négligée et qu’elle fut sur le point de tomber en ruine, du temps de notre maître le sultan, le souverain, al-Malik al-Zâhir Abû Sa’id Barqûq – que Dieu rende prospère en faisant durer [son règne] les villes, anoblisse par son existence et par le maintien de son empire les nobles ! – par le serviteur qui a besoin de Dieu le Très-Haut Muhammad ibn Yûsuf ibn Salâr, lieutenant du sultanat de cette [citadelle], dans le courant de l’année 786/1384 »

 

 

809/1406. Cartouche (40cm de diamètre) inscrit sur la tour avancée sud de la citadelle (inscription n°23, ill.175).[37]

« Al-Malik al-‘Adîl Abû ‘Abdallâh Jakâm, que son destin soit glorifié ! »

 

 

809/1406. Signature 1 ligne (130x40) sur le linteau de la fenêtre droite en façade du qasr de la citadelle (inscription n°24, ill.52, 53).[38]

« A écrit Sa’d sur ses portes : entrez-y en paix avec confiance ! »

 

 

809/1406. 6 inscriptions décoratives entre les 7 fenêtres du qasr à hauteur des linteaux (inscription n°25, ill.52, 53).[39]

« Dis : tout bien-être à qui l’habite ! »

 

 

811/1408. Texte de fondation du Maqâm Ibrahîm 4 lignes (80x47) sur une plaque à gauche de l’entrée (inscription n°26, ill.151).[40]

« A constitué waqf l’esclave avide de la miséricorde d’Allâh, le shaykh al-Islam Zain al-Dîn Muhammad ibn al-Shihna, le hanéfite – qu’Allâh le traite avec indulgence ! – un demi feddan au village d’Urim al-Kubra du Jebel Sim’ân, pour les nattes, l’illumination et l’entretien du Maqâm d’al-Khalîl, dans la citadelle, à la date de jumada I de l’année 811 (septembre-octobre 1408) »

 

 

812/1409. Texte sur 2 côtés d’une fenêtre grillagées, déposé au maqâm supérieur (inscription n°27).[41]

« Dans la citadelle d’Alep la bien gardée – Allâh reforce ses victoires ! – au début de l’année 812 »

 

 

820/1417. Texte de construction 2 lignes (245x47) déposé dans la cour de la grande salle (inscription n°28, ill.79).[42]

« A achevé la construction de cette forteresse bénie, en dehors de (sauf ?) ses murs, notre seigneur le sultan al-Malik al-Mu’ayyad Abû Nasr Shaykh. Qu’Allâh fasse durer son règne éternellement xxxx »

 

 

859/1453. Décret 9 lignes (36x90) à l’est du bloc d’accès sur le parement du mur (inscription n°29, ill.69).[43]

« Louanges à Dieu ! – a la date du 17 rabi’I en l’année 859/28.III.1453, fut promulgué le décret princier, auguste, de notre maître, le chef, al-Ashrafî Qântamur al-Fârisî (?), représentant du noble sultanat dans la Citadelle d’Alep (puisse Dieu la garder !), abolissant la mesure illégale récemment instituée dans la forteresse susdite, à savoir que lorsqu’il meurt un mamluk royal ou un soldat pourvu de dotation foncière y résidant, il ne puisse être enterré qu’après présentation d’un cadeau au commandant de la citadelle ; abolition à perpétuité, pour l’amour de Dieu puissant et grand. Il implore le Très-Haut contre quiconque tentera de renouveler cette injustice : celui-là, Dieu lui fera son procès et sera son adversaire ‘le jour où ne serviront ni richesses ni postérité, si ce n’est à ceux qui viendront à Dieu avec un cœur pur’ (Coran XXVI, 88-89). ‘Quiconque modifiera ses dispositions après en avoir eu connaissance commettra un crime qui retombera sur ceux qui l’imiteront, car Dieu sait et entend tout’ (Coran II, 177). Maudit en même temps que son père quiconque renouvellera cette mesure illégale après son  abolition et que la malédiction pèse sur lui jusqu’au Jour de la Résurrection »

 

 

865-866/1461-1462. Décret 6 lignes (65x60) sur 2 blocs sous l’auvent de l’entrée de la Grande Mosquée (inscription n°30, ill.144).[44]

« Qu’Allâh fasse durer la puissance et la vie de notre maître le sultan al-Malik al-Zâhir Abu’l Sa’îd Khushqadam – que sa victoire soit glorifiée ! – a décrété le grand émir bien servi, Taghribirdî al-Zâhirî, lieutenant de la citadelle d’Alep – que sa victoire soit glorifiée ! – que personne n’habite dans cette mosquée ou n’y passe la nuit, sauf pour être présent à la prière, et que personne ne viole de nouveau cet ordre (Coran II, 117) »

 

 

874/1469. Décret 3 lignes + 1 ligne (150x40) sur le saillant est du bloc d’accès (inscription n°31, ill.67).[45]

« A la date du jeudi 11 muharram de l’année 874/21.VII.1469, a décrété Son Altesse gracieuse et haute, le maître Sayf al-Dîn Temirbây al-Ashrafî, lieutenant du sultanat royal dans la citadelle victorieuse d’Alep la bien gardée, d’abolir les charges sur l’administration des fiefs de la citadelle ; déjà avant cette date le défunt Qâsim al-…. avait également fait écrire l’abolition de ces charges. Maudit soit, avec son père, qui renouvellera cette injustice et que … Allâh contre lui jusqu’au jour du jugement »

 

 

877/1472. Texte de reconstruction et cartouches au qasr 1 ligne (600x50) au-dessous de la grande fenêtre de la façade (inscription n°32, ill.54).[46]

« A ordonné la reconstruction de ce château béni, en raison de sa caducité, notre maître le sultan al-Malik al-Ashraf Qaitbay – que sa victoire soit glorifiée ! – et cela sur le conseil du sharif ‘Alay al-Dîn, surintendant des nobles sayyids en Egypte, en date de l’année 877 (1472) »

 

 

877/1472. Texte de construction sur le bastion nord de la citadelle, bandeau (1900x125) en blocs de basalte incrusté sur un fond blanc (inscription n°33, ill.25).[47]

« A ordonné de la construire notre maître al-Malik al-Ashraf Abu’l-Nasr Qaitbay – que sa victoire soit glorifiée ! – en l’année 877 (1472) »

 

 

880/1475. Texte de construction à l’intérieur du qasr 1 ligne et 2 cartouches sur le linteau et les chambranles de la grande fenêtre (inscription n°34).[48]

« Au nom d’Allâh … et c’est Lui dont nous implorons le secours ! a ordonné de fonder ce château béni notre maître le sultan suprême, tout-puissant sur les nuques des peuples, le tout-puissant, al-Malik al-Ashraf Qaitbay, qui ne cesse pas d’avoir le plus sublime honneur parmi les princes de la terre par son service aux deux nobles sanctuaires, le sultan de l’islam et des musulmans, le dompteur des infidèles et des polythéistes, le vivificateur de la justice dans les mondes, source de générosité pour ceux qui cherchent la protection d’Allâh – que sa victoire soit glorifiée ! – en date du mois de rabi’II de l’année 880 (août 1475) »

 

 

n.d. Cartouches et eulogie, au qasr 1 ligne (277x38) sur une assise de marbre jaune au-dessus de la porte de la terrasse sur la face nord du bloc d’entrée (inscription n°35, ill.75).[49]

Texte non disponible.

 

 

903/1498. Fragment d’un décret 3 lignes (40x35) sur le pied-droit sud de la Porte aux Serpents (inscription n°36).[50]

« Coran II, 177. A la date du 8 rajab 903/2.III.1498 »

 

 

n.d. Inscription fragmentaire 6 lignes (50x46) dans le mur de la grande entrée (inscription n°37).[51]

Texte non disponible.

 

 

912/1506. Texte de restauration 2 lignes (131x34) déposé au maqâm supérieur (inscription n°38).[52]

« Sa construction après sa destruction a été ordonnée par notre seigneur le sultan al-Malik al-Ashraf [Abû] Nasr Qânsûh al-Ghûrî – Puisse ses victoires être renforcées – au temps de son Altesse xxxx Abrak al-Ashrafî, commandant de la [victorieuse] citadelle d’Alep. Allâh [renforce] ses victoires ! Date : année 912 (1506) »

 

 

n.d. Fragment de construction 2 lignes (90x47), déposé au maqâm supérieur (inscription n°39).[53]

«  xxxx A ordonné sa construction après xxxx puissante est sa victoire – à l’époque de son Altesse »

 

 

913/1507. Texte de rénovation et cartouches 1 ligne (380x40) sur 3 plaques encastrées dans un cadre en forme de tabula ansata sur la tête de pont (inscription n°40, ill.49).[54]

« A ordonné de remplacer cette construction par une nouvelle, motre maître, le sultan suprême, al-Malik al-Ashraf Abu’l-Nasr Qansûh al-Ghûrî – que sa victoire soit glorifiée ! – par la gestion de Son Altesse Saif al-Dîn Abrak al-Ashrafî, lieutenant de la citadelle victorieuse d’Alep – que sa victoire soit glorifiée ! – à la date du mois de rabi’ I de l’année 903 (juillet 1507) »

 

 

914/1509. Décret 2 lignes (248x35) à gauche et à l’intérieur de la tête de pont (inscription n°41, ill.51).[55]

« Au nom d’Allâh …. A la date du 17e du mois dhu’l-qa’da le saint, de l’année 914 (5.III.1509), arriva le haut décret royal de notre maître, le sultan al-Malik al-Ashraf Abu’l-Nasr Qansûh al-Ghûrî – que sa victoire soit glorifiée ! – à tous ceux des [gouverneurs], des [chambel]lans, des juges et au lieutenant de la citadelle que cela concerne – qu’Allâh l’Exalté [glorifie] les aide ! – que tous les fondeurs et tallandiers, pour le léger et le lourd, suivent leurs habitudes dans la combinaison [un mot] des alliages de l’arsenal royal dans la citadelle victorieuse ; et l’a écrit notre maître, l’émir Saif al-Dîn Abrak al-Ashrafî, titulaire d’un commandement de mille dans la province du Caire et inspecteur de la sommellerie royale à … - qu’Allâh glorifie ses victoires ! – qu’Allâh ait pitié de celui qui en est la cause ! [et maudit soit] qui malgré cela commetra à nouveau [l’abus] »

 

 

914/1508. Texte de construction bandeau (600x45) avec ansae à palmettes et cartouches sur la tour avancée sud (inscription n°42, ill.175).[56]

« A ordonné de le construire notre maître, le sultan suprême, al-Malik al-Ashraf Abu’l-Nasr al-Ghûrî – que sa victoire soit glorifiée ! – à l’époque de Son Altesse Saif al-Dîn Abrak al-Ashrafî, inspecteur de la sommellerie royale et lieutenant de la citadelle victorieuse d’Alep – que sa victoire soit glorifiée ! – au mois de rabi’ I de l’année 914 (juillet 1508) »

 

 

911-915/1505-1509. Décret 4 lignes (160x45) sur le tympan de la porte intérieure de la tête de pont (inscription n°43, ill.50).[57]

« En l’an 911 avait été promulgué le haut décret royal du sultan al-Malik al-Ashraf Abu’l-Nasr Qansûh al-Ghûrî – que sa victoire soit gloriifée ! – adressée au lieutenant de cette citadelle victorieuse – qu’Allâh glorifie sa victoire ! – de creuser le fossé, de le déblayer, et de faire entourer par ce fossé (toute) la citadelle victorieuse – qu’Allâh la défende ! – et s’occupa de cette œuvre, depuis le commencement des travaux tout le temps jusqu’à leur achèvement en 913, le gouverneur sur place, avant son voyage au service de la Sublime Porte à titre de lieutenant de la citadelle et à son retour , Son Altesse Saif al-Dîn Abrak al-Ashrafî, commandant de mille en Egypte, inspecteur de la sommellerie royal, et lieutenant de cette citadelle victorieuse – qu’Allâh glorifie ses victoires ! – à la date de l’an 915 (1509) »

 

 

915/1509. Texte de réfection 2 lignes (260x50) flanquées de cartouches sur la tour avancée nord (inscription n°44, ill.167).[58]

« A refait cette tour bénie notre maître, le sultan al-Malik al-Ashraf Abu’l-Nasr Qansûh al-Ghûrî, – que sa victoire soit gloriifée ! – à l’époque de Son Altesse illustre Saif al-Dîn Abrak commandant de mille en Egypte, inspecteur de la sommellerie royal, et lieutenant de cette citadelle victorieuse – qu’Allâh glorifie ses victoires ! – au mois de rabi’ II de l’année 915 (juin-juillet 1509) »

 

 

916/1510. Texte de réfection 2 lignes (100x40) sur une tabula ansanta dans la grande salle sur le mur sud (inscription n°45).[59]

« A bâti à neuf cette coupole (du château), lors de l’écroulement de son plafond, le sultan al-Malik al-Ashraf Qansûh al-Ghûrî, à l’époque de son Altesse illustre, Abrak, lieutenant de la citadelle, procureur du saint Maqâm, à la date du muharram de l’année 91(6 ?) (avril 1510) »

 

 

 

Biblio complémentaire

Rabbat (1997)

Khayyata/Kohlmeyer (1998), p.69-96

Allen (2003)

Gonnella (2000), p.199-210

Gonnella (2001), p.188-194

Gonnella/Korn (2004), p. 269-283

Korn (2004)

Gonnella/Kohlmeyer (2005)

Gonnella (2006), p.165-175

Rabbat (2006), p.84-105

Bianca (2007) 

David (2007), p.51-73

Dotti (2007), n°28

Gangler/Esefeld (2007), p.287-297

Gonnella (2007), p.103-139

Lohrer/Gangler (2007), p.265-272

Gonnella (2008)

Gonnella (2008a), p.139-148

Gonnella (2008b), p.123-139

Gonnella (2012), p.223-247

Gonnella (2016), p.157-177

Haddad (2019)

 

 

 

 

 

Une image contenant carte, texte, Plan, noir et blanc

Description générée automatiquement

 

 

Une image contenant texte, carte, diagramme, Plan

Description générée automatiquement

 

 

 

Une image contenant reptile

Description générée automatiquement

 

Une image contenant ciel, extérieur, plusieurs

Description générée automatiquement

 

 

1/ plan de la Citadelle avec sa nomenclature

2/ plan de la Citadelle avec localisation des inscriptions

3/ vue aérienne de la Citadelle

source : Iconem-Unesco

4/ vue de la Citadelle depuis le quartier de Bâb al-Faraj au nord-ouest

5/ vue de la Citadelle depuis le parvis

 

 

 

Une image contenant ciel, route, extérieur, bâtiment

Description générée automatiquement

 

Une image contenant bâtiment, extérieur, ciel, vieux

Description générée automatiquement

 

Une image contenant bâtiment, extérieur, bastion, château

Description générée automatiquement

 

Une image contenant bâtiment, extérieur, bastion, pierre

Description générée automatiquement

 

Une image contenant terrain, bâtiment, extérieur, pierre

Description générée automatiquement

 

6/ vue de la Citadelle depuis le parvis

7/ vue de la tête de pont et du bloc d’entrée

8/ vue de la tête de pont et du bloc d’entrée

9/ vue du bloc d’entrée, des arcades et de la tour T02 dite tour Mamluk

10/ vue de la tour T01 et des arcades du Qasr al-Tawashî

 

 

 

Une image contenant bâtiment, extérieur, pierre, ruine

Description générée automatiquement

 

Une image contenant bâtiment, extérieur, roche, matériau de construction

Description générée automatiquement

 

Une image contenant bâtiment, extérieur, vieux, pierre

Description générée automatiquement

 

Une image contenant bâtiment, extérieur, brique, pierre

Description générée automatiquement

 

 

11/ les grandes arcades et la tour T02

12/ les tours T03 et T04 avec sa poterne

13/ la tour T05 et la tour avancée sud

14/ la tour T05, la base de T06 et T07

15/ les tours T08 et T09

 

 

 

Une image contenant bâtiment, extérieur, matériau de construction, ruine

Description générée automatiquement

 

Une image contenant ciel, bâtiment, extérieur, pierre

Description générée automatiquement

 

Une image contenant extérieur, roche, bâtiment, ruine

Description générée automatiquement

 

Une image contenant extérieur, bâtiment, pierre

Description générée automatiquement

 

Une image contenant extérieur, bâtiment, matériau de construction, ruine

Description générée automatiquement

 

16/ les tours T10, T11 et T12

17/ les tours T12, T13 et T14

18/ les tours T15, T16, T17 et T18

19/ les tours T16, T17 et T18

20/ les tours T19, T20 et T21

 

 

 

Une image contenant bâtiment, ciel, extérieur, château

Description générée automatiquement

 

Une image contenant bâtiment, extérieur, château, pierre

Description générée automatiquement

 

Une image contenant terrain, extérieur, bâtiment, saleté

Description générée automatiquement

 

Une image contenant ciel, terrain, extérieur, bâtiment

Description générée automatiquement

 

Une image contenant ciel, bâtiment, extérieur, brique

Description générée automatiquement

 

21/ les tours T21, T22 et T23

22/ les tours T23, T24 avec le moulin Ottoman

23/ les tours T24, T25 et T26

24/ les tours T26 et T27 avec sa poterne

25/ les tours T28 et T29 avec l’inscription n°33 datée 877/1472

 

 

 

Une image contenant ciel, bâtiment, extérieur, matériau de construction

Description générée automatiquement

 

Une image contenant ciel, extérieur, bâtiment, pierre

Description générée automatiquement

 

Une image contenant ciel, extérieur, bâtiment, ruine

Description générée automatiquement

 

Une image contenant terrain, extérieur, matériau de construction, ruine

Description générée automatiquement

 

Une image contenant extérieur, roche, pierre, ruine

Description générée automatiquement

 

26/ les tours T26 à T32 (avec le minaret) et la tour avancée nord

27/ les tours T31, T32 (avec le minaret) et T33

28/ les tours T34, T35 et T36

29/ les tours T37 et T38

30/ les tours T39 et T40 avec ses 3 colonnes en boutisse

 

 

 

Une image contenant terrain, extérieur, bâtiment, roche

Description générée automatiquement

 

 

Une image contenant bâtiment, extérieur, pierre, matériau de construction

Description générée automatiquement

 

 

 

Une image contenant extérieur, bâtiment, ruine, pierre

Description générée automatiquement

 

Une image contenant bâtiment, extérieur, trottoir, étape

Description générée automatiquement

 

 

Une image contenant extérieur, bâtiment, pierre, ruine

Description générée automatiquement

 

 

31/ les tours T40 et T41 avec ses blasons inscrits

32/ la tour T41 et le saillant de la tour T42

33/ vue de la tour T41 depuis la courtine au sud

34/ l’inscription de Nûr al-Dîn sur la tour T41

35/ le saillant et la tour T42

 

 

 

Une image contenant bâtiment, extérieur, brique, bastion

Description générée automatiquement

 

Une image contenant bâtiment, terrain, extérieur, pierre

Description générée automatiquement

 

Une image contenant terrain, bâtiment, extérieur, brique

Description générée automatiquement

 

Une image contenant extérieur, bâtiment, matériau de construction, ruine

Description générée automatiquement

 

Une image contenant extérieur, ciel, neige, bâtiment

Description générée automatiquement

 

36/ la courtine et la tour T43 avec l’inscription du sultan Sulaiman

37/ les tours T43 et T44

38/ les tours T43 et T44 avec le raccord au bloc d’entrée

39/ vue du front ouest de la Citadelle

40/ le fossée depuis l’ouest

 

 

 

Une image contenant bâtiment, extérieur, montagne, ruine

Description générée automatiquement

 

 

Une image contenant ciel, extérieur, route, bâtiment

Description générée automatiquement

 

 

Une image contenant bâtiment, extérieur, pierre, château

Description générée automatiquement

 

 

 

 

 

41/ vue du fossé depuis l’ouest avec le glacis défensif reconstitué du talus

42/ vue de la Citadelle depuis le parvis

43/ vue de la tête de pont et du bloc d’entrée depuis le parvis

44/ plan du bloc d’accès et de la grande salle du palais

45/ la tête de pont depuis le sud-ouest

 

 

 

Une image contenant bâtiment, brique, âtre, pierre

Description générée automatiquement

 

Une image contenant bâtiment, extérieur, pierre, vieux

Description générée automatiquement

 

Une image contenant ciel, extérieur, bâtiment, pierre

Description générée automatiquement

 

 

Une image contenant bâtiment, brique, extérieur, pierre

Description générée automatiquement

 

 

Une image contenant bâtiment, brique, pierre, ciment

Description générée automatiquement

 

 

46/ le mur de parement de la tête de pont depuis l’est

47/ vue de la rampe d’accès depuis l’est

48/ vue de la tête de pont depuis le sud

49/ l’inscription n°40 datée 913/1507 sur la tête de pont

50/ le décret n°43 daté 911-915/1505-1509 sur la porte intérieure de la tête de pont

 

 

 

Une image contenant bâtiment, extérieur, porte, pierre

Description générée automatiquement

 

 

Une image contenant bâtiment, ciel, extérieur, bastion

Description générée automatiquement

 

 

Une image contenant bâtiment, tour, extérieur, ciel

Description générée automatiquement

 

 

 

Une image contenant bâtiment, extérieur, vieux, pierre

Description générée automatiquement

 

Une image contenant bâtiment, extérieur, bastion, ruine

Description générée automatiquement

 

 

51/ le décret n°41 daté 914/1509 sur la gauche à l’intérieur de la tête de pont

52/ vue du bloc d’entrée et de la grande salle depuis le sud

53/ vue du bloc d’entrée et de la grande salle depuis la rampe

54/ la fenêtre centrale de la grande salle et l’inscription n°32 datée 877/1472

55/ le saillant gauche du bloc d’entrée

 

 

 

Une image contenant bâtiment, extérieur, pierre, brique

Description générée automatiquement

 

 

Une image contenant bâtiment, extérieur, rue, brique

Description générée automatiquement

 

 

Une image contenant bâtiment, extérieur, brique, tour

Description générée automatiquement

 

 

 

Une image contenant bâtiment, pierre, ruine, voûte

Description générée automatiquement

 

Une image contenant bâtiment, extérieur, pierre, voûte

Description générée automatiquement

 

56/ le saillant gauche avec le bandeau inscrit n°17 daté 691/1292

57/ le saillant droit du bloc d’entrée avec l’inscription n°14 non datée sur le talus

58/ le saillant droit avec le bandeau inscrit n°17 daté 691/1292

59/ vue des machicoulis des saillants du bloc d’accès

60/ la baie entre les saillants du bloc d’accès

 

 

 

Une image contenant pierre

Description générée automatiquement

 

Une image contenant texte, bâtiment, brique, matériau de construction

Description générée automatiquement

 

Une image contenant bâtiment, pierre

Description générée automatiquement

 

Une image contenant bâtiment, extérieur, mètre, voûte

Description générée automatiquement

 

Une image contenant bâtiment, voûte, pierre, plafond

Description générée automatiquement

 

61/ la courtine entre les saillants du bloc d’entrée

62/ la courtine entre les saillants avec le bandeau inscrit n°17 daté 691/1292

63/ le mur est du saillant gauche du bloc d’accès avec le bandeau inscrit n°17 daté 691/1292

64/ la Porte aux Serpents sur le mur ouest du saillant droit du bloc d’accès avec au-dessus le bandeau inscrit n°17

65/ l’inscription n°18 non datée et l’inscription n°22 datée 786/1384 sur le linteau de la Porte aux Serpents

 

 

 

Une image contenant terrain, brique, pierre

Description générée automatiquement

 

 

Une image contenant terrain, extérieur, pierre, brique

Description générée automatiquement

 

 

 

Une image contenant bâtiment, intérieur, pierre, voûte

Description générée automatiquement

 

Une image contenant bâtiment, mur, brique, pierre

Description générée automatiquement

 

 

 

66/ le décret n°29 daté 859/1453 à droite de la Porte aux Serpents

67/ le décret n°31 daté 874/1469 à droite de la Porte aux Serpents

68/ la 1e salle du bloc d’accès depuis le nord

69/ 3e coude du bloc d’accès depuis le sud

70/ décor de lions affrontés sur la 2e porte de fer du bloc d’accès

 

 

 

Une image contenant bâtiment, pierre, voûte, plafond

Description générée automatiquement

 

 

Une image contenant intérieur, plafond

Description générée automatiquement

 

 

Une image contenant intérieur, plafond, plancher, plusieurs

Description générée automatiquement

 

 

 

Une image contenant bâtiment, extérieur, pierre, brique

Description générée automatiquement

 

 

 

71/ l’inscription n°3 datée 606/1209 sur la Porte aux Lions

72/ vue de la grande salle du palais construit sur les saillants du bloc d’accès

73/ vue de la grande salle du palais construit sur les saillants du bloc d’accès

74/ portail d’accès à la cour de la grande salle du palais

75/ partie haute du portail avec l’inscription n°35 non datée

 

 

 

Une image contenant bâtiment, voûte, colonnade

Description générée automatiquement

 

 

 

Une image contenant bâtiment, extérieur, pierre, voûte

Description générée automatiquement

 

Une image contenant bâtiment, pierre, voûte

Description générée automatiquement

 

 

Une image contenant bâtiment, terrain, pierre, ciment

Description générée automatiquement

 

 

Une image contenant bâtiment, extérieur, escalier, pierre

Description générée automatiquement

 

76/ plan de la voûte du portail

77/ l’accès nord à la cour de la grande salle du palais

78/ mur de la cour avec son décor

79/ l’inscription n°28 datée 820/1417 déposée dans la cour

80/ l’accès est à la cour de la grande salle

 

 

 

Une image contenant ciel, bâtiment, extérieur, roche

Description générée automatiquement

 

 

Une image contenant extérieur, ruine, pierre

Description générée automatiquement

 

Une image contenant ciel, extérieur, bâtiment, brique

Description générée automatiquement

 

Une image contenant extérieur, ruine

Description générée automatiquement

 

 

81/ la cour et la grande salle depuis l’est

82/ vue du quartier Ottoman depuis la tour T43

83/ vue du quartier Ottoman avec le sûq et le hamman Nûr al-Dîn

84/ vue de la partie nord-ouest du quartier Ottoman

85/ vue du sûq et du hammam Nûr al-Dîn

 

 

 

Une image contenant extérieur, roche, ruine, matériau de construction

Description générée automatiquement

 

Une image contenant bâtiment, ciel, extérieur, roche

Description générée automatiquement

 

Une image contenant roche, ciel, extérieur, montagne

Description générée automatiquement

 

Une image contenant ciel, extérieur, bâtiment, roche

Description générée automatiquement

 

 

86/ vue de la partie sud-ouest du quartier Ottoman

87/ vue des édifices du secteur sud-ouest et de la tour T44

88/ vue des édifices du secteur sud-ouest

89 vue des édifices du secteur sud-ouest

90/ vue des édifices du secteur sud-ouest

 

 

 

Une image contenant bâtiment, extérieur, ruine, pierre

Description générée automatiquement

 

Une image contenant ciel, extérieur, bâtiment, pierre

Description générée automatiquement

 

 

Une image contenant ciel, extérieur, bâtiment, roche

Description générée automatiquement

 

 

Une image contenant ciel, extérieur, véhicule militaire

Description générée automatiquement

 

 

 

 

91/ vue du secteur sud-ouest depuis l’est

92/ vue du secteur sud-ouest et de la tour T43

93 vue du secteur ouest et des tours du front ouest

94/ vue du secteur ouest

95/ vue du hammam Nûr al-Dîn et du maqâm inférieur

 

 

 

Une image contenant ciel, terrain, bâtiment, extérieur

Description générée automatiquement

 

 

 

 

Une image contenant bâtiment, pierre, brique, vieux

Description générée automatiquement

 

 

Une image contenant extérieur, pierre

Description générée automatiquement

 

 

 

 

96/ vue de l’allée centrale

97/ la cour de la grande salle depuis le nord-ouest

98/ l’inscription n°1 non datée vers le hammam de Nûr al-Dîn

99/ les fouilles sur l’emplacement du temple Hittite

100/ les tours T04 et T03

 

 

 

 

Une image contenant bâtiment, pierre, ciment, béton

Description générée automatiquement

 

Une image contenant bâtiment, extérieur, pierre, voûte

Description générée automatiquement

 

 

Une image contenant bâtiment, extérieur, pierre, brique

Description générée automatiquement

 

 

 

 

101/ vue du secteur à l’est du Qasr al-Tawashî

102/ vue du secteur à l’est du Qasr al-Tawashî

103/ vue du secteur à l’est du Qasr al-Tawashî vers la tour T02

104/ vue des tours T04 et T03

105/ la tour T01 jouxtant le bloc d’entrée

 

 

 

Une image contenant roche, ciel, pierre, extérieur

Description générée automatiquement

 

 

 

Une image contenant bâtiment, pierre, extérieur, roche

Description générée automatiquement

 

Une image contenant extérieur, ciel, roche, terrain

Description générée automatiquement

 

 

 

 

Une image contenant roche, pierre, extérieur, bâtiment

Description générée automatiquement

 

 

106/ la tour T05 et la courtine avec ses 3 archères

107/ la tour T08

108/ une série d’archères au niveau des tours T09 et T08

109/ une série d’archères au niveau des tours T12 et T11

110/ la tour T13 et T12 avec l’inscription n°21 sur l’édifice anonyme

 

 

 

Une image contenant bâtiment, extérieur, pierre, brique

Description générée automatiquement

 

 

 

Une image contenant roche, extérieur, rocheux, pierre

Description générée automatiquement

 

Une image contenant roche, extérieur, neige, bâtiment

Description générée automatiquement

 

Une image contenant extérieur, ciel, bâtiment, ruine

Description générée automatiquement

 

 

 

 

111/ l’inscription n°21 datée 771/1369 sur l’accès à un souterrain vers la tour T12

112/ la tour T15

113/ la tour T18

114/ les tours T22 et T21

115/ la courtine entre T23 et T22

 

 

 

Une image contenant extérieur, bâtiment, ruine, pierre

Description générée automatiquement

 

Une image contenant extérieur, roche, bâtiment, pierre

Description générée automatiquement

 

Une image contenant extérieur, roche, bâtiment, pierre

Description générée automatiquement

 

Une image contenant extérieur, bâtiment, pierre, voûte

Description générée automatiquement

 

 

116/ la courtine et la tour T23

117/ la courtine et la tour T25

118/ les vestiges de galerie vers les tours T27 et T26

119/ les vestiges de galerie vers les tours T27 et T26

120/ les vestiges de galerie vers les tours T27 et T26

 

 

 

Une image contenant extérieur, ciel, bâtiment, roche

Description générée automatiquement

 

Une image contenant bâtiment, extérieur, pierre, ruine

Description générée automatiquement

 

Une image contenant extérieur, roche, bâtiment, pierre

Description générée automatiquement

 

Une image contenant extérieur, roche, nature

Description générée automatiquement

 

 

121/ les vestiges de galerie vers les tours T27 et T26

122/ vue du moulin sur la tour T24

123/ vue de la tour T23 et des vestiges de galeries

124/ vue des galeries entre les tours T25 à T27

125/ vue du secteur est de la Citadelle entre la tour T14 et les galeries

 

 

 

Une image contenant extérieur, roche

Description générée automatiquement

 

Une image contenant ciel, extérieur, terrain, véhicule militaire

Description générée automatiquement

 

Une image contenant extérieur, ciel, rive, sableux

Description générée automatiquement

 

Une image contenant ciel, extérieur, nature, rive

Description générée automatiquement

 

Une image contenant bâtiment, ciel, herbe, extérieur

Description générée automatiquement

 

126/ vue des fouilles du secteur est de la Citadelle

127/ vue du secteur est de la Citadelle

128/ vue du secteur est de la Citadelle

129/ vue du secteur est de la Citadelle

130/ l’accès à la salle Ayyûbide

 

 

 

Une image contenant bâtiment, extérieur, pierre, matériau de construction

Description générée automatiquement

 

Une image contenant ciel, extérieur, nature, roche

Description générée automatiquement

 

Une image contenant ciel, extérieur, neige, ruine

Description générée automatiquement

 

Une image contenant extérieur, neige, bâtiment, pierre

Description générée automatiquement

 

 

131/ l’inscription n°16 datée 643/1246 sur le linteau de l’accès à la salle Ayyûbide

132/ vue du secteur est de la Citadelle

133/ la courtine vers les tours T35 et T36

134/ la courtine entre les tours T35 et T36

135/ la courtine entre les tours T36 et T37

 

 

 

Une image contenant roche, extérieur, mur, neige

Description générée automatiquement

 

Une image contenant extérieur, roche, pierre, ruine

Description générée automatiquement

 

Une image contenant extérieur, ciel, bâtiment, roche

Description générée automatiquement

 

Une image contenant mur, roche, pierre, extérieur

Description générée automatiquement

 

 

136/ la courtine entre les tours T38 et T39

137/ la courtine entre les tours T39 et T40

138/ la tour T41

139/ la courtine entre les tours T42 et T43

140/ la tour T43

 

 

 

Une image contenant roche, pierre, extérieur, bâtiment

Description générée automatiquement

 

 

 

Une image contenant texte, clipart, capture d’écran

Description générée automatiquement

 

Une image contenant ciel, bâtiment, extérieur, ruine

Description générée automatiquement

 

 

Une image contenant texte, bâtiment, pierre, matériau de construction

Description générée automatiquement

 

 

 

 

141/ la tour T44

142/ plan de la Grande Mosquée

143/ la Grande Mosquée depuis le sud

144/ la décret n°30 daté 865-866/1461-1462 à l’entrée de la mosquée

145/ l’inscription n°8 datée 610/1213 sur la porte d’accès à la mosquée

 

 

 

Une image contenant bâtiment, extérieur, ciel, tour

Description générée automatiquement

 

Une image contenant intérieur, bâtiment, voûte, pierre

Description générée automatiquement

 

 

 

Une image contenant ciel, extérieur, roche, bâtiment

Description générée automatiquement

 

 

Une image contenant bâtiment, extérieur, brique, plaque

Description générée automatiquement

 

 

146/ le minaret depuis la cour de la mosquée

147/ le mihrâb de la salle de prière

148/ plan du maqâm inférieur

149/ vue du maqâm depuis le sud

150/ l’inscription datée 575/1179 du maqâm inférieur

 

 

 

Une image contenant bâtiment, pierre, matériau de construction, ciment

Description générée automatiquement

 

 

Une image contenant bâtiment, extérieur, brique, pierre

Description générée automatiquement

 

 

Une image contenant pierre, matériau de construction, sale

Description générée automatiquement

 

 

 

 

 

 

151/ l’inscription n°26 datée 811/1408 dans la cour du maqâm inférieur

152/ l’inscription datée 563/1168 dans la cour du maqâm inférieur

153/ l’inscription non datée sur une console dans la cour du maqâm inférieur

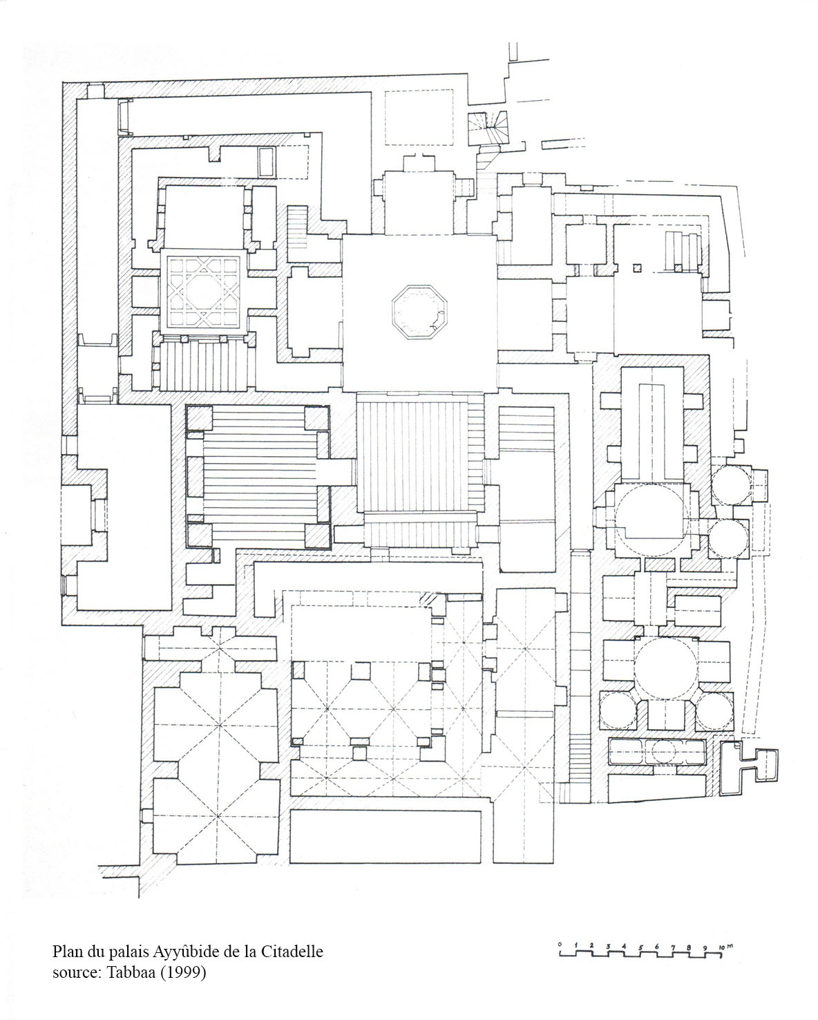
154/ plan du palais Ayyûbide

155/ façade du palais Ayyûbide depuis le nord-ouest

 

 

 

Une image contenant pierre, voûte

Description générée automatiquement

 

 

Une image contenant intérieur

Description générée automatiquement

 

 

Une image contenant pierre

Description générée automatiquement

 

 

 

 

156/ le portail d’accès au palais

157/ décor du montant gauche du portail

158/ partie haute du portail

159/ plan de la voûte du portail

160/ la cour du palais avec son système hydraulique depuis le sud

 

 

 

Une image contenant bâtiment, extérieur, pierre, brique

Description générée automatiquement

 

 

Une image contenant bâtiment, pierre, extérieur, vieux

Description générée automatiquement

 

Une image contenant extérieur, nature, sableux

Description générée automatiquement

 

Une image contenant intérieur, bâtiment, voûte, pierre

Description générée automatiquement

 

161/ la cour du palais depuis le nord

162/ vue de l’iwan sud de la cour nord-ouest

163/ le hammam du palais

164/ la grande salle à coupole du hammam

 

 

 

 

 

Une image contenant ciel, terrain, extérieur, bâtiment

Description générée automatiquement

 

 

Une image contenant extérieur, bâtiment, bastion, brique

Description générée automatiquement

 

 

 

Une image contenant extérieur, bâtiment, bastion, saleté

Description générée automatiquement

 

Une image contenant extérieur

Description générée automatiquement

 

 

165/ la tour avancée nord depuis l’est

166/ façade de la tour avancée nord

167/ façade de la tour avancée nord avec l’inscription n°44 datée 915/1509

168/ la tour avancée nord depuis l’ouest

169/ vue de la tour avancée nord depuis les courtines de la Citadelle

 

 

Une image contenant ciel, bâtiment, extérieur, bastion

Description générée automatiquement

 

 

 

Une image contenant bâtiment, extérieur, bastion, pierre

Description générée automatiquement

 

 

Une image contenant terrain, bâtiment, extérieur, bastion

Description générée automatiquement

 

 

Une image contenant extérieur, bâtiment, pierre, voûte

Description générée automatiquement

 

 

Une image contenant bâtiment, extérieur, bastion, pierre

Description générée automatiquement

 

 

170/ la tour avancée sud

171/ la tour avancée sud depuis l’est

172/ la tour avancée sud depuis l’ouest

173/ façade de la tour avancée sud

174/ vue de la tour avancée sud depuis les courtines de la Citadelle

175/ façade de la tour avancée sud avec les cartouches n°23 datés 809/1406 et l’inscription n°42 datée 914/1508

 

 

 

Documents anciens

 

 

 

 

Une image contenant texte, peinture, pierre

Description générée automatiquement

 

Une image contenant texte, extérieur, vieux, champ

Description générée automatiquement

 

 

Une image contenant terrain

Description générée automatiquement

 

 

 

Vue d’Alep et de la Citadelle

Source : Drummond (1754)

Vue de la Citadelle d’après E. Herzfeld Source : Freer/Sackler Galleries, Smithsonian Institute

Vue de la Citadelle d’après Gertrude Bell vers 1937

Source : www.rferl.org

Vue de la Citadelle en 3D

Source : https://www.archilovers.com/projects/54217

 

 

 

Menu précédent

 

 

 



[1] Cf. Gonnella/Kohlmeyer (2005).

[2] Sur les thughûr et awasîm, cf. Bonner (1994), p.17-24.

[3] Sur cette période, cf. Bianquis (1991), p.49-59.

[4] Texte in Herzfeld (1955), n°31 ; RCEA 2699.

[5] Texte in Herzfeld (1955), n°57 ; Sobernheim (1926), n°30 ; RCEA 2764.

[6] Texte in Herzfeld (1955), n°32A-B, 33, 34, 35 ; Sobernheim (1926), n°1-4.

[7] Sur la Grande Mosquée, cf. Herzfeld (1955), p.132-134.

[8] Sur le Maqâm, cf. Herzfeld (1955), p.119-132. Textes des inscriptions, in Herzfeld (1955), n°60, 61 ; Sobernheim (1926), n°34, 39 ; RCEA 3275, 3300-3304.

[9] Cf. Gonnella/Korn (2004), p.269-283 et Gonnella/Kohlmeyer (2005).

[10] Sur cet épisode, cf. Eddé (1988), p.226-240 ; Eddé (1999).

[11] Sur la composition et les forces en présence, cf. Vigouroux (2021), p.309-313.

[12] Sur le déroulement de ces 5 jours et les questions tactiques, cf. Vigouroux (2021), p.314-321.

[13] Voir son tombeau, son sabîl et son khân.

[14] Texte in Herzfeld (1955), n°56.

[15] Texte d’après Gonnella/Kohlmeyer (2005), p.44.

[16] Texte d’après Gaube (1978), n°104.

[17] Texte d’après RCEA 3652.

[18] Texte d’après RCEA 3653.

[19] Texte d’après RCEA 3655.

[20] Texte d’après RCEA 3656.

[21] Texte d’après RCEA 3690.

[22] Texte d’après RCEA 3730.

[23] Texte d’après Gaube (1978), n°109.

[24] D’après Herzfeld (1955), n°70.

[25] Texte d’après RCEA 3833.

[26] Texte d’après RCEA 3988 et Herzfeld (1955), n°71.

[27] Texte d’après RCEA 4067.

[28] Texte d’après RCEA 4121.

[29] Texte in Gonnella/Korn (2004), p.271.

[30] Texte in Gonnella/Korn (2004), p.272.

[31] Texte d’après RCEA 4957.

[32] Texte d’après RCEA 4958.

[33] Texte d’après RCEA 765028.

[34] Texte d’après RCEA 769005.

[35] Texte d’après RCEA 771009.

[36] Texte d’après RCEA 786006.

[37] Texte d’après Herzfeld (1955), n°43.

[38] Texte d’après Herzfeld (1955), n°44A.

[39] Texte d’après Herzfeld (1955), n°44B-C.

[40] Texte d’après Herzfeld (1955), n°66.

[41] Texte d’après Gaube (1978), n°106.

[42] Texte d’après Gaube (1978), n°108.

[43] Texte d’après Sauvaget (1933), n°31.

[44] Texte d’après Herzfeld (1955), n°69.

[45] Texte d’après Herzfeld (1955), n°238.

[46] Texte d’après Herzfeld (1955), n°46A-B.

[47] Texte d’apreès Herzfeld (1955), n°49.

[48] Texte d’après Herzfeld (1955), n°47A-B.

[49] D’après Herzfeld (1955), n°48.

[50] Texte d’après Herzfeld (1955), n°264.

[51] D’après Herzfeld (1955), n°265.

[52] Texte d’après Gaube (1978), n°107.

[53] Texte d’après Gaube (1978), n°110.

[54] Texte d’après Herzfeld (1955), n°51A-B.

[55] Texte d’après Herzfeld (1955), n°52.

[56] Texte d’après Herzfeld (1955), n°53A-B.

[57] Texte d’après Herzfeld (1955), n°54.

[58] Texte d’après Herzfeld (1955), n°55.

[59] Texte d’après Herzfeld (1955), n°50.